6 Autumn Street, Orange, NSW 2800
Sold Price Not Disclosed (19 Jun 2020)
Beautiful 4 Bedroom Home In Highly Sought After East Orange
The Phone Code for this property is: 65828. Please quote this number when phoning or texting.
For sale is our freshly renovated home. We have stripped down and replaced the majority of this home. This is a new home sitting in the middle of Orange only a short walk from the CBD.
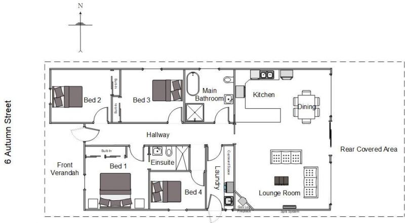
The home consists of,
4 double size bedrooms, 3 with built in wardrobes
Main bedroom has split system and ensuite
Lovely open plan living area with carpeted flooring to lounge section, vinyl floor planks from the front to rear doors and kitchen/dining area, split system heating/cooling and a very cozy gas log fireplace
Beautifully presented kitchen which is very user friendly with electric cooking and dishwasher
Large bathroom with shower and separate free standing bath
Large Laundry with lots of storage
Awesome outdoor entertaining area with a closed in section and insulated roofing for ultimate comfort
The yard is landscaped, fully fenced and presented in immaculate condition
Water tank for garden/yard maintenance
Electric gateway for ease of access
Off street parking
Garden shed
This home is of the highest quality and will make a great family home.
Disclaimer:
Whilst every care has been taken to verify the accuracy of the details in this advertisement, For Sale By Owner (forsalebyowner.com.au Pty Ltd) cannot guarantee its correctness. Prospective buyers or tenants need to take such action as is necessary, to satisfy themselves of any pertinent matters.
For sale is our freshly renovated home. We have stripped down and replaced the majority of this home. This is a new home sitting in the middle of Orange only a short walk from the CBD.
The home consists of,
4 double size bedrooms, 3 with built in wardrobes
Main bedroom has split system and ensuite
Lovely open plan living area with carpeted flooring to lounge section, vinyl floor planks from the front to rear doors and kitchen/dining area, split system heating/cooling and a very cozy gas log fireplace
Beautifully presented kitchen which is very user friendly with electric cooking and dishwasher
Large bathroom with shower and separate free standing bath
Large Laundry with lots of storage
Awesome outdoor entertaining area with a closed in section and insulated roofing for ultimate comfort
The yard is landscaped, fully fenced and presented in immaculate condition
Water tank for garden/yard maintenance
Electric gateway for ease of access
Off street parking
Garden shed
This home is of the highest quality and will make a great family home.
Disclaimer:
Whilst every care has been taken to verify the accuracy of the details in this advertisement, For Sale By Owner (forsalebyowner.com.au Pty Ltd) cannot guarantee its correctness. Prospective buyers or tenants need to take such action as is necessary, to satisfy themselves of any pertinent matters.
Need a Home Loan?
Get pre-approved for a home loan within 48 hours. Click Here or more information.
- Last 24 Hours0
- Last 7 Days0
- Last 30 Days1
Views
Contact the Owner
Phone or Text: 0488 847 018
Enter Phone Code: 65828
Enter Phone Code: 65828
"*" indicates required fields