67 English Street, Hahndorf, SA 5245
Sold Price Not Disclosed (29 Apr 2020)
Renovated with a rural outlook on the edge of town
Quietly nestled in the historic town of Hahndorf this light and bright, renovated, brick veneer, three bedroom home has instant appeal. It is Located in a quiet street, right on the edge of town, which offers a rural outlook across farming paddocks, where the cows can come to say hello.
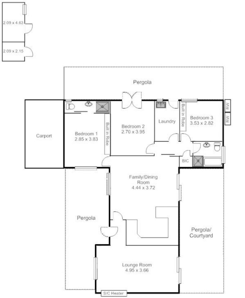
On entry to the home the hallway leads to two living areas. The lounge room with high raked ceilings and a slow combustion wood heater, for those cosy winter nights. The open plan dining / kitchen area with an updated functional kitchen, overlooking the courtyard which provides year round entertaining.
The main bedroom features a large built in robe and a modern renovated ensuite with a shower rain head. The second bedroom also features a large built in robe and is serviced by the main bathroom, which has been fully renovated including a frame less shower, wall hung vanity and a free standing bath. The third bedroom or study has patio doors that open to reveal the view across the farming paddocks behind.
You will also find a newly renovated laundry with plenty of storage and a large linen cupboard in the hallway with floor to ceiling shelving. The enclosed rear yard offers a large lawn area for children or animals to run around on, there is a paved entertaining area to dine on and take in the views of the rolling hills.
Other reasons we love this place;
- 740sqm of land
- Only a short 800m walk to the main street
- 1.5kw solar system
- Instant gas hot water service
- 2.5kw reverse cycle air conditioner
- Recent full roof restoration, re-pointed and painted.
- Switchboard upgrade to current standards
- NBN connected
- 2000ltrs of filtered rainwater, supplying one toilet and the kitchen tap
- LED down lights in entry, kitchen, dining, hallway and laundry
- Ceiling fans in all three bedrooms
- Bamboo floating floor to living areas
- Lined and powered shed with an attached wood / garden shed
- Remote controlled electric driveway gate
- Fully enclosed private yard for pets and children
- Low maintenance gardens
- Irrigated lawn and garden
Specifications:
CT / 6096/1
Council / City of Mount Barker
Zoning / T 21
Built / 1977
Land / 740m2
Frontage / 22.13m
Council Rates / $2108pa
*** Currently open by appointment only, please call to arrange ***
The Phone Code for this property is: 88081. Please quote this number when phoning or texting.
Disclaimer:
Whilst every care has been taken to verify the accuracy of the details in this advertisement, For Sale By Owner (forsalebyowner.com.au Pty Ltd) cannot guarantee its correctness. Prospective buyers or tenants need to take such action as is necessary, to satisfy themselves of any pertinent matters.
On entry to the home the hallway leads to two living areas. The lounge room with high raked ceilings and a slow combustion wood heater, for those cosy winter nights. The open plan dining / kitchen area with an updated functional kitchen, overlooking the courtyard which provides year round entertaining.
The main bedroom features a large built in robe and a modern renovated ensuite with a shower rain head. The second bedroom also features a large built in robe and is serviced by the main bathroom, which has been fully renovated including a frame less shower, wall hung vanity and a free standing bath. The third bedroom or study has patio doors that open to reveal the view across the farming paddocks behind.
You will also find a newly renovated laundry with plenty of storage and a large linen cupboard in the hallway with floor to ceiling shelving. The enclosed rear yard offers a large lawn area for children or animals to run around on, there is a paved entertaining area to dine on and take in the views of the rolling hills.
Other reasons we love this place;
- 740sqm of land
- Only a short 800m walk to the main street
- 1.5kw solar system
- Instant gas hot water service
- 2.5kw reverse cycle air conditioner
- Recent full roof restoration, re-pointed and painted.
- Switchboard upgrade to current standards
- NBN connected
- 2000ltrs of filtered rainwater, supplying one toilet and the kitchen tap
- LED down lights in entry, kitchen, dining, hallway and laundry
- Ceiling fans in all three bedrooms
- Bamboo floating floor to living areas
- Lined and powered shed with an attached wood / garden shed
- Remote controlled electric driveway gate
- Fully enclosed private yard for pets and children
- Low maintenance gardens
- Irrigated lawn and garden
Specifications:
CT / 6096/1
Council / City of Mount Barker
Zoning / T 21
Built / 1977
Land / 740m2
Frontage / 22.13m
Council Rates / $2108pa
*** Currently open by appointment only, please call to arrange ***
The Phone Code for this property is: 88081. Please quote this number when phoning or texting.
Disclaimer:
Whilst every care has been taken to verify the accuracy of the details in this advertisement, For Sale By Owner (forsalebyowner.com.au Pty Ltd) cannot guarantee its correctness. Prospective buyers or tenants need to take such action as is necessary, to satisfy themselves of any pertinent matters.
Features
Air Conditioning, Bath, Broadband, Built-ins, Dishwasher, Ensuite, Fireplace(s), Fully Fenced, Modern Bathroom, Renovated, Garden Shed, Level Lawn, Pet Friendly, Rainwater Tank, Solar Panels, Security Lights, Close to Schools, Close to Shops, Close to Transport, Quiet Location, Views, Non Smoking, Renovated Bathroom
Contact Karen on 0438 838 018 at First Paige Property Settlement Services for help with your Real Estate paperwork (Form 1 & Contracts) or email if you have questions. admin@firstpaigeform1.com
Visit WebsiteNeed a Home Loan?
Get pre-approved for a home loan within 48 hours. Click Here or more information.
- Last 24 Hours0
- Last 7 Days0
- Last 30 Days0
Views
Contact the Owner
Phone or Text: 0488 847 018
Enter Phone Code: 88081
Enter Phone Code: 88081
"*" indicates required fields
