29 Eagle Ridge Road, South Spreyton, TAS 7310
Sold Price: 299,000 (15 Jan 2013)
Quality, privacy and value
This 5 acre internal property 10 mins from Devonport or Latrobe may well tick the boxes for you.
Elevated, near new (2 years old), two storey 3 bedroom home with 2 bathrooms and wrap around timber decks captures beautiful views including Bass Strait.
The fenced, natural bush hideaway acreage with a creek and manferns entices native birds and invites you to share a peaceful life with them.
Two new greenhouses and a chook house allow you to "grow your own" whilst a double garage with workshop, two single carports, woodshed and storage shed (all with power) encourage plenty of hobbies.
More than adequate fresh water storage of 100,000 litres services the buildings.
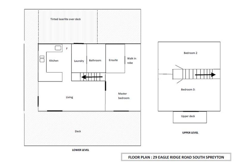
The home itself offers at ground level an open plan kitchen, living area, separate laundry, main bathroom and master bedroom with ensuite. Upstairs are two more bedrooms, one with its own deck.
Beautiful exposed timber beams and linings together with a cosy wood heater create a lovely ambiance throughout this home. Gas hot water (with electronic controllers) and a reverse cycle air conditioner compliment the comfortable living this character home provides.
Call today for a personal inspection or for more information.
Disclaimer:
Whilst every care has been taken to verify the accuracy of the details in this advertisement, For Sale By Owner (forsalebyowner.com.au Pty Ltd) cannot guarantee its correctness. Prospective buyers or tenants need to take such action as is necessary, to satisfy themselves of any pertinent matters.
Elevated, near new (2 years old), two storey 3 bedroom home with 2 bathrooms and wrap around timber decks captures beautiful views including Bass Strait.
The fenced, natural bush hideaway acreage with a creek and manferns entices native birds and invites you to share a peaceful life with them.
Two new greenhouses and a chook house allow you to "grow your own" whilst a double garage with workshop, two single carports, woodshed and storage shed (all with power) encourage plenty of hobbies.
More than adequate fresh water storage of 100,000 litres services the buildings.
The home itself offers at ground level an open plan kitchen, living area, separate laundry, main bathroom and master bedroom with ensuite. Upstairs are two more bedrooms, one with its own deck.
Beautiful exposed timber beams and linings together with a cosy wood heater create a lovely ambiance throughout this home. Gas hot water (with electronic controllers) and a reverse cycle air conditioner compliment the comfortable living this character home provides.
Call today for a personal inspection or for more information.
Disclaimer:
Whilst every care has been taken to verify the accuracy of the details in this advertisement, For Sale By Owner (forsalebyowner.com.au Pty Ltd) cannot guarantee its correctness. Prospective buyers or tenants need to take such action as is necessary, to satisfy themselves of any pertinent matters.
Features
Ensuite
Need a Home Loan?
Get pre-approved for a home loan within 48 hours. Click Here or more information.
- Last 24 Hours0
- Last 7 Days0
- Last 30 Days2
Views
Contact the Owner
Phone or Text: 0488 847 018
Enter Phone Code:
Enter Phone Code:
"*" indicates required fields