60A Moola Rd, Buff Point, NSW 2262
Sold Price: 415,000 (04 Apr 2020)
Cosey single-level brick house, and timber cabin
The Phone Code for this property is: 26072. Please quote this number when phoning or texting.
Pleasant three-bedroom, air-conditioned brick cottage.
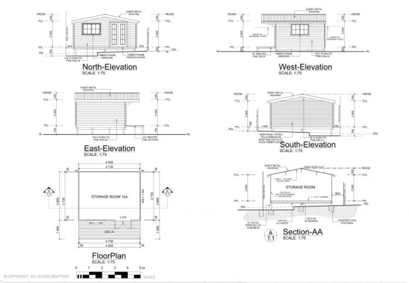
The Council has granted a building certificate (Div.6.7, EPA Act) for the existing detached Baltic-pine cabin (18 sq.m.) and deck. The cabin may be used for domestic storage.
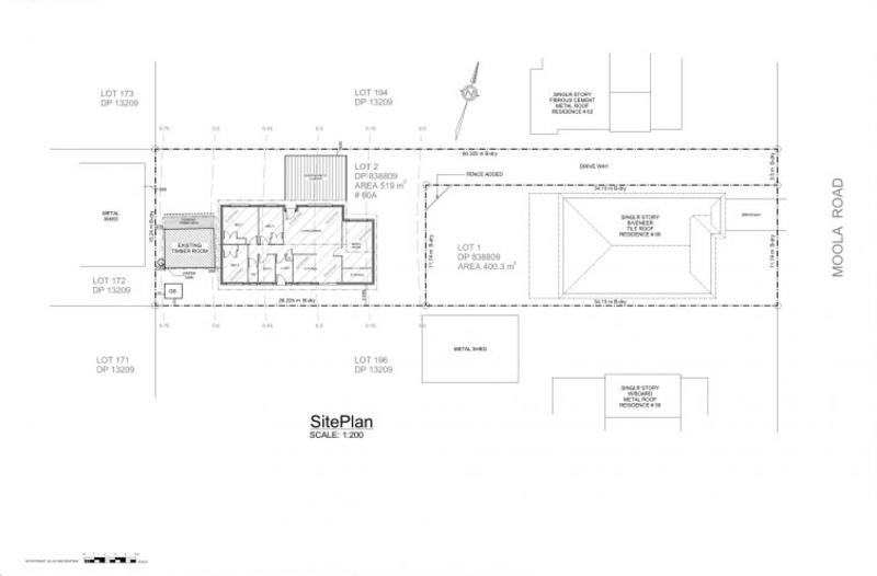
Land area of hatchet shaped lot: 519 sq.m. incl. access "handle".
Lawns at front and side of house.
Carport (5.9m x 4.6m) for 1 car; and open space for a small car on pebblecrete at side of driveway.
New roof gutters on the cottage have been installed, together with low-maintenance metal leaf guards.
Roofwater from the cottage and carport discharges to approx. 63m of newly laid underground stormwater pipes.
It is a short walk of about 375m to lakeside walkway, cycleway and jetty.
Dog friendly Buff Point Oval.
In addition to any advertised inspection times, other times may be arranged by contacting us.
Disclaimer:
Whilst every care has been taken to verify the accuracy of the details in this advertisement, For Sale By Owner (forsalebyowner.com.au Pty Ltd) cannot guarantee its correctness. Prospective buyers or tenants need to take such action as is necessary, to satisfy themselves of any pertinent matters.
Pleasant three-bedroom, air-conditioned brick cottage.
The Council has granted a building certificate (Div.6.7, EPA Act) for the existing detached Baltic-pine cabin (18 sq.m.) and deck. The cabin may be used for domestic storage.
Land area of hatchet shaped lot: 519 sq.m. incl. access "handle".
Lawns at front and side of house.
Carport (5.9m x 4.6m) for 1 car; and open space for a small car on pebblecrete at side of driveway.
New roof gutters on the cottage have been installed, together with low-maintenance metal leaf guards.
Roofwater from the cottage and carport discharges to approx. 63m of newly laid underground stormwater pipes.
It is a short walk of about 375m to lakeside walkway, cycleway and jetty.
Dog friendly Buff Point Oval.
In addition to any advertised inspection times, other times may be arranged by contacting us.
Disclaimer:
Whilst every care has been taken to verify the accuracy of the details in this advertisement, For Sale By Owner (forsalebyowner.com.au Pty Ltd) cannot guarantee its correctness. Prospective buyers or tenants need to take such action as is necessary, to satisfy themselves of any pertinent matters.
Features
Air Conditioning, Broadband, Built-ins, Dishwasher, Level Lawn, Storage Area, Near Waterfront
Need a Home Loan?
Get pre-approved for a home loan within 48 hours. Click Here or more information.
- Last 24 Hours0
- Last 7 Days0
- Last 30 Days4
Views
Contact the Owner
Phone or Text: 0488 847 018
Enter Phone Code: 26072
Enter Phone Code: 26072
"*" indicates required fields