257-261 Western Ave, Montville, QLD 4560
Sold Price Not Disclosed (30 Sep 2020)
The Ultimate Hinterland Lifestyle
The Phone Code for this property is: 56269. Please quote this number when phoning or texting.
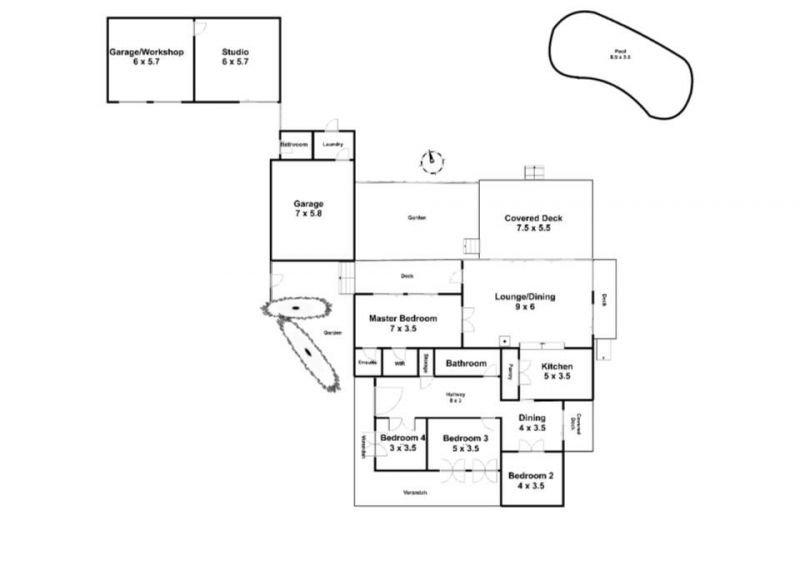
- 4 ample bedrooms
- 3 bathrooms
- 2 garage spaces
- Large open-plan kitchen, dining and living area
- Sizable walk-in pantry
- Spacious covered deck
- Workshop or 2 additional garage spaces
- Large studio or 5th bedroom
- Wrap-around verandas
- In-ground pool
- Woodheater stove
- Barn
- 50,000l water storage
- Underground water access
- Established orchard
- Ample storage
- Various outbuildings
This landmark property offers the ultimate Sunshine Coast Hinterland lifestyle. Stroll next door to the award-winning winery. From the large north-facing deck overlooking the pool, enjoy the district and coastal views, which are uncommon in a property with a prestigious Western Ave address. There is ample scope to place your own stamp on this estate. With 2.1 manageable & usable acres and easy-care gardens, this leafy, quiet, well-maintained property offers the privacy and space to live the kind of life that, until now, you have only dreamed of. Fully fenced, with a one-acre paddock and a barn, there is room for your own livestock. It is only minutes to Montville village with its cafes, restaurants and shops; Lake Baroon; Great Walks; panoramic views; National Parks and waterfalls. You will become the guardian of a 400-year old Ficus Watkinsiana fig tree, after which the property is named.
Three of the bedrooms have access to the outside decks and verandas. Two of them also have connecting access, which allows remarkable flexibility for a nursery, dressing room, or office. With more than 440 sqm undercover, there is space for the family. A large open, well-lit dining/lounge gives on to a deck, ideal for entertaining. A spacious studio adds room to be creative or run a business or add an extra bedroom. A second double-garage or workshop is attached. The house has been sympathetically renovated, to maintain the character of this original 1930s Queenslander home.
Montville, which recently was named by TripAdvisor as one of the "World's 20 Most Romantic Destinations" (the only one in Australia) is a picturesque village 400m up, on the edge of the Blackall Range with its iconic area status. It lies 30 minutes inland from Maroochydore and 20 minutes from the popular town of Maleny. It has long been a place to visit because of its scenic village centre, spectacular views and range of artisan workshops and galleries. It offers a comfortable, private and serene lifestyle, while still being convenient to schools, services, the airport and the coastal beaches.
Disclaimer:
Whilst every care has been taken to verify the accuracy of the details in this advertisement, For Sale By Owner (forsalebyowner.com.au Pty Ltd) cannot guarantee its correctness. Prospective buyers or tenants need to take such action as is necessary, to satisfy themselves of any pertinent matters.
- 4 ample bedrooms
- 3 bathrooms
- 2 garage spaces
- Large open-plan kitchen, dining and living area
- Sizable walk-in pantry
- Spacious covered deck
- Workshop or 2 additional garage spaces
- Large studio or 5th bedroom
- Wrap-around verandas
- In-ground pool
- Woodheater stove
- Barn
- 50,000l water storage
- Underground water access
- Established orchard
- Ample storage
- Various outbuildings
This landmark property offers the ultimate Sunshine Coast Hinterland lifestyle. Stroll next door to the award-winning winery. From the large north-facing deck overlooking the pool, enjoy the district and coastal views, which are uncommon in a property with a prestigious Western Ave address. There is ample scope to place your own stamp on this estate. With 2.1 manageable & usable acres and easy-care gardens, this leafy, quiet, well-maintained property offers the privacy and space to live the kind of life that, until now, you have only dreamed of. Fully fenced, with a one-acre paddock and a barn, there is room for your own livestock. It is only minutes to Montville village with its cafes, restaurants and shops; Lake Baroon; Great Walks; panoramic views; National Parks and waterfalls. You will become the guardian of a 400-year old Ficus Watkinsiana fig tree, after which the property is named.
Three of the bedrooms have access to the outside decks and verandas. Two of them also have connecting access, which allows remarkable flexibility for a nursery, dressing room, or office. With more than 440 sqm undercover, there is space for the family. A large open, well-lit dining/lounge gives on to a deck, ideal for entertaining. A spacious studio adds room to be creative or run a business or add an extra bedroom. A second double-garage or workshop is attached. The house has been sympathetically renovated, to maintain the character of this original 1930s Queenslander home.
Montville, which recently was named by TripAdvisor as one of the "World's 20 Most Romantic Destinations" (the only one in Australia) is a picturesque village 400m up, on the edge of the Blackall Range with its iconic area status. It lies 30 minutes inland from Maroochydore and 20 minutes from the popular town of Maleny. It has long been a place to visit because of its scenic village centre, spectacular views and range of artisan workshops and galleries. It offers a comfortable, private and serene lifestyle, while still being convenient to schools, services, the airport and the coastal beaches.
Disclaimer:
Whilst every care has been taken to verify the accuracy of the details in this advertisement, For Sale By Owner (forsalebyowner.com.au Pty Ltd) cannot guarantee its correctness. Prospective buyers or tenants need to take such action as is necessary, to satisfy themselves of any pertinent matters.
Features
Air Conditioning, Balcony/Patio/Terrace, Built-ins, Deck, Dishwasher, Ensuite, Fireplace(s), Balcony, Courtyard, Entertainment Area, Garden, Garden Shed, Alarm System, Security Lights, Close to Parklands, Bath, Fully Fenced, Living Area, Modern Bathroom, Modern Kitchen, Polished Timber Floors, Renovated, Renovated Bathroom, Level Lawn, Rainwater Tank, Storage Area, Swimming/Lap Pool, Workshop, Quiet Location, Views
Need a Home Loan?
Get pre-approved for a home loan within 48 hours. Click Here or more information.
- Last 24 Hours1
- Last 7 Days1
- Last 30 Days4
Views
Contact the Owner
Phone or Text: 0488 847 018
Enter Phone Code: 56269
Enter Phone Code: 56269
"*" indicates required fields