22 Nairne Road, Woodside, SA 5244
Sold Price Not Disclosed (07 Feb 2020)
Classic Californian-style Bungalow built in 1929
Inspection by appointment.
This classic bungalow offers many character features including polished timber floors, lofty 10ft ceilings, a wide hallway with original decorative woodwork and sash windows.
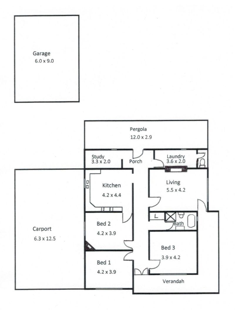
Featuring a spacious lounge with slow combustion heating and 3 double sized bedrooms as well as an office/study.
The heritage style bathroom includes a cast iron claw foot bath and there is a second toilet adjacent to the laundry.
The quality Alby Turner & Sons kitchen has room for a double sized fridge and large kitchen table.
Outside there is a generous double garage and a huge 4 car carport with extra side access for a trailer, boat or caravan if needed.
Well established landscaped gardens with irrigation system and plenty of room for children or pets to play.
The large 1048 sqm North facing allotment backs onto tree lined parklands and is close to schools, shops and all local amenities.
Beautifully presented home in a desirable location.
The Phone Code for this property is: 69343. Please quote this number when phoning or texting.
Disclaimer:
Whilst every care has been taken to verify the accuracy of the details in this advertisement, For Sale By Owner (forsalebyowner.com.au Pty Ltd) cannot guarantee its correctness. Prospective buyers or tenants need to take such action as is necessary, to satisfy themselves of any pertinent matters.
This classic bungalow offers many character features including polished timber floors, lofty 10ft ceilings, a wide hallway with original decorative woodwork and sash windows.
Featuring a spacious lounge with slow combustion heating and 3 double sized bedrooms as well as an office/study.
The heritage style bathroom includes a cast iron claw foot bath and there is a second toilet adjacent to the laundry.
The quality Alby Turner & Sons kitchen has room for a double sized fridge and large kitchen table.
Outside there is a generous double garage and a huge 4 car carport with extra side access for a trailer, boat or caravan if needed.
Well established landscaped gardens with irrigation system and plenty of room for children or pets to play.
The large 1048 sqm North facing allotment backs onto tree lined parklands and is close to schools, shops and all local amenities.
Beautifully presented home in a desirable location.
The Phone Code for this property is: 69343. Please quote this number when phoning or texting.
Disclaimer:
Whilst every care has been taken to verify the accuracy of the details in this advertisement, For Sale By Owner (forsalebyowner.com.au Pty Ltd) cannot guarantee its correctness. Prospective buyers or tenants need to take such action as is necessary, to satisfy themselves of any pertinent matters.
Features
Bath, Dishwasher, Fireplace(s), Formal Lounge, Fully Fenced, Heating, Internal Laundry, Modern Bathroom, Modern Kitchen, Polished Timber Floors, Remote Garage, Renovated Kitchen, Entertainment Area, Garden, Level Lawn, Pet Friendly, Rainwater Tank, Close to Parklands, Close to Schools, Close to Shops, Close to Transport
Contact Karen on 0438 838 018 at First Paige Property Settlement Services for help with your Real Estate paperwork (Form 1 & Contracts) or email if you have questions. admin@firstpaigeform1.com
Visit WebsiteNeed a Home Loan?
Get pre-approved for a home loan within 48 hours. Click Here or more information.
- Last 24 Hours0
- Last 7 Days0
- Last 30 Days6
Views
Contact the Owner
Phone or Text: 0488 847 018
Enter Phone Code: 69343
Enter Phone Code: 69343
"*" indicates required fields
