519 Longwood Road, Longwood, SA 5153
Sold Price Not Disclosed (02 Dec 2019)
1955 character family home in beautiful Adelaide Hills location
The Phone Code for this property is: 26243. Please quote this number when phoning or texting.
Originally the Longwood Post Office and General store, this charmer sits nestled upon the picturesque suburb of Longwood.
Located in the heart of the Adelaide Hills with close proximity to the beautiful townships of Stirling, Aldgate and Mylor.
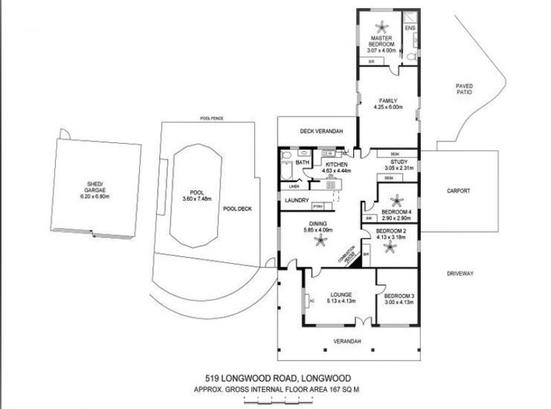
A generous family home boasting plenty of character. With four bedrooms and a separate study-nook central to the kitchen and main living hub, there is ample space for a growing family. The main bedroom with en-suite, situated at the back of the house, provides the perfect parents retreat.
Spend time together in the large lounge room, boasting views of the property's leafy backyard, as well as providing access to the double carport, undercover deck, and solar heated pool.
Retreat to the relaxing light-filled sun room situated at the front of the house, featuring large windows framing the gorgeous views of Longwood.
Sitting on approx. 2099 sqm, there is plenty of outside space for the kids to run around. The unlimited access to boar water provides opportunity to establish a veggie garden. Furthermore, two fenced areas allow for livestock and the double sized garage provides space for the perfect 'man shed'
- Four bedroom, Main with ensuite
- Two living areas and separate dining
- Central study nook
- Reverse cycle AC
- Fireplace with inbuilt slow combustion
- Solar heated pool with sundeck
- Double garage and carport
- Fenced area allowing for livestock
- Unlimited bore water from local spring
- Close proximity to local schools and amenities
- Beautiful surrounding views of Longwood
Disclaimer:
Whilst every care has been taken to verify the accuracy of the details in this advertisement, For Sale By Owner (forsalebyowner.com.au Pty Ltd) cannot guarantee its correctness. Prospective buyers or tenants need to take such action as is necessary, to satisfy themselves of any pertinent matters.
Originally the Longwood Post Office and General store, this charmer sits nestled upon the picturesque suburb of Longwood.
Located in the heart of the Adelaide Hills with close proximity to the beautiful townships of Stirling, Aldgate and Mylor.
A generous family home boasting plenty of character. With four bedrooms and a separate study-nook central to the kitchen and main living hub, there is ample space for a growing family. The main bedroom with en-suite, situated at the back of the house, provides the perfect parents retreat.
Spend time together in the large lounge room, boasting views of the property's leafy backyard, as well as providing access to the double carport, undercover deck, and solar heated pool.
Retreat to the relaxing light-filled sun room situated at the front of the house, featuring large windows framing the gorgeous views of Longwood.
Sitting on approx. 2099 sqm, there is plenty of outside space for the kids to run around. The unlimited access to boar water provides opportunity to establish a veggie garden. Furthermore, two fenced areas allow for livestock and the double sized garage provides space for the perfect 'man shed'
- Four bedroom, Main with ensuite
- Two living areas and separate dining
- Central study nook
- Reverse cycle AC
- Fireplace with inbuilt slow combustion
- Solar heated pool with sundeck
- Double garage and carport
- Fenced area allowing for livestock
- Unlimited bore water from local spring
- Close proximity to local schools and amenities
- Beautiful surrounding views of Longwood
Disclaimer:
Whilst every care has been taken to verify the accuracy of the details in this advertisement, For Sale By Owner (forsalebyowner.com.au Pty Ltd) cannot guarantee its correctness. Prospective buyers or tenants need to take such action as is necessary, to satisfy themselves of any pertinent matters.
Features
Air Conditioning, Bath, Built-ins, Deck, Ensuite, Fireplace(s), Formal Lounge, Living Area, Polished Timber Floors, Rumpus Room, Separate Dining Room, Study, Swimming/Lap Pool, Alarm System, Close to Parklands, Close to Schools, Close to Shops, Nature Property
Contact Karen on 0438 838 018 at First Paige Property Settlement Services for help with your Real Estate paperwork (Form 1 & Contracts) or email if you have questions. admin@firstpaigeform1.com
Visit WebsiteNeed a Home Loan?
Get pre-approved for a home loan within 48 hours. Click Here or more information.
- Last 24 Hours0
- Last 7 Days0
- Last 30 Days1
Views
Contact the Owner
Phone or Text: 0488 847 018
Enter Phone Code: 26243
Enter Phone Code: 26243
"*" indicates required fields
