9 Minnie Street, Currawarna, NSW 2650
Sold Price: 375,000 (05 Oct 2020)
Unique country property just 20mins from university and CBD
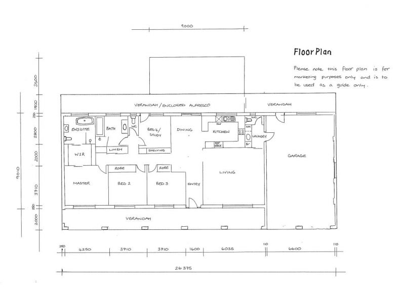
4 bedroom character home on a half acre block in a peaceful location.
Surrounded by paddocks and just 5 minutes from Currawarna Reserve and the river with boat access.
Brick veneer and tiled roof, 9 ft ceilings, ducted reverse cycle air conditioning and wood heater.
Master bedroom with newly installed walk in robe and large ensuite
3 additional bedrooms, 2 with built in robes, one with shelving, hanging space and currently used as an office.
Large family bathroom.
Wonderful large, screened enclosed alfresco area with TV point, powerpoints and lighting.
11.5m² x 6.5m² 4 car garage with built in benches, cupboards and shelving, and internal access.
Separate car port and ample parking for boat, caravan or additional vehicles
2 additional sheds for gardening equipment and log store
Separate brick built studio/spa room with light and power
Outdoor hot tub
Chook pen, numerous fruit trees and vegetable garden.
town water and nbn
2 large water tanks.
The Phone Code for this property is: 33813. Please quote this number when phoning or texting.
Disclaimer:
Whilst every care has been taken to verify the accuracy of the details in this advertisement, For Sale By Owner (forsalebyowner.com.au Pty Ltd) cannot guarantee its correctness. Prospective buyers or tenants need to take such action as is necessary, to satisfy themselves of any pertinent matters.
Surrounded by paddocks and just 5 minutes from Currawarna Reserve and the river with boat access.
Brick veneer and tiled roof, 9 ft ceilings, ducted reverse cycle air conditioning and wood heater.
Master bedroom with newly installed walk in robe and large ensuite
3 additional bedrooms, 2 with built in robes, one with shelving, hanging space and currently used as an office.
Large family bathroom.
Wonderful large, screened enclosed alfresco area with TV point, powerpoints and lighting.
11.5m² x 6.5m² 4 car garage with built in benches, cupboards and shelving, and internal access.
Separate car port and ample parking for boat, caravan or additional vehicles
2 additional sheds for gardening equipment and log store
Separate brick built studio/spa room with light and power
Outdoor hot tub
Chook pen, numerous fruit trees and vegetable garden.
town water and nbn
2 large water tanks.
The Phone Code for this property is: 33813. Please quote this number when phoning or texting.
Disclaimer:
Whilst every care has been taken to verify the accuracy of the details in this advertisement, For Sale By Owner (forsalebyowner.com.au Pty Ltd) cannot guarantee its correctness. Prospective buyers or tenants need to take such action as is necessary, to satisfy themselves of any pertinent matters.
Features
Air Conditioning, Bath, Ensuite, Fireplace(s), Formal Lounge, Fully Fenced, Heating, Internal Laundry, Living Area, Modern Bathroom, Polished Timber Floors, Entertainment Area, Garden, Garden Shed, Outside Spa, Pet Friendly, Rainwater Tank, Shower Facilities, Quiet Location, Nature Property, Balcony/Patio/Terrace, Built-ins, Dishwasher, Modern Kitchen, Renovated, Renovated Kitchen, Study, Level Lawn, Spa Bath/Jacuzzi, Non Smoking
Need a Home Loan?
Get pre-approved for a home loan within 48 hours. Click Here or more information.
- Last 24 Hours0
- Last 7 Days0
- Last 30 Days9
Views
Contact the Owner
Phone or Text: 0488 847 018
Enter Phone Code: 33813
Enter Phone Code: 33813
"*" indicates required fields