51 London Street, Eight Mile Plains, QLD 4113
Sold Price: 510,000 (16 Aug 2019)
Welcome Home
A rare opportunity not to be missed!!!
This charming 3 bedroom family home is offered for the first time in 12 years. Fully renovated and oozing with character, this home offers the perfect balance of modern open plan living, with traditional character and charm.
Situated in the sought after location of Eight Mile Plains, the 458m2 north facing block offers convenient access to Westfield Garden City and Sunnybank Shopping centres, Griffith University and Brisbane Technology Park. With easy access to major arterial roads such as the Gateway and Pacific Motorway, travel to the Brisbane CBD, Airport and Gold Coast are fast and convenient.
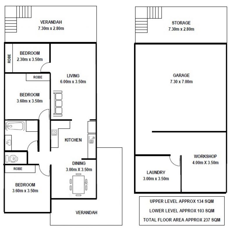
Featuring a large double garage, workshop and laundry underneath, there's enormous potential to convert this space into additional living areas down the track (STCA).
Property features -
- 3 bedrooms all with built-ins.
- Immaculately presented kitchen with stone benchtops and stainless steel appliances
- Fully renovated bathroom with separate bath and shower, as well as separate toilet
- Polished timber floors and tiles throughout.
- Separate dining and lounge with fire place for the cooler months.
- Covered rear veranda with double lock up garage underneath.
- Large fully fenced yard
Disclaimer:
Whilst every care has been taken to verify the accuracy of the details in this advertisement, For Sale By Owner (forsalebyowner.com.au Pty Ltd) cannot guarantee its correctness. Prospective buyers or tenants need to take such action as is necessary, to satisfy themselves of any pertinent matters.
This charming 3 bedroom family home is offered for the first time in 12 years. Fully renovated and oozing with character, this home offers the perfect balance of modern open plan living, with traditional character and charm.
Situated in the sought after location of Eight Mile Plains, the 458m2 north facing block offers convenient access to Westfield Garden City and Sunnybank Shopping centres, Griffith University and Brisbane Technology Park. With easy access to major arterial roads such as the Gateway and Pacific Motorway, travel to the Brisbane CBD, Airport and Gold Coast are fast and convenient.
Featuring a large double garage, workshop and laundry underneath, there's enormous potential to convert this space into additional living areas down the track (STCA).
Property features -
- 3 bedrooms all with built-ins.
- Immaculately presented kitchen with stone benchtops and stainless steel appliances
- Fully renovated bathroom with separate bath and shower, as well as separate toilet
- Polished timber floors and tiles throughout.
- Separate dining and lounge with fire place for the cooler months.
- Covered rear veranda with double lock up garage underneath.
- Large fully fenced yard
Disclaimer:
Whilst every care has been taken to verify the accuracy of the details in this advertisement, For Sale By Owner (forsalebyowner.com.au Pty Ltd) cannot guarantee its correctness. Prospective buyers or tenants need to take such action as is necessary, to satisfy themselves of any pertinent matters.
Features
Air Conditioning, Balcony/Patio/Terrace, Bath, Built-ins, Deck, Dishwasher, Fireplace(s), Fully Fenced, Modern Kitchen, Remote Garage, Renovated, Renovated Bathroom, Renovated Kitchen, Separate Dining Room, Garden, Garden Shed, Close to Shops, Close to Transport, Quiet Location
Need a Home Loan?
Get pre-approved for a home loan within 48 hours. Click Here or more information.
- Last 24 Hours0
- Last 7 Days0
- Last 30 Days4
Views
Contact the Owner
Phone or Text: 0488 847 018
Enter Phone Code:
Enter Phone Code:
"*" indicates required fields