15 Lollard Street, Hillcrest, QLD 4118
Sold Price: 345,000 (15 Feb 2019)
Beautifully presented 3 bedroom family home with an abundance of natural light and great outdoor entertaining area
This beautifully presented family home with an abundance of natural light is nestled in a safe, quiet and peaceful neighbourhood in the popular suburb of Hillcrest.
Large 738 sq m low maintenance allotment situated adjacent to a lovely park. All the hard work has been done, just move in, relax and enjoy
Spacious open plan living areas, new luxury custom built kitchen with stone bench-tops, soft close doors and drawers, large pantry and brand new Dishlex Dishwasher, good sized bedrooms, all with built-ins and fans
Two way newly renovated bathroom with timber benchtop vanity, separate toilet and large laundry with lots of storage space
Brand new 8Kw reverse cycle air conditioning and fans in all areas keep the house cool in summer heat.
Timber look hard wearing vinyl plank flooring professionally installed throughout will give years of maintenance free living.
Outside boasts an inviting covered patio area perfect for entertaining family and friends, a good sized garden shed, veggie patch, mature dwarf fruit trees and plenty of room for a large swimming pool.
The property is located minutes from major shopping complex, freeway to Brisbane 30 mins, transport, schools, childcare and other facilities
Property features:
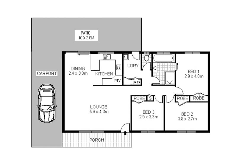
3 Bedrooms with built ins and fans
Spacious Kitchen with Pantry and new Dishwasher
Dining area with sliding doors to entertaining area
Brand new 2 way bathroom
New driveway and outdoor patio
Separate Toilet
Large Laundry
Freshly painted throughout with quality paint
Abundance of Natural Light
Newly Insulated
Carport under main roof plus off street parking for 3 or more cars
Large Covered Entertaining area 10m x 3.6m
Established low maintenance gardens with dwarf fruit trees
Security Doors and window locks
Ceiling Fans in all rooms
Air Conditioning
Durable Vinyl Plank Flooring
Built 1991
738 sq m block
NBN connected
Disclaimer:
Whilst every care has been taken to verify the accuracy of the details in this advertisement, For Sale By Owner (forsalebyowner.com.au Pty Ltd) cannot guarantee its correctness. Prospective buyers or tenants need to take such action as is necessary, to satisfy themselves of any pertinent matters.
Large 738 sq m low maintenance allotment situated adjacent to a lovely park. All the hard work has been done, just move in, relax and enjoy
Spacious open plan living areas, new luxury custom built kitchen with stone bench-tops, soft close doors and drawers, large pantry and brand new Dishlex Dishwasher, good sized bedrooms, all with built-ins and fans
Two way newly renovated bathroom with timber benchtop vanity, separate toilet and large laundry with lots of storage space
Brand new 8Kw reverse cycle air conditioning and fans in all areas keep the house cool in summer heat.
Timber look hard wearing vinyl plank flooring professionally installed throughout will give years of maintenance free living.
Outside boasts an inviting covered patio area perfect for entertaining family and friends, a good sized garden shed, veggie patch, mature dwarf fruit trees and plenty of room for a large swimming pool.
The property is located minutes from major shopping complex, freeway to Brisbane 30 mins, transport, schools, childcare and other facilities
Property features:
3 Bedrooms with built ins and fans
Spacious Kitchen with Pantry and new Dishwasher
Dining area with sliding doors to entertaining area
Brand new 2 way bathroom
New driveway and outdoor patio
Separate Toilet
Large Laundry
Freshly painted throughout with quality paint
Abundance of Natural Light
Newly Insulated
Carport under main roof plus off street parking for 3 or more cars
Large Covered Entertaining area 10m x 3.6m
Established low maintenance gardens with dwarf fruit trees
Security Doors and window locks
Ceiling Fans in all rooms
Air Conditioning
Durable Vinyl Plank Flooring
Built 1991
738 sq m block
NBN connected
Disclaimer:
Whilst every care has been taken to verify the accuracy of the details in this advertisement, For Sale By Owner (forsalebyowner.com.au Pty Ltd) cannot guarantee its correctness. Prospective buyers or tenants need to take such action as is necessary, to satisfy themselves of any pertinent matters.
Features
Air Conditioning, Bath, Broadband, Built-ins, Dishwasher, Heating, Internal Laundry, Living Area, Modern Bathroom, Modern Kitchen, Renovated, Renovated Bathroom, Renovated Kitchen, Entertainment Area, Garden, Garden Shed, Shower Facilities, Close to Parklands, Close to Schools, Close to Shops, Close to Transport, Quiet Location
Need a Home Loan?
Get pre-approved for a home loan within 48 hours. Click Here or more information.
- Last 24 Hours0
- Last 7 Days0
- Last 30 Days1
Views
Contact the Owner
Phone or Text: 0488 847 018
Enter Phone Code when prompted.
Enter Phone Code when prompted.
"*" indicates required fields