35 Laura Street, Latrobe, TAS 7307
Sold Price: 252,000 (07 Feb 2019)
Popular Latrobe
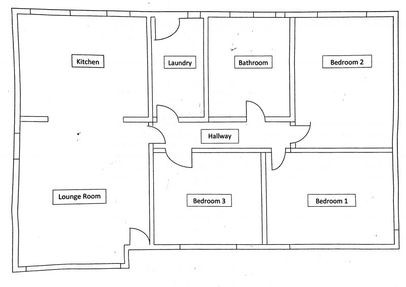
This 3 bedroom fully cladded home has had most areas renovated. Beautiful polished floorboards feature throughout the home.There is an open plan kitchen/dining/living space.The living area has both reverse cycle heat pump and inbuilt wood heater. The 3 double bedrooms include free standing wardrobes. There are all new window furnishings throughout the home. Fully tiled bathroom with shower over the spa bath. A separate laundry leads out to a large undercover entertaining area and large, fully fenced rear yard. There is also a large 10m x 6m shed/garage,small garden shed and wood shed and low maintenance gardens. Located close to both public and private primary schools and public high school. Only a short walk to the local shopping precinct and weekend market. This property would be perfect for a young family, first home owner or investor.
The Phone Code for this property is: 39832. Please quote this number when phoning or texting.
Disclaimer:
Whilst every care has been taken to verify the accuracy of the details in this advertisement, For Sale By Owner (forsalebyowner.com.au Pty Ltd) cannot guarantee its correctness. Prospective buyers or tenants need to take such action as is necessary, to satisfy themselves of any pertinent matters.
The Phone Code for this property is: 39832. Please quote this number when phoning or texting.
Disclaimer:
Whilst every care has been taken to verify the accuracy of the details in this advertisement, For Sale By Owner (forsalebyowner.com.au Pty Ltd) cannot guarantee its correctness. Prospective buyers or tenants need to take such action as is necessary, to satisfy themselves of any pertinent matters.
Features
Air Conditioning, Bath, Dishwasher, Fireplace(s), Heating, Living Area, Polished Timber Floors, Renovated, Renovated Bathroom, Renovated Kitchen, Entertainment Area, Garden, Garden Shed, Pet Friendly, Close to Parklands, Close to Schools, Close to Shops, Close to Transport, Quiet Location, Non Smoking
Need a Home Loan?
Get pre-approved for a home loan within 48 hours. Click Here or more information.
- Last 24 Hours2
- Last 7 Days5
- Last 30 Days10
Views
Contact the Owner
Phone or Text: 0488 847 018
Enter Phone Code: 39832
Enter Phone Code: 39832
"*" indicates required fields