138 Ophir Glen Road, Upper Burringbar, NSW 2483
Sold Price Not Disclosed (01 Aug 2019)
Burringbar Hideaway
The Phone Code for this property is: 35116. Please quote this number when phoning or texting.
Located just 5 minutes from the township of Burringbar, this gorgeous 7 acre organic farm with its spring fed creek is easy to fall in love with.
If privacy is important to you combined with an easy manageable size of land then you need to look no further.
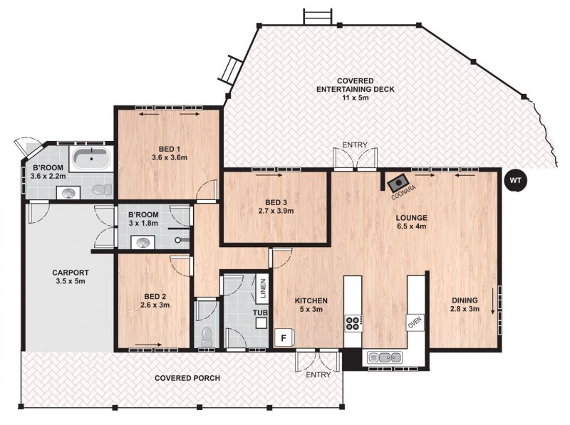
The comfortable home features three bedrooms two bathrooms and an open plan kitchen dining and living space with a reverse cycle air condition and a wood fired stove.
The outdoor covered entertaining area is the ideal place to relax and watch the children play. In addition there is an original old farm shed for all your tools and there is plenty of space for a large veggie garden. A timber decked out School Bus covered by a roof is a great extra space away from the house and ideal for visitors or Woofers.
Dozens of Bowen Mango trees, Avocado, Custard apples, Guava, Persimmon and some Citrus trees complete the picture.
This beautiful property won't last so don't delay, come and see for yourself.
NBN Broadband
Solar hot water, 2 years old
Spring fed creek and pond
Separate laundry, two toilets
Space for a Granny Flat (STCA)
Reverse Cycle A/C, Combustion Stove
Dishwasher, Gas Cooking
Single & Double Carport
Concrete Rain-Water Tank (10.000 gal)
Beautifully landscaped gardens
4.8 km from Burringbar Store
30 min to Byron Bay or Tweed Heads
15 minutes to the Beach
Disclaimer:
Whilst every care has been taken to verify the accuracy of the details in this advertisement, For Sale By Owner (forsalebyowner.com.au Pty Ltd) cannot guarantee its correctness. Prospective buyers or tenants need to take such action as is necessary, to satisfy themselves of any pertinent matters.
Located just 5 minutes from the township of Burringbar, this gorgeous 7 acre organic farm with its spring fed creek is easy to fall in love with.
If privacy is important to you combined with an easy manageable size of land then you need to look no further.
The comfortable home features three bedrooms two bathrooms and an open plan kitchen dining and living space with a reverse cycle air condition and a wood fired stove.
The outdoor covered entertaining area is the ideal place to relax and watch the children play. In addition there is an original old farm shed for all your tools and there is plenty of space for a large veggie garden. A timber decked out School Bus covered by a roof is a great extra space away from the house and ideal for visitors or Woofers.
Dozens of Bowen Mango trees, Avocado, Custard apples, Guava, Persimmon and some Citrus trees complete the picture.
This beautiful property won't last so don't delay, come and see for yourself.
NBN Broadband
Solar hot water, 2 years old
Spring fed creek and pond
Separate laundry, two toilets
Space for a Granny Flat (STCA)
Reverse Cycle A/C, Combustion Stove
Dishwasher, Gas Cooking
Single & Double Carport
Concrete Rain-Water Tank (10.000 gal)
Beautifully landscaped gardens
4.8 km from Burringbar Store
30 min to Byron Bay or Tweed Heads
15 minutes to the Beach
Disclaimer:
Whilst every care has been taken to verify the accuracy of the details in this advertisement, For Sale By Owner (forsalebyowner.com.au Pty Ltd) cannot guarantee its correctness. Prospective buyers or tenants need to take such action as is necessary, to satisfy themselves of any pertinent matters.
For all your conveyancing needs, contact Jessica on (02) 6519 4933 at Smart Coast Conveyancing or email if you have questions. jessica@smartcoast.com.au
Visit WebsiteNeed a Home Loan?
Get pre-approved for a home loan within 48 hours. Click Here or more information.
- Last 24 Hours1
- Last 7 Days1
- Last 30 Days2
Views
Contact the Owner
Phone or Text: 0488 847 018
Enter Phone Code 35116 when prompted.
Enter Phone Code 35116 when prompted.
"*" indicates required fields
