33 Grandview Drive, Tea Tree Gully, SA 5091
Sold Price: 470,000 (20 Feb 2018)
Superb Family Home
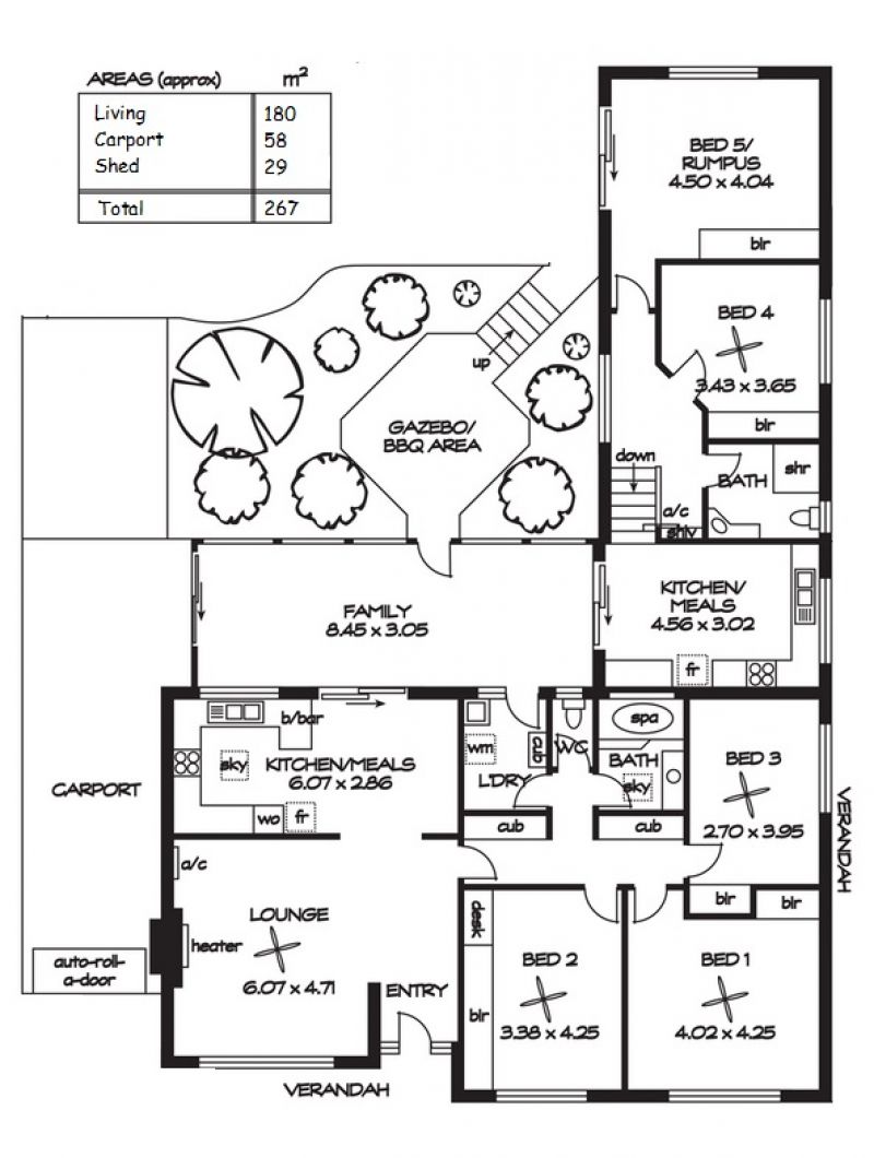
This 5 bedroom, 2 kitchen, 2 bathroom family home offers expansive living areas, perfect for the larger family including a granny flat option for the more extended family situation.
Tiled floors greet us on arrival and flow throughout the main home body, making a pleasing contrast with the neutral colour scheme. Quality down lighting, a ceiling fan and a split system air conditioner combine into a relaxing lounge area. The main kitchen / meals area is adjacent where a modern kitchen boasts stainless steel appliances, double sink, sky light and breakfast bar. A sliding glass door opens to a large family room that connects the main home body to the granny flat / extension.
There are 3 bedrooms in the main home and another 2 in the extension. A separate second kitchen / meals area in the extension, caters for bedrooms 4 & 5. All 5 bedrooms have built-in robes and bedrooms 1 through to 4 have ceiling fans. Bedroom 5 has the option of being a rumpus room with sliding glass doors opening to the gazebo area. There are 2 bathrooms, the main offering a spa bath. A separate toilet and a walk through laundry complete the wet areas.
Entertain outdoors under a fantastic pergola / gazebo area. A large backyard has generous lawn and garden areas with a handy storage shed or workshop at the rear. Dual driveways are a bonus, one driveway leading to a single with carport with automatic roller door, the other allows access to a double free standing carport.
Features in brief:
* Solid brick home plus granny flat extension
* Large formal lounge with ceiling fan and downlights
* New main kitchen with stainless steel appliances, double sink, sky light and breakfast bar plus adjoining meals area
* 5 bedrooms or 4 plus rumpus room
* All bedrooms with built-in robes, bedrooms 1-4 with ceiling fans
* Two bathrooms main with spa bath
* Walk through laundry and separate toilet
* Large light filled family room connecting the main home to the extension
* Great outdoor living gazebo
* Huge backyard with large shed / workshop
* Dual driveways and carports
* Single width carport with automatic roller door
* Double free standing carport
* Large allotment with room to move
* Instant gas hot water service
* 2 Rain water tanks
Perfectly located on the suburban fringe with easy access to Anstey Hill Recreation Park, where walking trails provide a great place for your daily exercise and recreation. The Tea Tree Gully BMX Club is close by for the teenagers entertainment as is Waterworld Aquatic Centre and The Modbury Soccer Club. St Agnes Primary School is in the local area along with Tea Tree Gully and Redwood Park Primary Schools. St Agnes Shopping Centre will cater for your daily shopping requirements and Tea Tree Plaza Shopping & Cinema Complex will provide quality specialty shopping and entertainment.
Disclaimer:
Whilst every care has been taken to verify the accuracy of the details in this advertisement, For Sale By Owner (forsalebyowner.com.au Pty Ltd) cannot guarantee its correctness. Prospective buyers or tenants need to take such action as is necessary, to satisfy themselves of any pertinent matters.
Tiled floors greet us on arrival and flow throughout the main home body, making a pleasing contrast with the neutral colour scheme. Quality down lighting, a ceiling fan and a split system air conditioner combine into a relaxing lounge area. The main kitchen / meals area is adjacent where a modern kitchen boasts stainless steel appliances, double sink, sky light and breakfast bar. A sliding glass door opens to a large family room that connects the main home body to the granny flat / extension.
There are 3 bedrooms in the main home and another 2 in the extension. A separate second kitchen / meals area in the extension, caters for bedrooms 4 & 5. All 5 bedrooms have built-in robes and bedrooms 1 through to 4 have ceiling fans. Bedroom 5 has the option of being a rumpus room with sliding glass doors opening to the gazebo area. There are 2 bathrooms, the main offering a spa bath. A separate toilet and a walk through laundry complete the wet areas.
Entertain outdoors under a fantastic pergola / gazebo area. A large backyard has generous lawn and garden areas with a handy storage shed or workshop at the rear. Dual driveways are a bonus, one driveway leading to a single with carport with automatic roller door, the other allows access to a double free standing carport.
Features in brief:
* Solid brick home plus granny flat extension
* Large formal lounge with ceiling fan and downlights
* New main kitchen with stainless steel appliances, double sink, sky light and breakfast bar plus adjoining meals area
* 5 bedrooms or 4 plus rumpus room
* All bedrooms with built-in robes, bedrooms 1-4 with ceiling fans
* Two bathrooms main with spa bath
* Walk through laundry and separate toilet
* Large light filled family room connecting the main home to the extension
* Great outdoor living gazebo
* Huge backyard with large shed / workshop
* Dual driveways and carports
* Single width carport with automatic roller door
* Double free standing carport
* Large allotment with room to move
* Instant gas hot water service
* 2 Rain water tanks
Perfectly located on the suburban fringe with easy access to Anstey Hill Recreation Park, where walking trails provide a great place for your daily exercise and recreation. The Tea Tree Gully BMX Club is close by for the teenagers entertainment as is Waterworld Aquatic Centre and The Modbury Soccer Club. St Agnes Primary School is in the local area along with Tea Tree Gully and Redwood Park Primary Schools. St Agnes Shopping Centre will cater for your daily shopping requirements and Tea Tree Plaza Shopping & Cinema Complex will provide quality specialty shopping and entertainment.
Disclaimer:
Whilst every care has been taken to verify the accuracy of the details in this advertisement, For Sale By Owner (forsalebyowner.com.au Pty Ltd) cannot guarantee its correctness. Prospective buyers or tenants need to take such action as is necessary, to satisfy themselves of any pertinent matters.
Contact Karen on 0438 838 018 at First Paige Property Settlement Services for help with your Real Estate paperwork (Form 1 & Contracts) or email if you have questions. admin@firstpaigeform1.com
Visit WebsiteNeed a Home Loan?
Get pre-approved for a home loan within 48 hours. Click Here or more information.
- Last 24 Hours0
- Last 7 Days1
- Last 30 Days1
Views
Contact the Owner
Phone or Text: 0488 847 018
Enter Phone Code:
Enter Phone Code:
"*" indicates required fields
