1 Amy Street, Ulverstone, TAS 7315
Sold Price Not Disclosed (31 Aug 2017)
Picture Perfect Family Living with Stunning Ocean and Rural Views
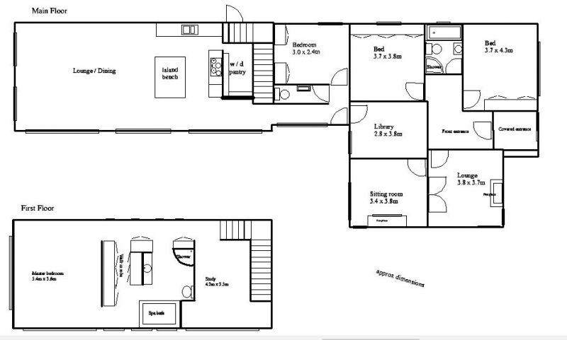
Brimming with character. A beautiful blend of old and new in a modern colonial style, with a welcoming, completely renovated classic interior, and an elevated 1000sqm (approx) block all combined to offer you an impressive lifestyle. With four bedrooms, two and a half bathrooms and five living zones it could be the answer to your dreams.
The stylish open plan designer kitchen with an abundance of space and storage, features stainless steel appliances inclusive of a double oven. Combined with the dining and living areas that all open to the expansive covered deck, perfect for outside entertaining, and child friendly enclosed backyard. Large double glazed windows capture natural light and stunning outlooks, while in slab ambient heating provide year round comfort. Designed for maximum orientation. Cosy fireplaces in both formal living rooms, and a sitting/library room with custom joinery provide plenty of choice for entertaining guests or taking a quiet moment to relax.
A separately zoned master retreat encompassing private living space, luxury ensuite and expansive walk in robes. The bedroom has amazing 180 degree views overlooking Bass Straight, the Leven River and the town and mountains. Watch the Spirit of Tasmania come and go from the Devonport Ferry Terminal. Truly hotel living within the confines of your home. The other three bedrooms of which two are doubles are fitted with built-in robes. An updated bathroom and additional separate powder room.
Connected to the deck is a remote 4 car garage/workshop with loft storage and drive through access to the back yard.
Feature packed and wonderfully flexible, this property will cater to family life across many happy years. Indeed this home is nothing short of inspiring.
All within walking distance of the beaches and Ulverstone's CBD
Additional features
- Walk in pantry with combined laundry/storage area
- 7kw reverse cycle heat/air conditioner
- Individual heating to bedrooms
- Solar panels
- Double glazing
Disclaimer:
Whilst every care has been taken to verify the accuracy of the details in this advertisement, For Sale By Owner (forsalebyowner.com.au Pty Ltd) cannot guarantee its correctness. Prospective buyers or tenants need to take such action as is necessary, to satisfy themselves of any pertinent matters.
The stylish open plan designer kitchen with an abundance of space and storage, features stainless steel appliances inclusive of a double oven. Combined with the dining and living areas that all open to the expansive covered deck, perfect for outside entertaining, and child friendly enclosed backyard. Large double glazed windows capture natural light and stunning outlooks, while in slab ambient heating provide year round comfort. Designed for maximum orientation. Cosy fireplaces in both formal living rooms, and a sitting/library room with custom joinery provide plenty of choice for entertaining guests or taking a quiet moment to relax.
A separately zoned master retreat encompassing private living space, luxury ensuite and expansive walk in robes. The bedroom has amazing 180 degree views overlooking Bass Straight, the Leven River and the town and mountains. Watch the Spirit of Tasmania come and go from the Devonport Ferry Terminal. Truly hotel living within the confines of your home. The other three bedrooms of which two are doubles are fitted with built-in robes. An updated bathroom and additional separate powder room.
Connected to the deck is a remote 4 car garage/workshop with loft storage and drive through access to the back yard.
Feature packed and wonderfully flexible, this property will cater to family life across many happy years. Indeed this home is nothing short of inspiring.
All within walking distance of the beaches and Ulverstone's CBD
Additional features
- Walk in pantry with combined laundry/storage area
- 7kw reverse cycle heat/air conditioner
- Individual heating to bedrooms
- Solar panels
- Double glazing
Disclaimer:
Whilst every care has been taken to verify the accuracy of the details in this advertisement, For Sale By Owner (forsalebyowner.com.au Pty Ltd) cannot guarantee its correctness. Prospective buyers or tenants need to take such action as is necessary, to satisfy themselves of any pertinent matters.
Features
Air Conditioning, Bath, Built-ins, Deck, Dishwasher, Ensuite, Fireplace(s)
Need a Home Loan?
Get pre-approved for a home loan within 48 hours. Click Here or more information.
- Last 24 Hours0
- Last 7 Days1
- Last 30 Days4
Views
Contact the Owner
Phone or Text: 0488 847 018
Enter Phone Code:
Enter Phone Code:
"*" indicates required fields