71 Gordon Street, Swansea, TAS 7190
Sold Price: 315,000 (02 Nov 2017)
Relaxed Coastal Living - Classic 3 Bedroom on 2.5 Acres
Situated on a gently sloping 2.5 acre lot, this warm and welcoming weatherboard home is ideal for the young family or young at heart seeking a relaxed coastal lifestyle within a rural location, yet close to Swansea and all the town has to offer.
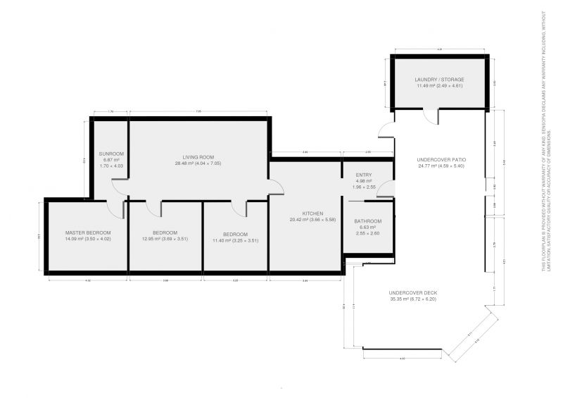
Featuring a fresh classic interior, this property features:
- 3 bedrooms (2 with built-ins)
- sunroom/study
- bathroom with bath/shower
- eat-in kitchen with quality stainless steel appliances including; Siemens dishwasher and Smeg gas oven/cooktop
- living room with both wood-fire and reverse-cycle air conditioner/heat pump
- great north-facing deck, large lawn, BBQ and open garden area ideal for outdoor living all year round
- easy care established gardens
- town water connected
Outside improvements include a large undercover patio, laundry and storage area, double garage with insulated internal office (easily converted to a fourth bedroom or studio if needed), raised vegetable garden beds and separate, fully fenced outdoor area suitable for chickens, pets or to add in additional vegie/fruit gardens.
To help reduce electricity costs, an evacuated solar hot water system and 6 solar panels (1.0kw) have been installed.
While only a minutes drive to Swansea's town centre and convenient to all facilities, this property enjoys an enviable location that is quiet and private, set amongst similar sized properties and has plenty of room out the back for the boat or caravan.
Enjoy a walk with the dog or kids? Just a couple of minutes walk and you're down at Duck Park playground, the Gordon Street boat ramp and beautiful quiet beaches.
This is a lovely property in a great location. Your personal inspection is welcome.
Disclaimer:
Whilst every care has been taken to verify the accuracy of the details in this advertisement, For Sale By Owner (forsalebyowner.com.au Pty Ltd) cannot guarantee its correctness. Prospective buyers or tenants need to take such action as is necessary, to satisfy themselves of any pertinent matters.
Featuring a fresh classic interior, this property features:
- 3 bedrooms (2 with built-ins)
- sunroom/study
- bathroom with bath/shower
- eat-in kitchen with quality stainless steel appliances including; Siemens dishwasher and Smeg gas oven/cooktop
- living room with both wood-fire and reverse-cycle air conditioner/heat pump
- great north-facing deck, large lawn, BBQ and open garden area ideal for outdoor living all year round
- easy care established gardens
- town water connected
Outside improvements include a large undercover patio, laundry and storage area, double garage with insulated internal office (easily converted to a fourth bedroom or studio if needed), raised vegetable garden beds and separate, fully fenced outdoor area suitable for chickens, pets or to add in additional vegie/fruit gardens.
To help reduce electricity costs, an evacuated solar hot water system and 6 solar panels (1.0kw) have been installed.
While only a minutes drive to Swansea's town centre and convenient to all facilities, this property enjoys an enviable location that is quiet and private, set amongst similar sized properties and has plenty of room out the back for the boat or caravan.
Enjoy a walk with the dog or kids? Just a couple of minutes walk and you're down at Duck Park playground, the Gordon Street boat ramp and beautiful quiet beaches.
This is a lovely property in a great location. Your personal inspection is welcome.
Disclaimer:
Whilst every care has been taken to verify the accuracy of the details in this advertisement, For Sale By Owner (forsalebyowner.com.au Pty Ltd) cannot guarantee its correctness. Prospective buyers or tenants need to take such action as is necessary, to satisfy themselves of any pertinent matters.
Features
Air Conditioning, Bath, Built-ins, Deck, Dishwasher, Fireplace(s), Heating, Study, BBQ, Entertainment Area, Garden, Pet Friendly, Rainwater Tank, Solar Hot Water, Solar Panels, Beach/Coastal Property
Need a Home Loan?
Get pre-approved for a home loan within 48 hours. Click Here or more information.
- Last 24 Hours0
- Last 7 Days0
- Last 30 Days10
Views
Contact the Owner
Phone or Text: 0488 847 018
Enter Phone Code:
Enter Phone Code:
"*" indicates required fields