6 Janette Court, Bacchus Marsh, VIC 3340

House 4 2 2
Sold Price: 700,000 (15 Sep 2017)
Virtual Tour
Price reduced
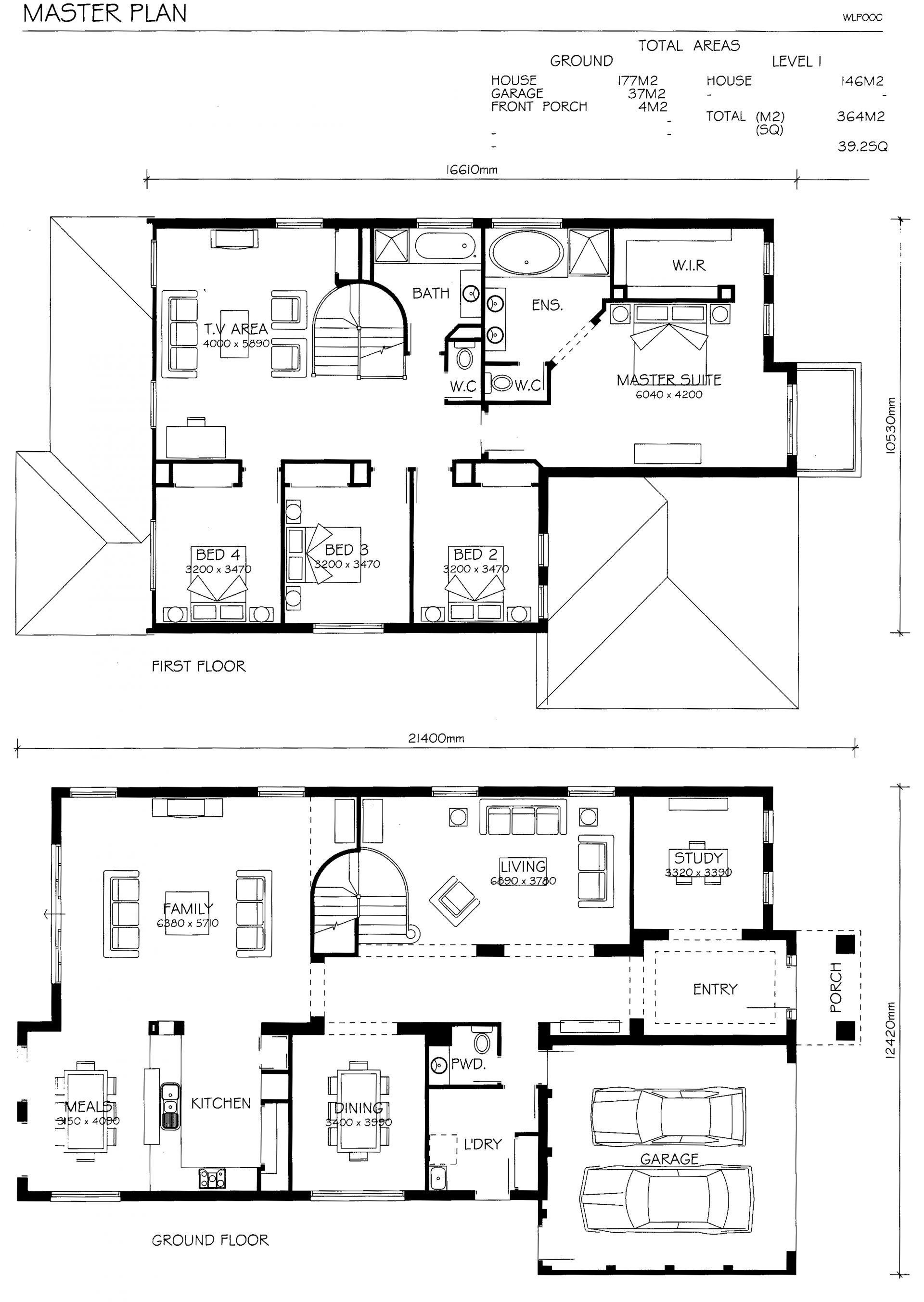
Imagine your family enjoying this 2 story river frontage home in the popular Grantleigh Estate. With four bedrooms plus study you will have plenty of room for the family to grow, and accommodate your guests.

This entertainers delight boasts a large open plan kitchen and living that spills onto a huge patio area overlooking the river. With a 900mm Blanco gas range oven, a plumbed space for a two door fridge, and a fitted out pantry, the resident chef will find hosting a breeze.

Fire up the BBQ on the North facing patio and enjoy the view and birdsong while the children explore the spacious 1092 m2 property in safety. With established trees for climbing, a two story cubby/fort, built in sandpit, lawns, and generously fruiting orchard the kids will be entertained outside for hours on end.

Bike ride or walk along the Lerderderg River Reserve from your own private access gate and explore the swimming/fishing holes, or walk to the nearby golf course. This quiet end of court property also has room to accommodate your caravan/boat, build your own larger shed (STA), and has additional side access.

Being 'stuck inside' on a wet day is no longer an issue, with 39 squares of living space to meet everyone's needs. With NBN installed, and hardwired data connectivity throughout, the whole family can find a place to connect to their work/entertainment. The separate home office comes complete with a huge desk and storage unit. There are three living areas available, with surround sound to the main family room, full block out curtains to the formal lounge/media room, and a huge kids' rumpus area upstairs.
The spacious master suite includes a walk in robe, dual vanity ensuite with oversized shower and spa, and French doors to the parent retreat balcony. The other three double size bedrooms have BIRs, open onto the upstairs living area, and have access to a full size bathroom including bath and separate WC.

Other home features include ducted heating and evaporative cooling, 5kw Solar panel system, ducted vacuum, 2 car remote garage, garden shed, outdoor cat/dog enclosure, dishwasher, high ceilings to ground floor, child safety locks to kitchen cupboards, downstairs powder room, spacious laundry, separate dining room, lots of additional storage spaces, and an automated garden watering system.

Located in the Bacchus Marsh suburb of Darley; offering all the charm and lifestyle of living in a country town with the conveniences and proximity of suburban living. Bacchus Marsh is home to the Avenue of Honour produce trail, has a variety of school options available (including the well regarded Bacchus Marsh Grammar), and only 45 mins from Melbourne, Ballarat, and Geelong.

Please enquire to arrange additional inspection times.

Disclaimer:

Whilst every care has been taken to verify the accuracy of the details in this advertisement, For Sale By Owner (forsalebyowner.com.au Pty Ltd) cannot guarantee its correctness. Prospective buyers or tenants need to take such action as is necessary, to satisfy themselves of any pertinent matters.
Features

Air Conditioning, Balcony/Patio/Terrace, Bath, Built-ins, Dishwasher, Formal Lounge, Fully Fenced, Gas Enabled, Heating, Inside Spa, Internal Laundry, Living Area, Modern Bathroom, Modern Kitchen, Remote Garage, Rumpus Room, Separate Dining Room, Study, Vacuum System, Entertainment Area, Garden, Garden Shed, Pet Friendly, Solar Panels, Close to Parklands, Close to Schools, Close to Shops, Close to Transport, Near Waterfront, Quiet Location, Views, Absolute Waterfront, Nature Property, Prestige Property, Non Smoking

Due Diligence Checklist

Before you buy a home or vacant residential land, you should be aware of a range of issues that may affect that property and impose restrictions or obligations on you, if you buy it. Click Here to read more.

    Need a Home Loan?

    Get pre-approved for a home loan within 48 hours. Click Here or more information.

    Views
  • Last 24 Hours0
  • Last 7 Days0
  • Last 30 Days0
Contact the Owner
Phone or Text: 0488 847 018
Enter Phone Code:

"*" indicates required fields