43/28 Castello Circuit, Varsity Lakes, QLD 4227
Sold Price: 572,500 (25 Oct 2016)
Your Private Resort Lifestyle Awaits ....
Your dream lifestyle starts right here - Stunning quality, modern open plan living with loads of space and no maintenance living in 'Azzurra Eco' Residential Resort, a boutique complex overlooking tranquil natural bushland. Perfect for an executive couple, family, investor or those needing to work from home, this immaculately presented free-standing home is one of only 13 villas in the complex.
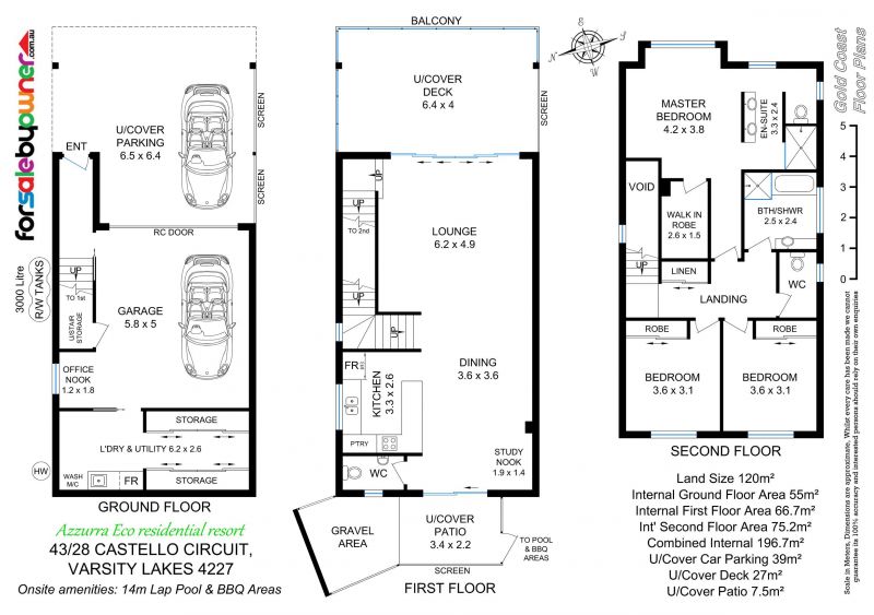
The first floor provides seamless indoor outdoor living and entertaining with the spacious lounge opening to a large undercover deck where you can enjoy the adjacent bushland and birdlife and a back patio with direct access to the stunning 14m pool, twin BBQ gazebos and grassed area. The modern kitchen has stone benchtops and Bosch appliances and flows to the dining area, powder room and study nook.
The second level houses the well laid out master suite comprising a stylish ensuite with dual vanities, separate toilet and walk-in robe. A central bathroom and second separate toilet serve another two good sized bedrooms with built in robes and outlooks over the resort styled pool.
The ground floor is an absolute bonus with an office nook, extensive built in storage in the separate laundry/utility room and accommodation for 4 cars (2 garaged plus 2 undercover).
Located only minutes from Varsity rail link, bus routes and the M1 as well as Easy-t and Robina Town Centre shopping and dining. Zoned for Varsity College and close to Bond Uni, several world class golf courses and only 7 kms from Burleigh Heads beach, this is the perfect location for work, living and leisure. Plus right on your doorstep are over 15 kms of cycle/walkways around Azzurra Island and Lake Orr.
Don't delay to view this property and secure the dream lifestyle you've been looking for.
Property features:
• Ducted zoned air conditioning on both levels & ceiling fans in all bedrooms
• Neutral tones throughout with a mix of bamboo floors, tiles and carpet
• Modern very functional kitchen with pantry & plumbed fridge cavity
• 3 generous sized bedrooms, master with w.i.r & ensuite; separate bathroom and toilet
• Exceptional storage with 7m of built-in cupboards and under stair storage space in garage
• Parking for 4 cars and security system
• 3,000 litre rainwater tank; external clothes line
• Swimming pool, BBQ area and beautifully landscaped gardens
• Secure and peaceful complex, only 6 years old, next to park and lake.
Disclaimer:
Whilst every care has been taken to verify the accuracy of the details in this advertisement, For Sale By Owner (forsalebyowner.com.au Pty Ltd) cannot guarantee its correctness. Prospective buyers or tenants need to take such action as is necessary, to satisfy themselves of any pertinent matters.
The first floor provides seamless indoor outdoor living and entertaining with the spacious lounge opening to a large undercover deck where you can enjoy the adjacent bushland and birdlife and a back patio with direct access to the stunning 14m pool, twin BBQ gazebos and grassed area. The modern kitchen has stone benchtops and Bosch appliances and flows to the dining area, powder room and study nook.
The second level houses the well laid out master suite comprising a stylish ensuite with dual vanities, separate toilet and walk-in robe. A central bathroom and second separate toilet serve another two good sized bedrooms with built in robes and outlooks over the resort styled pool.
The ground floor is an absolute bonus with an office nook, extensive built in storage in the separate laundry/utility room and accommodation for 4 cars (2 garaged plus 2 undercover).
Located only minutes from Varsity rail link, bus routes and the M1 as well as Easy-t and Robina Town Centre shopping and dining. Zoned for Varsity College and close to Bond Uni, several world class golf courses and only 7 kms from Burleigh Heads beach, this is the perfect location for work, living and leisure. Plus right on your doorstep are over 15 kms of cycle/walkways around Azzurra Island and Lake Orr.
Don't delay to view this property and secure the dream lifestyle you've been looking for.
Property features:
• Ducted zoned air conditioning on both levels & ceiling fans in all bedrooms
• Neutral tones throughout with a mix of bamboo floors, tiles and carpet
• Modern very functional kitchen with pantry & plumbed fridge cavity
• 3 generous sized bedrooms, master with w.i.r & ensuite; separate bathroom and toilet
• Exceptional storage with 7m of built-in cupboards and under stair storage space in garage
• Parking for 4 cars and security system
• 3,000 litre rainwater tank; external clothes line
• Swimming pool, BBQ area and beautifully landscaped gardens
• Secure and peaceful complex, only 6 years old, next to park and lake.
Disclaimer:
Whilst every care has been taken to verify the accuracy of the details in this advertisement, For Sale By Owner (forsalebyowner.com.au Pty Ltd) cannot guarantee its correctness. Prospective buyers or tenants need to take such action as is necessary, to satisfy themselves of any pertinent matters.
Features
Air Conditioning, Deck, Dishwasher, Internal Laundry, Modern Kitchen, Remote Garage, BBQ, Secure Parking, Swimming/Lap Pool, Alarm System, Close to Parklands, Close to Schools, Close to Shops, Close to Transport, Quiet Location, Nature Property
Need a Home Loan?
Get pre-approved for a home loan within 48 hours. Click Here or more information.
- Last 24 Hours0
- Last 7 Days0
- Last 30 Days13
Views
Contact the Owner
Phone or Text: 0488 847 018
Enter Phone Code:
Enter Phone Code:
"*" indicates required fields