23 Casuarina Avenue, Bellingen, NSW 2454
Sold Price: 500,000 (27 Dec 2016)
Handcrafted home that catches the breeze
This home was built for comfort, aesthetics and sustainability with 3 m high ceilings, polished timber floor in the living area and kitchen, solid timber internal doors and insulation in walls and ceilings as well as under floor.
Recently renovated, there is nothing to do - just move in.
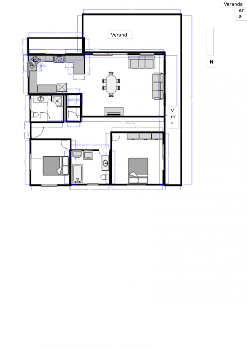
The large covered north facing veranda provides for summer outdoor living and entertainment. The practical kitchen features a stainless steel wall oven and gas cooktop, large pantry, plenty of bench space and timber breakfast bar.
There are two newly carpeted bedrooms upstairs, one with a built-in wardrobe, one large bathroom with bath and laundry and another smaller bathroom with shower. Both bathrooms have quality fittings and tiles. Downstairs are another two bedrooms with built-ins and large sliding glass doors to the garden and patio.
Situated in a quiet, no-through street in North Bellingen, this elevated location offers summer breezes, privacy and is only 15 minutes' walk to Bellingen's main street. The house is full of character with a successful combination of new and recycled timber building materials upstairs and Hebel block walls and tiled floors downstairs.
There is a single carport and the well-established gardens provide for pleasant privacy in a family friendly neighbourhood with little traffic in this no-through street.
Disclaimer:
Whilst every care has been taken to verify the accuracy of the details in this advertisement, For Sale By Owner (forsalebyowner.com.au Pty Ltd) cannot guarantee its correctness. Prospective buyers or tenants need to take such action as is necessary, to satisfy themselves of any pertinent matters.
Recently renovated, there is nothing to do - just move in.
The large covered north facing veranda provides for summer outdoor living and entertainment. The practical kitchen features a stainless steel wall oven and gas cooktop, large pantry, plenty of bench space and timber breakfast bar.
There are two newly carpeted bedrooms upstairs, one with a built-in wardrobe, one large bathroom with bath and laundry and another smaller bathroom with shower. Both bathrooms have quality fittings and tiles. Downstairs are another two bedrooms with built-ins and large sliding glass doors to the garden and patio.
Situated in a quiet, no-through street in North Bellingen, this elevated location offers summer breezes, privacy and is only 15 minutes' walk to Bellingen's main street. The house is full of character with a successful combination of new and recycled timber building materials upstairs and Hebel block walls and tiled floors downstairs.
There is a single carport and the well-established gardens provide for pleasant privacy in a family friendly neighbourhood with little traffic in this no-through street.
Disclaimer:
Whilst every care has been taken to verify the accuracy of the details in this advertisement, For Sale By Owner (forsalebyowner.com.au Pty Ltd) cannot guarantee its correctness. Prospective buyers or tenants need to take such action as is necessary, to satisfy themselves of any pertinent matters.
Features
Balcony/Patio/Terrace, Bath, Built-ins, Deck, Heating, Polished Timber Floors, Renovated, Balcony, Garden, Solar Hot Water, Quiet Location
Need a Home Loan?
Get pre-approved for a home loan within 48 hours. Click Here or more information.
- Last 24 Hours0
- Last 7 Days1
- Last 30 Days2
Views
Contact the Owner
Phone or Text: 0488 847 018
Enter Phone Code:
Enter Phone Code:
"*" indicates required fields