27 Devon St North, Goodwood, SA 5034
Sold Price: 872,000 (04 Oct 2016)
Offers closed.
Offers have now closed on this property.
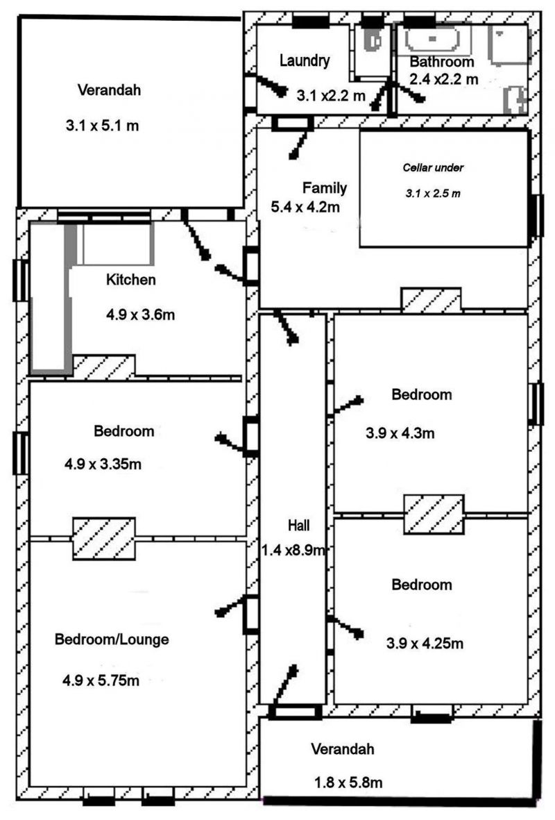
A classic bluestone villa in a sought after near city location. It has a big north - east facing backyard (766m2 land) that has massive potential.
• Iconic bluestone villa c. 1880
• Six original large main rooms all with high ceilings
• Partially renovated - comfortable living now or extend to your requirements
• Large dry cellar.
• Many original features such as cast iron fireplaces, ceiling roses, arched hallway, polished baltic floors, leadlight, etched glass.
• Versatile floorplan with up to 4 bedrooms
• Bright sunny kitchen with dishwasher (note that the oven is not working)
• Single garage - driveway has room for 4 cars off-street parking
The Location:
• Quiet street, inner city location that is only minutes' walk to tram, train, bus.
• Adjacent to dedicated bikeways to city and beach.
• Stroll to cosmopolitan Goodwood village to enjoy cafes, restaurants, hotel, library, Capri Cinema and shopping.
• Farmers market.
• Relax at the Forestville Reserve with playground and bush creek setting which is just 2 minutes walk away
• Unley swimming pool
• Tennis courts and dog park at Goodwood Oval.
• Zoned Adelaide High School, and a short walk to Goodwood Primary and St Thomas Schools
Disclaimer:
Whilst every care has been taken to verify the accuracy of the details in this advertisement, For Sale By Owner (forsalebyowner.com.au Pty Ltd) cannot guarantee its correctness. Prospective buyers or tenants need to take such action as is necessary, to satisfy themselves of any pertinent matters.
A classic bluestone villa in a sought after near city location. It has a big north - east facing backyard (766m2 land) that has massive potential.
• Iconic bluestone villa c. 1880
• Six original large main rooms all with high ceilings
• Partially renovated - comfortable living now or extend to your requirements
• Large dry cellar.
• Many original features such as cast iron fireplaces, ceiling roses, arched hallway, polished baltic floors, leadlight, etched glass.
• Versatile floorplan with up to 4 bedrooms
• Bright sunny kitchen with dishwasher (note that the oven is not working)
• Single garage - driveway has room for 4 cars off-street parking
The Location:
• Quiet street, inner city location that is only minutes' walk to tram, train, bus.
• Adjacent to dedicated bikeways to city and beach.
• Stroll to cosmopolitan Goodwood village to enjoy cafes, restaurants, hotel, library, Capri Cinema and shopping.
• Farmers market.
• Relax at the Forestville Reserve with playground and bush creek setting which is just 2 minutes walk away
• Unley swimming pool
• Tennis courts and dog park at Goodwood Oval.
• Zoned Adelaide High School, and a short walk to Goodwood Primary and St Thomas Schools
Disclaimer:
Whilst every care has been taken to verify the accuracy of the details in this advertisement, For Sale By Owner (forsalebyowner.com.au Pty Ltd) cannot guarantee its correctness. Prospective buyers or tenants need to take such action as is necessary, to satisfy themselves of any pertinent matters.
Features
Air Conditioning, Basement, Bath, Dishwasher, Fireplace(s), Fully Fenced, Internal Laundry, Polished Timber Floors, Renovated, Level Lawn, Pet Friendly, Safe, Close to Parklands, Close to Schools, Close to Shops, Close to Transport, Quiet Location
Contact Karen on 0438 838 018 at First Paige Property Settlement Services for help with your Real Estate paperwork (Form 1 & Contracts) or email if you have questions. admin@firstpaigeform1.com
Visit WebsiteNeed a Home Loan?
Get pre-approved for a home loan within 48 hours. Click Here or more information.
- Last 24 Hours0
- Last 7 Days0
- Last 30 Days5
Views
Contact the Owner
Phone or Text: 0488 847 018
Enter Phone Code:
Enter Phone Code:
"*" indicates required fields
