23 Ronald Rd, Taree, NSW 2430
Sold Price: 239,000 (09 Nov 2016)
BRICK AND TILE UNDER $240k
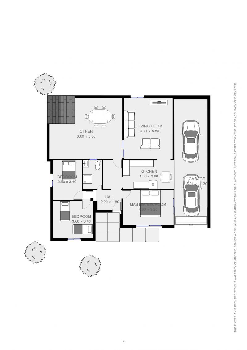
You will hear the sound of chirpy lorikeets as you head along the leafy street to view this home. Surrounded with a lovely low maintenance established garden. It has full bodied porcelain tiled kitchen and living area's with gorgeous polished hardwood timber floors in the entrance and bedrooms.
Features include-
• Easy access w/ lowset ramps - pram/walker/w/chair
• Spacious lounge with reverse air con. opens to alfresco area
• 3 generous sized bedrooms, all heated, two with Daikin air con.
• Dining off Quaint kitchen w/ new dishwasher & Euromaid Cooker!
• Modernised bathroom offers shower & toilet. Sep. Internal laundry
• Tandem carport w/ Remote door fits 2 x 4WD & has access to rear
• The Home IS fitted with NBN internet access.
...All this close to daily running bus service, school, shops & parkland. Seller willing to rent back if you wish @ Rent Appraised $300 p/w
Or move in now!
A must inspect! Council Rates $295 per 1/4
Disclaimer:
Whilst every care has been taken to verify the accuracy of the details in this advertisement, For Sale By Owner (forsalebyowner.com.au Pty Ltd) cannot guarantee its correctness. Prospective buyers or tenants need to take such action as is necessary, to satisfy themselves of any pertinent matters.
Features include-
• Easy access w/ lowset ramps - pram/walker/w/chair
• Spacious lounge with reverse air con. opens to alfresco area
• 3 generous sized bedrooms, all heated, two with Daikin air con.
• Dining off Quaint kitchen w/ new dishwasher & Euromaid Cooker!
• Modernised bathroom offers shower & toilet. Sep. Internal laundry
• Tandem carport w/ Remote door fits 2 x 4WD & has access to rear
• The Home IS fitted with NBN internet access.
...All this close to daily running bus service, school, shops & parkland. Seller willing to rent back if you wish @ Rent Appraised $300 p/w
Or move in now!
A must inspect! Council Rates $295 per 1/4
Disclaimer:
Whilst every care has been taken to verify the accuracy of the details in this advertisement, For Sale By Owner (forsalebyowner.com.au Pty Ltd) cannot guarantee its correctness. Prospective buyers or tenants need to take such action as is necessary, to satisfy themselves of any pertinent matters.
Features
Air Conditioning, Balcony/Patio/Terrace, Broadband, Dishwasher, Formal Lounge, Heating, Internal Laundry, Modern Bathroom, Polished Timber Floors, Remote Garage, Renovated, Renovated Bathroom, Entertainment Area, Garden, Garden Shed, Level Lawn, Shower Facilities, Storage Area, Workshop, Safe, Security Windows, Close to Parklands, Close to Schools, Close to Shops, Close to Transport, Quiet Location, Website Featured Property
Need a Home Loan?
Get pre-approved for a home loan within 48 hours. Click Here or more information.
- Last 24 Hours0
- Last 7 Days0
- Last 30 Days2
Views
Contact the Owner
Phone or Text: 0488 847 018
Enter Phone Code:
Enter Phone Code:
"*" indicates required fields