15 Dunkley Ave, Firle, SA 5070
Large Family Home, Large Block With Granny Flat, Studio & Orchard
Awesome Location - 200 Metres To Shops, Bank, Cafes, Service Sa, Doctors, Dentists, Playground
10 minutes into the City and close to many eastern suburbs schools. Easy public transport close by.
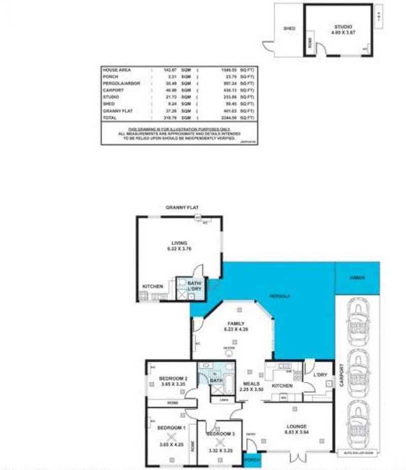
AMAZING LARGE FAMILY HOME of three bedrooms and one bathroom plus a fully self contained granny flat, set on a large block with vegie gardens, established fruit trees and secluded studio / office at the bottom of the garden.
PERFECT FOR LARGE FAMILY, KEEN GARDENER - and or HOME BUSINESS
Features:
• Double brick building with tiled roof and wooden floors throughout
• Solar Power 2.85Kw installed and Fast Cable internet available to connect to.
• Ducted evaporative A/C and Ducted gas heating
• Modern kitchen with dishwasher and large laundry with extra storage
• Two living areas - lounge and living - very spacious and light filled rooms and lots of extra storage in-built passage cupboards
• Large bedrooms with built in robes in main and second bedroom
• Fully Fenced yard with front gate and automatic roller door with lock up carport
• Fully equipped granny flat with RC A/C, kitchenette with fridge and bathroom suitable for teenager / parent or rent out
• Studio or extra bedroom or office with RC A/C and computer network cabling from main house
• Outdoor wooden cubby / fort with slide and climbing rope and sand pit
• Large back covered veranda, lockable tool shed and under cover storage area at side of house
• Large fenced chook run and chicken coop at rear of yard
Regretful sale - We had 5 amazing years living here but have now moved interstate. Genuine buyers apply only.
Disclaimer:
Whilst every care has been taken to verify the accuracy of the details in this advertisement, For Sale By Owner (forsalebyowner.com.au Pty Ltd) cannot guarantee its correctness. Prospective buyers or tenants need to take such action as is necessary, to satisfy themselves of any pertinent matters.
Features
Air Conditioning, Bath, Broadband, Built-ins, Dishwasher, Fully Fenced, Gas Enabled, Heating, Internal Laundry, Living Area, Modern Bathroom, Modern Kitchen, Pay TV Enabled, Polished Timber Floors, Remote Garage, Renovated, Study, Entertainment Area, Garden, Garden Shed, Level Lawn, Pet Friendly, Secure Parking, Shower Facilities, Solar Panels, Storage Area, Security Lights, Close to Parklands, Close to Schools, Close to Shops, Close to Transport, Prestige Property
Contact Karen on 0438 838 018 at First Paige Property Settlement Services for help with your Real Estate paperwork (Form 1 & Contracts) or email if you have questions. admin@firstpaigeform1.com
Visit WebsiteNeed a Home Loan?
Get pre-approved for a home loan within 48 hours. Click Here or more information.
- Last 24 Hours1
- Last 7 Days2
- Last 30 Days3
Views
Contact the Owner
Enter Phone Code:
"*" indicates required fields
