8 Fraser Street, Lane Cove North, NSW 2066
Sold Price: 1,500,000 (29 Jul 2016)
Back to Nature!
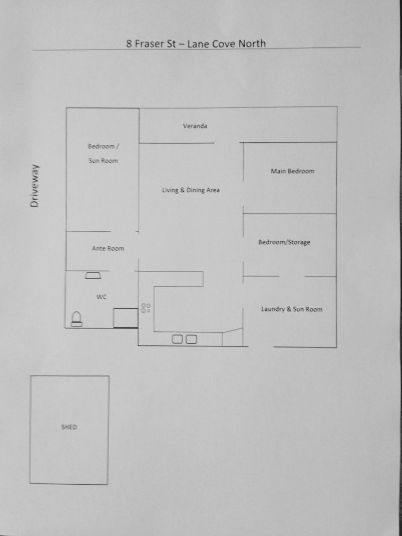
Cosy, low maintenance 1950's style fibro cottage with modernised kitchen, bathroom and laundry; great BBQ and entertaining space; gas cooking; set in expansive 726 square metre property.
Established cottage garden in front yard featuring natives, a mature magnolia tree and fresias naturalised through the lawn. A late winter delight!
Peaceful, sunny backyard with northern aspect. Frequent wildlife visitors including; magpies, kookaburras, fairy wrens, silvereyes, cockatoos, galahs, lorikeets and others.
Located in quiet, family-friendly street; ready made for a young family.
Walk to dog park and football oval, Lane Cove West business district.
Stress free, 20 minutes travel to Sydney city on Epping Road buses. Ten minutes to Lane Cove National Park.
Easy access to Lane Cove village and Macquarie shopping centres; North Ryde, Macquarie Park and Chatswood railway stations; Macquarie University.
Inspection by appointment.
Disclaimer:
Whilst every care has been taken to verify the accuracy of the details in this advertisement, For Sale By Owner (forsalebyowner.com.au Pty Ltd) cannot guarantee its correctness. Prospective buyers or tenants need to take such action as is necessary, to satisfy themselves of any pertinent matters.
Established cottage garden in front yard featuring natives, a mature magnolia tree and fresias naturalised through the lawn. A late winter delight!
Peaceful, sunny backyard with northern aspect. Frequent wildlife visitors including; magpies, kookaburras, fairy wrens, silvereyes, cockatoos, galahs, lorikeets and others.
Located in quiet, family-friendly street; ready made for a young family.
Walk to dog park and football oval, Lane Cove West business district.
Stress free, 20 minutes travel to Sydney city on Epping Road buses. Ten minutes to Lane Cove National Park.
Easy access to Lane Cove village and Macquarie shopping centres; North Ryde, Macquarie Park and Chatswood railway stations; Macquarie University.
Inspection by appointment.
Disclaimer:
Whilst every care has been taken to verify the accuracy of the details in this advertisement, For Sale By Owner (forsalebyowner.com.au Pty Ltd) cannot guarantee its correctness. Prospective buyers or tenants need to take such action as is necessary, to satisfy themselves of any pertinent matters.
Features
Fully Fenced, Internal Laundry, Living Area, Renovated Bathroom, Renovated Kitchen, Entertainment Area, Garden, Garden Shed, Level Lawn, Pet Friendly, Workshop, Close to Parklands, Close to Schools, Close to Shops, Close to Transport, Quiet Location
Need a Home Loan?
Get pre-approved for a home loan within 48 hours. Click Here or more information.
- Last 24 Hours0
- Last 7 Days0
- Last 30 Days4
Views
Contact the Owner
Phone or Text: 0488 847 018
Enter Phone Code:
Enter Phone Code:
"*" indicates required fields