1/399 Bayview St, Hollywell, QLD 4216
Sold Price: 467,500 (04 Oct 2016)
PARADISE POINT CAFE AND WATER LIFESTYLE. HOME BUSINESS POSSIBILITIES.
You will feel like you are on a permanent holiday only 400 metres walk to the beautiful parklands at Paradise Point broadwater. Enjoy your morning walk along the pathways and stop for breakfast at one of the many cafes along the esplanade.
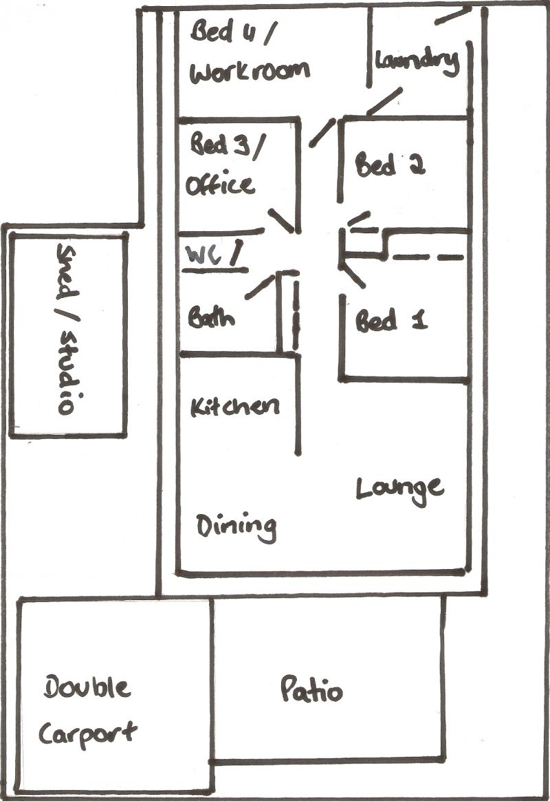
This roomy duplex has the feel of a detached house with plenty of space for 2 cars as well as an extra shed/studio perfect for a home business.
Large entertainers dining area and lounge opening up to enormous outdoor patio area surrounded by lush gardens. 2 bedrooms with robes and 1 bedroom/office as well as an extra multipurpose room suitable as 4th bedroom, family room or an extra home business area. Laundry with extra toilet ajoins this area (see floorplan).
Brand new carpets and roof recently resealed and painted. New ceiling insulation. 2 split system airconditioners and fans to bedrooms. Fully fenced pet friendly. Electronic security gate with intercom. Great neighbourhood with quiet neighbours. Bus stop 100m metres away.
Disclaimer:
Whilst every care has been taken to verify the accuracy of the details in this advertisement, For Sale By Owner (forsalebyowner.com.au Pty Ltd) cannot guarantee its correctness. Prospective buyers or tenants need to take such action as is necessary, to satisfy themselves of any pertinent matters.
This roomy duplex has the feel of a detached house with plenty of space for 2 cars as well as an extra shed/studio perfect for a home business.
Large entertainers dining area and lounge opening up to enormous outdoor patio area surrounded by lush gardens. 2 bedrooms with robes and 1 bedroom/office as well as an extra multipurpose room suitable as 4th bedroom, family room or an extra home business area. Laundry with extra toilet ajoins this area (see floorplan).
Brand new carpets and roof recently resealed and painted. New ceiling insulation. 2 split system airconditioners and fans to bedrooms. Fully fenced pet friendly. Electronic security gate with intercom. Great neighbourhood with quiet neighbours. Bus stop 100m metres away.
Disclaimer:
Whilst every care has been taken to verify the accuracy of the details in this advertisement, For Sale By Owner (forsalebyowner.com.au Pty Ltd) cannot guarantee its correctness. Prospective buyers or tenants need to take such action as is necessary, to satisfy themselves of any pertinent matters.
Features
Air Conditioning, Bath, Built-ins, Fully Fenced, Internal Laundry, Living Area, Modern Bathroom, Modern Kitchen, Separate Dining Room, Entertainment Area, Garden Shed, Level Lawn, Pet Friendly, Secure Parking, Workshop, Intercom, Security Windows, Close to Parklands, Close to Schools, Close to Shops, Close to Transport, Near Waterfront
Need a Home Loan?
Get pre-approved for a home loan within 48 hours. Click Here or more information.
- Last 24 Hours1
- Last 7 Days1
- Last 30 Days5
Views
Contact the Owner
Phone or Text: 0488 847 018
Enter Phone Code:
Enter Phone Code:
"*" indicates required fields