79 Haywoods Lane, Somerset, TAS 7322
Sold Price: 342,000 (06 Dec 2016)
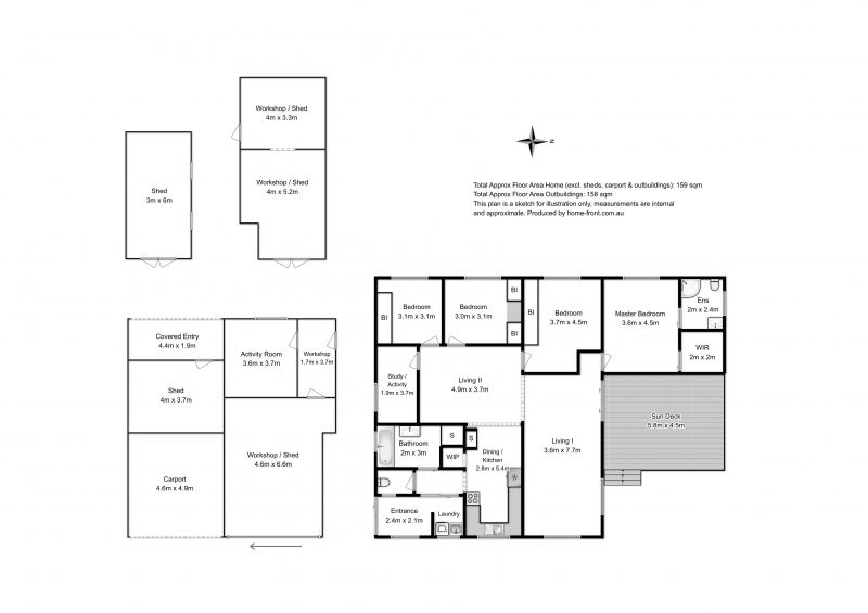
4/5 Bedroom renovated house in Somerset Tas. 3/4 acre, sheds, ensuite, built ins, town and tank water, gardens, fruit trees, 2 living areas,
Quiet location, 3 Kms out of Somerset.
Private and secluded.
4 Bedroom + study or 5th bedroom if needed.
Main with ensuite and walk in robe.
2 Living areas.
Pantry
2 of the bedrooms are doubles with ceiling fans, 2 medium and 1 average size.
All but the 5th bedroom with built in robes.
2nd lounge and bedrooms 2-5 just carpeted.
Heat pump.
Well insulated.
Large deck which gets great sun in the morning for that early cuppa or breakfast.
3/4 of an acre of well kept yard with fruit trees, vegie patch and native gardens.
Several sheds, workshop, carport, gym/mancave.
Mains and tank water + septic tank which helps to keep the rates low.
Main bedroom and first living area are new extensions.
Rest recently renovated.
Aluminium windows.
Dishwasher.
Great large family home in a good area close to the Cam River Reserve and Somerset itself.
Huge, park like, yard with garden beds, fruit trees, native trees and great views over the back boundary.
Off the highway up a quiet lane but not far from everything.
Private and secluded setting not overlooked by anyone.
From the road. All you can see is hedge, fence, native trees,garage and carport but once you get inside the quirky door/gate with it's lead glass windows into the yard you can start to really appreciate the scale of what lies within. Cricket, badminton, archery, room for everything.
You have to get inside the house also to take advantage of the space, warmth, layout and multiple rooms that are on offer.
Low maintenance cladding with aluminium windows which make it light and sunny.
Well insulated with no long hallways so the very efficient heat pump keeps the whole house warm even on the coldest of winter nights.
Several sheds of various sizes plus workshop or lock up parking plus carport plus other off street parking. Sectioned off man cave which is currently a gym.
Oh the sheds, carport, lock up garage or workshop for the handyman, 2 storage sheds, small job area, gym/man cave and large garden shed with double doors and 2 sections for the ride on and all the gardening tools.
Perfect for the large family and the handyman.
Lots of room for the kids and pets.
Call or message to arrange a look through.
Note: House professionally photographed by Sean from Homefront Tasmania.
Disclaimer:
Whilst every care has been taken to verify the accuracy of the details in this advertisement, For Sale By Owner (forsalebyowner.com.au Pty Ltd) cannot guarantee its correctness. Prospective buyers or tenants need to take such action as is necessary, to satisfy themselves of any pertinent matters.
Private and secluded.
4 Bedroom + study or 5th bedroom if needed.
Main with ensuite and walk in robe.
2 Living areas.
Pantry
2 of the bedrooms are doubles with ceiling fans, 2 medium and 1 average size.
All but the 5th bedroom with built in robes.
2nd lounge and bedrooms 2-5 just carpeted.
Heat pump.
Well insulated.
Large deck which gets great sun in the morning for that early cuppa or breakfast.
3/4 of an acre of well kept yard with fruit trees, vegie patch and native gardens.
Several sheds, workshop, carport, gym/mancave.
Mains and tank water + septic tank which helps to keep the rates low.
Main bedroom and first living area are new extensions.
Rest recently renovated.
Aluminium windows.
Dishwasher.
Great large family home in a good area close to the Cam River Reserve and Somerset itself.
Huge, park like, yard with garden beds, fruit trees, native trees and great views over the back boundary.
Off the highway up a quiet lane but not far from everything.
Private and secluded setting not overlooked by anyone.
From the road. All you can see is hedge, fence, native trees,garage and carport but once you get inside the quirky door/gate with it's lead glass windows into the yard you can start to really appreciate the scale of what lies within. Cricket, badminton, archery, room for everything.
You have to get inside the house also to take advantage of the space, warmth, layout and multiple rooms that are on offer.
Low maintenance cladding with aluminium windows which make it light and sunny.
Well insulated with no long hallways so the very efficient heat pump keeps the whole house warm even on the coldest of winter nights.
Several sheds of various sizes plus workshop or lock up parking plus carport plus other off street parking. Sectioned off man cave which is currently a gym.
Oh the sheds, carport, lock up garage or workshop for the handyman, 2 storage sheds, small job area, gym/man cave and large garden shed with double doors and 2 sections for the ride on and all the gardening tools.
Perfect for the large family and the handyman.
Lots of room for the kids and pets.
Call or message to arrange a look through.
Note: House professionally photographed by Sean from Homefront Tasmania.
Disclaimer:
Whilst every care has been taken to verify the accuracy of the details in this advertisement, For Sale By Owner (forsalebyowner.com.au Pty Ltd) cannot guarantee its correctness. Prospective buyers or tenants need to take such action as is necessary, to satisfy themselves of any pertinent matters.
Need a Home Loan?
Get pre-approved for a home loan within 48 hours. Click Here or more information.
- Last 24 Hours0
- Last 7 Days1
- Last 30 Days7
Views
Contact the Owner
Phone or Text: 0488 847 018
Enter Phone Code:
Enter Phone Code:
"*" indicates required fields