197 Queen Street, Cleveland, QLD 4163
Sold Price: 490,000 (16 Feb 2016)
Bayside Living With Lovely Bay Breezes
This highset family home is ideally positioned in a friendly part of Cleveland and across from a wildlife reserve.
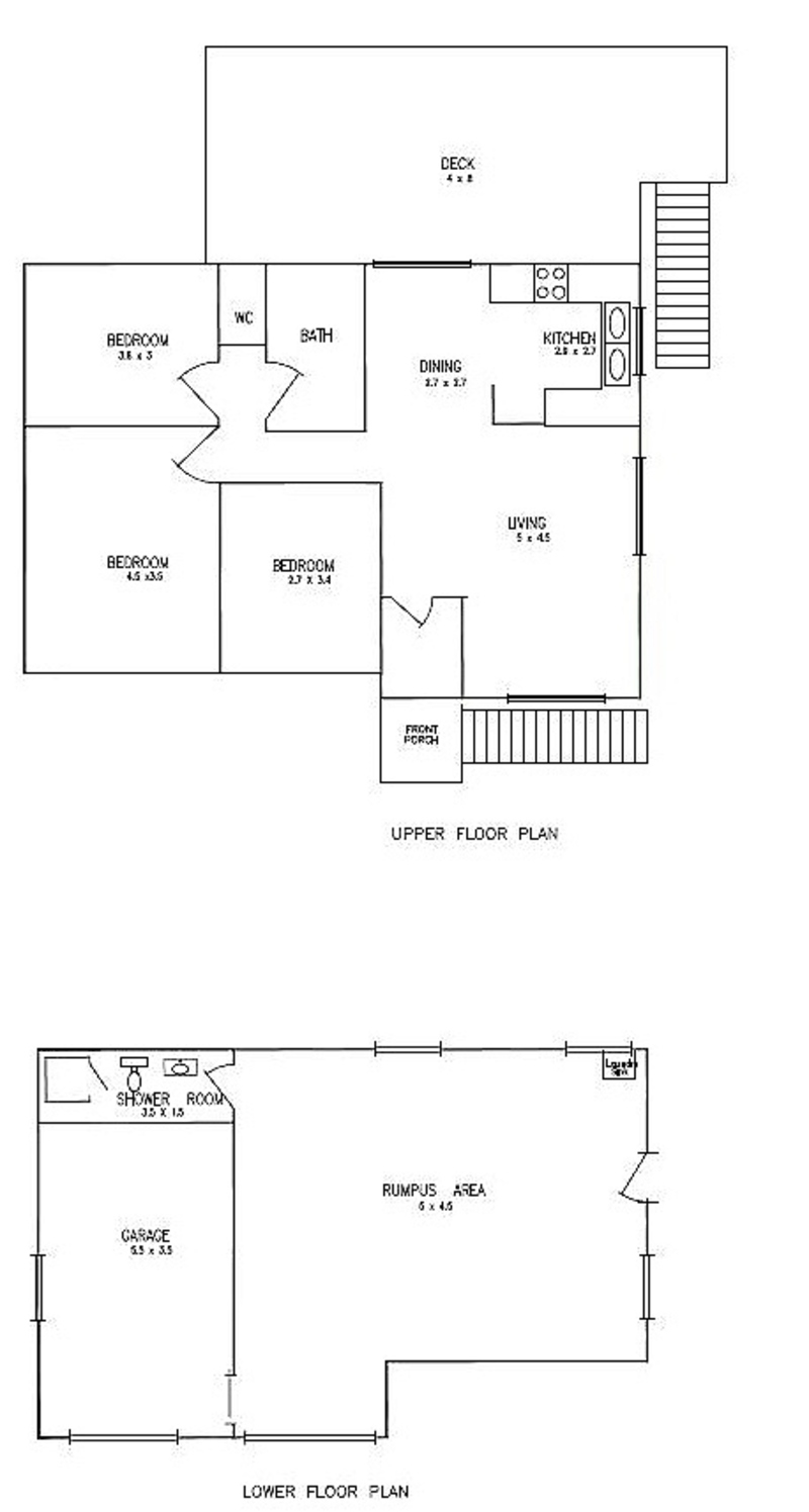
Upstairs is the kitchen, living and dining area, main bathroom and three bedrooms all with built-ins. Polished wood floors throughout. The dining room opens onto a large, breezy entertainment deck offering true indoor/outdoor living.
Downstairs, there is a generous tiled space with a shower and toilet. There is a single car garage and an extensive paved, shaded outdoor area. There are two split system air conditioners (one upstairs, one downstairs), which make this house comfortable all year round.
The house is situated on a fully fenced 900 sq.m. allotment (20m frontage with 45m sides). The contour is such that there is a slight down grade from back to front. There are no encumbrances or easements. The property has a small shed at the back and two raised veggie gardens.
Local amenities are all generally within 1 km which include shopping and business centre, state primary and secondary schools, library, childcare, bus and rail facilities.
Cleveland is one of the popular bayside suburbs of Redland City located 25 kilometres radially east and slightly south of the Brisbane CBD. The immediate surrounding area comprises of a well established low density residential subdivision, characterised by mostly single and some larger two level homes. .
The property has a number of development options (subject to Council approval):
1. The property as a continuation of the existing residential use,
2. Demolition of the existing dwelling and subdivision into two smaller allotments that would be 'side by side' at about 400 square metres each in area with a 10 metre frontage,
3. Retain the existing dwelling on the front of the site, with subdivision enabling a new rear site to be created behind the dwelling.
Contact us today to arrange an inspection.
Disclaimer:
Whilst every care has been taken to verify the accuracy of the details in this advertisement, For Sale By Owner (forsalebyowner.com.au Pty Ltd) cannot guarantee its correctness. Prospective buyers or tenants need to take such action as is necessary, to satisfy themselves of any pertinent matters.
Upstairs is the kitchen, living and dining area, main bathroom and three bedrooms all with built-ins. Polished wood floors throughout. The dining room opens onto a large, breezy entertainment deck offering true indoor/outdoor living.
Downstairs, there is a generous tiled space with a shower and toilet. There is a single car garage and an extensive paved, shaded outdoor area. There are two split system air conditioners (one upstairs, one downstairs), which make this house comfortable all year round.
The house is situated on a fully fenced 900 sq.m. allotment (20m frontage with 45m sides). The contour is such that there is a slight down grade from back to front. There are no encumbrances or easements. The property has a small shed at the back and two raised veggie gardens.
Local amenities are all generally within 1 km which include shopping and business centre, state primary and secondary schools, library, childcare, bus and rail facilities.
Cleveland is one of the popular bayside suburbs of Redland City located 25 kilometres radially east and slightly south of the Brisbane CBD. The immediate surrounding area comprises of a well established low density residential subdivision, characterised by mostly single and some larger two level homes. .
The property has a number of development options (subject to Council approval):
1. The property as a continuation of the existing residential use,
2. Demolition of the existing dwelling and subdivision into two smaller allotments that would be 'side by side' at about 400 square metres each in area with a 10 metre frontage,
3. Retain the existing dwelling on the front of the site, with subdivision enabling a new rear site to be created behind the dwelling.
Contact us today to arrange an inspection.
Disclaimer:
Whilst every care has been taken to verify the accuracy of the details in this advertisement, For Sale By Owner (forsalebyowner.com.au Pty Ltd) cannot guarantee its correctness. Prospective buyers or tenants need to take such action as is necessary, to satisfy themselves of any pertinent matters.
Need a Home Loan?
Get pre-approved for a home loan within 48 hours. Click Here or more information.
- Last 24 Hours0
- Last 7 Days1
- Last 30 Days3
Views
Contact the Owner
Phone or Text: 0488 847 018
Enter Phone Code:
Enter Phone Code:
"*" indicates required fields