22/502 Ross Lane, Lennox Head, NSW 2478
Sold Price Not Disclosed (31 Jul 2015)
BRIGHT, SUNNY, SECLUDED COTTAGE in beautiful Lennox Head, the gem of the North Coast
This bright, sunny secluded cottage, is set well back from the road. The rear garden is truly low maintenance with someone on hand to mow the lawn!! The rest is deeply mulched.
Sanctuary Village is not a retirement village, it is a way of life! Within the village there are, for the use of residents: a community hall, two swimming pools, tennis court, games room (pool table) & gym equipment, table tennis, yoga and art & craft mornings.
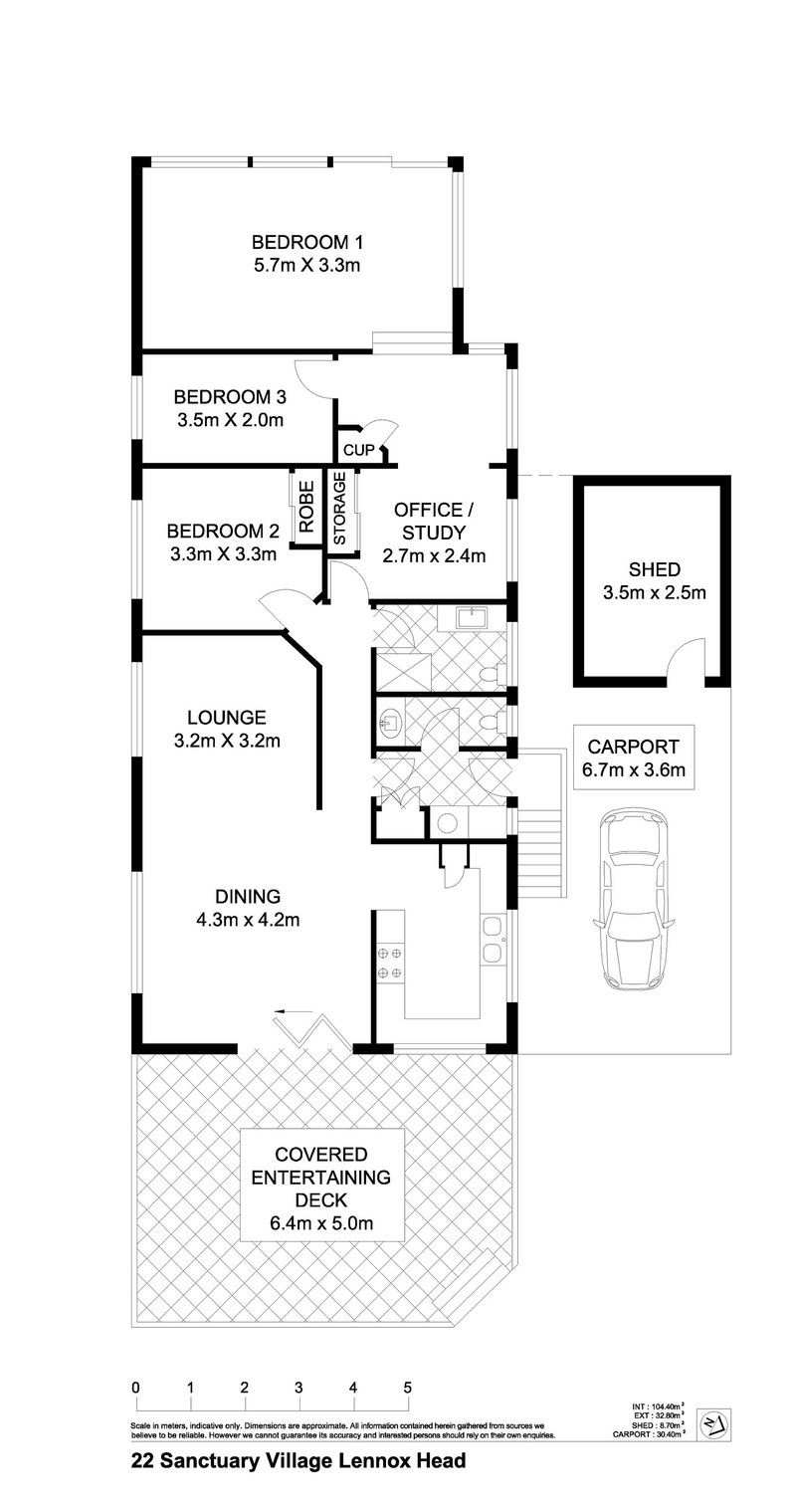
The cottage features:
* Master bedroom with triple aspect windows overlooking garden and paddocks beyond. Gas heater jack. TV outlet. External window shades.
* Second double bedroom has large window with pleasant outlook. TV outlet. Overhead fan.
* Third single bedroom also has pleasant outlook.
* Spacious lounge & dining area. Air con unit. Gas heater jack. TV outlet.
* Dining area leads thru bi-fold doors to large covered verandah: 6.5 x 5.0 metres.
* The bathroom has feature wall & shower tiles, English oak vanity.
* Laundry includes the front loading washing machine with oak top, large broom cupboard. Second guest toilet/washroom off the laundry.
* Country-style kitchen includes dishwasher, fridge & freezer, cooker.
* Office area.
* Craft/sewing area includes spacious linen/store cupboard with deep shelves.
* Carport and driveway.
* Powered garden shed 3.5 x 2.5 mtrs.
* Gas hot water & heating.
* Roof has eight solar panels & fully insulated minimising electricity costs.
* Two big fitted wardrobes with sliding doors.
* All areas not fitted with carpet have new laminate flooring.
The ground rent is $139 per week, which is subsidised for those eligible for rent assistance. There are no rates to pay, no strata fees and no stamp duty!! As an investment this property could realise a rent between $400 - $450 per week. There is an abundance of Australian birds and wildlife due to the fact that no cats or dogs are allowed in the village.
All household/recycling/garden refuse disposal is included in rent, along with amenities.
Lake Ainsworth, Seven Mile Beach, local shops, post office, great eateries along with the new library are a mere 2 to 3 kms away. For major shopping and the airport Ballina is a fifteen minute drive along the coast road, and the Gold Coast an hour away.
Disclaimer:
Whilst every care has been taken to verify the accuracy of the details in this advertisement, For Sale By Owner (forsalebyowner.com.au Pty Ltd) cannot guarantee its correctness. Prospective buyers or tenants need to take such action as is necessary, to satisfy themselves of any pertinent matters.
Sanctuary Village is not a retirement village, it is a way of life! Within the village there are, for the use of residents: a community hall, two swimming pools, tennis court, games room (pool table) & gym equipment, table tennis, yoga and art & craft mornings.
The cottage features:
* Master bedroom with triple aspect windows overlooking garden and paddocks beyond. Gas heater jack. TV outlet. External window shades.
* Second double bedroom has large window with pleasant outlook. TV outlet. Overhead fan.
* Third single bedroom also has pleasant outlook.
* Spacious lounge & dining area. Air con unit. Gas heater jack. TV outlet.
* Dining area leads thru bi-fold doors to large covered verandah: 6.5 x 5.0 metres.
* The bathroom has feature wall & shower tiles, English oak vanity.
* Laundry includes the front loading washing machine with oak top, large broom cupboard. Second guest toilet/washroom off the laundry.
* Country-style kitchen includes dishwasher, fridge & freezer, cooker.
* Office area.
* Craft/sewing area includes spacious linen/store cupboard with deep shelves.
* Carport and driveway.
* Powered garden shed 3.5 x 2.5 mtrs.
* Gas hot water & heating.
* Roof has eight solar panels & fully insulated minimising electricity costs.
* Two big fitted wardrobes with sliding doors.
* All areas not fitted with carpet have new laminate flooring.
The ground rent is $139 per week, which is subsidised for those eligible for rent assistance. There are no rates to pay, no strata fees and no stamp duty!! As an investment this property could realise a rent between $400 - $450 per week. There is an abundance of Australian birds and wildlife due to the fact that no cats or dogs are allowed in the village.
All household/recycling/garden refuse disposal is included in rent, along with amenities.
Lake Ainsworth, Seven Mile Beach, local shops, post office, great eateries along with the new library are a mere 2 to 3 kms away. For major shopping and the airport Ballina is a fifteen minute drive along the coast road, and the Gold Coast an hour away.
Disclaimer:
Whilst every care has been taken to verify the accuracy of the details in this advertisement, For Sale By Owner (forsalebyowner.com.au Pty Ltd) cannot guarantee its correctness. Prospective buyers or tenants need to take such action as is necessary, to satisfy themselves of any pertinent matters.
Features
Air Conditioning, Built-ins, Dishwasher, Gas Enabled, Heating, Internal Laundry, Modern Bathroom, Modern Kitchen, Renovated, Renovated Bathroom, Renovated Kitchen, Study, Balcony, Entertainment Area, Garden, Garden Shed, Gym, Level Lawn, Solar Panels, Swimming/Lap Pool, Tennis Court, Near Waterfront, Quiet Location, Views, Beach/Coastal Property, Nature Property
Need a Home Loan?
Get pre-approved for a home loan within 48 hours. Click Here or more information.
- Last 24 Hours0
- Last 7 Days1
- Last 30 Days5
Views
Contact the Owner
Phone or Text: 0488 847 018
Enter Phone Code:
Enter Phone Code:
"*" indicates required fields