9 Yarrawonga Drive, Castle Hill, QLD 4810
Sold Price Not Disclosed (01 Aug 2025)
Large family home - fabulous ocean views and separate Apartment
The Phone Code for this property is: 53978. Please quote this number when phoning or texting.
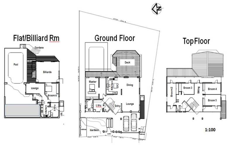
This is a large air-conditioned family home with 5 large bedrooms plus a one bedroom self-contained granny flat, including kitchen and lounge/dining. Fabulous ocean views are enjoyed from the expansive deck facing Cleveland Bay, Castle Hill and the Port of Townsville.
The large master bedroom is on street level with a modern ensuite and large walk-in robe as well as two large wardrobes. The living area overlooks the deck and enjoys views to the City, Castle Hill and Cape Cleveland. The kitchen is equipped with stainless steel appliances and granite bench tops and enjoys the view from the servery to the deck.
There are four generous bedrooms on the second level from street, all with built-in robes and a fully renovated bathroom and separate sitting room.
On the lower level is a one bedroom fully air-conditioned granny flat with a modern kitchen and bathroom. The flat can be accessed via the rear stairs or via the lift on the side of the house. The pool and pool deck are this lower level with access to the large pool, billiards/rumpus room and adjacent verandah.
This property will be open for inspection by appointment.
Disclaimer:
Whilst every care has been taken to verify the accuracy of the details in this advertisement, For Sale By Owner (forsalebyowner.com.au Pty Ltd) cannot guarantee its correctness. Prospective buyers or tenants need to take such action as is necessary, to satisfy themselves of any pertinent matters.
This is a large air-conditioned family home with 5 large bedrooms plus a one bedroom self-contained granny flat, including kitchen and lounge/dining. Fabulous ocean views are enjoyed from the expansive deck facing Cleveland Bay, Castle Hill and the Port of Townsville.
The large master bedroom is on street level with a modern ensuite and large walk-in robe as well as two large wardrobes. The living area overlooks the deck and enjoys views to the City, Castle Hill and Cape Cleveland. The kitchen is equipped with stainless steel appliances and granite bench tops and enjoys the view from the servery to the deck.
There are four generous bedrooms on the second level from street, all with built-in robes and a fully renovated bathroom and separate sitting room.
On the lower level is a one bedroom fully air-conditioned granny flat with a modern kitchen and bathroom. The flat can be accessed via the rear stairs or via the lift on the side of the house. The pool and pool deck are this lower level with access to the large pool, billiards/rumpus room and adjacent verandah.
This property will be open for inspection by appointment.
Disclaimer:
Whilst every care has been taken to verify the accuracy of the details in this advertisement, For Sale By Owner (forsalebyowner.com.au Pty Ltd) cannot guarantee its correctness. Prospective buyers or tenants need to take such action as is necessary, to satisfy themselves of any pertinent matters.
Features
Balcony/Patio/Terrace, Bath, Lift, Renovated, Entertainment Area, Garden, Security Lights, Close to Schools, Close to Shops, Views, Air Conditioning, Built-ins, Ensuite, Gas Enabled, Internal Laundry, Pay TV Enabled, Swimming/Lap Pool, Remote Garage, Broadband, Dishwasher, Balcony, Solar Panels, Solar Hot Water, Deck, Fully Fenced
Need a Home Loan?
Get pre-approved for a home loan within 48 hours. Click Here or more information.
- Last 24 Hours0
- Last 7 Days3
- Last 30 Days12
Views
Contact the Owner
Phone or Text: 0488 847 018
Enter Phone Code 53978 when prompted.
Enter Phone Code 53978 when prompted.
"*" indicates required fields