48 Hounslow Avenue, Torrensville, SA 5031
Sold Price: 600,000 (29 Jul 2015)
Stunning Character Villa between the City and the Sea
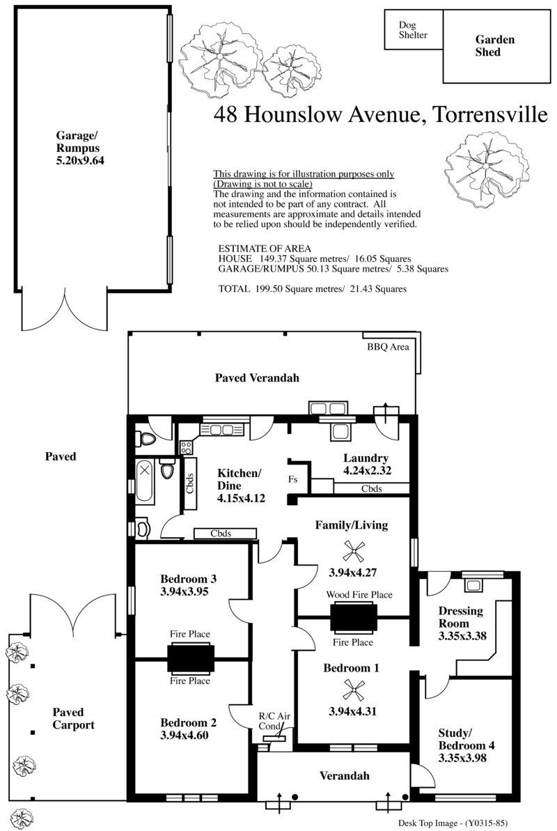
This large character villa, built in 1900, is immaculately presented and full of warmth and charm. It is a solid home that retains many of its original features, including period lighting, high (12ft) ornate ceilings, decorative open fireplaces and polished timber floorboards. Recently rewired, re-roofed and insulated, the home opens to a grand hallway with an airconditioner/heater. Offering 3 or 4 generous bedrooms; the master bedroom includes a new ceiling fan, and is adjacent to a large, light filled dressing room with a huge open closet, dressing table, hand basin and direct access to the gorgeous rear yard; bedrooms 2 and 3 are very large and retain many of their character features; bedroom 4 is currently disposed of as a study and would make a perfect home office, as it has a separate entrance, or a nursery as it is close to the master suite.
The open plan living area is bathed in morning sunshine, and includes a new ceiling fan and enormous, super efficient slow combustion fireplace. It is connected to the large retro dine-in kitchen, which has colour, charm and great storage. The kitchen contains a gas oven and cook top, and the hot water system is a continuous flow gas unit. The newly renovated bathroom is extremely impressive and includes floor to ceiling tiles, along with quality fixtures and fittings. There is a large laundry with exceptional storage and direct access to the north facing rear yard.
This yard is extremely secure and well suited to children and pets. It includes a lovely undercover entertaining area with a BBQ bar that overlooks the lawn area and numerous fruit trees and herb gardens. The olive tree produces an enormous crop each year - absolutely delicious. Other edibles include lemons, mandarins, oranges, grapes, passionfruit and peaches. There is a garden shed with a concrete floor at the rear of the low maintenance garden. A second toilet is accessed at the rear of the house.
One of the highlights of this property is the large, extra tall colourbond shed with dual access and huge, traditionally styled wooden barn doors. It is the perfect workshop/garage with concrete floors, lighting, power and safety switches. It has been partly insulated and clad on the interior, and could be transformed into an awesome rumpus room. This shed, in addition to the long driveway and carport, houses four vehicles.
This gorgeous home is situated on a wide, tree-lined street within close proximity to numerous schools, daycares, parks, cafes, restaurants, supermarkets and a well-resourced library. The neighbours are excellent, and the suburb of Torrensville is a highly desirable place to live, being 4 km from the city and 10 minutes drive to the beach. Inspect at scheduled times or by appointment.
Disclaimer:
Whilst every care has been taken to verify the accuracy of the details in this advertisement, For Sale By Owner (forsalebyowner.com.au Pty Ltd) cannot guarantee its correctness. Prospective buyers or tenants need to take such action as is necessary, to satisfy themselves of any pertinent matters.
The open plan living area is bathed in morning sunshine, and includes a new ceiling fan and enormous, super efficient slow combustion fireplace. It is connected to the large retro dine-in kitchen, which has colour, charm and great storage. The kitchen contains a gas oven and cook top, and the hot water system is a continuous flow gas unit. The newly renovated bathroom is extremely impressive and includes floor to ceiling tiles, along with quality fixtures and fittings. There is a large laundry with exceptional storage and direct access to the north facing rear yard.
This yard is extremely secure and well suited to children and pets. It includes a lovely undercover entertaining area with a BBQ bar that overlooks the lawn area and numerous fruit trees and herb gardens. The olive tree produces an enormous crop each year - absolutely delicious. Other edibles include lemons, mandarins, oranges, grapes, passionfruit and peaches. There is a garden shed with a concrete floor at the rear of the low maintenance garden. A second toilet is accessed at the rear of the house.
One of the highlights of this property is the large, extra tall colourbond shed with dual access and huge, traditionally styled wooden barn doors. It is the perfect workshop/garage with concrete floors, lighting, power and safety switches. It has been partly insulated and clad on the interior, and could be transformed into an awesome rumpus room. This shed, in addition to the long driveway and carport, houses four vehicles.
This gorgeous home is situated on a wide, tree-lined street within close proximity to numerous schools, daycares, parks, cafes, restaurants, supermarkets and a well-resourced library. The neighbours are excellent, and the suburb of Torrensville is a highly desirable place to live, being 4 km from the city and 10 minutes drive to the beach. Inspect at scheduled times or by appointment.
Disclaimer:
Whilst every care has been taken to verify the accuracy of the details in this advertisement, For Sale By Owner (forsalebyowner.com.au Pty Ltd) cannot guarantee its correctness. Prospective buyers or tenants need to take such action as is necessary, to satisfy themselves of any pertinent matters.
Features
Air Conditioning, Bath, Broadband, Built-ins, Fireplace(s), Gas Enabled, Heating, BBQ, Entertainment Area, Garden, Garden Shed, Level Lawn, Pet Friendly, Secure Parking, Storage Area, Workshop, Close to Parklands, Close to Schools, Close to Shops, Close to Transport
Contact Karen on 0438 838 018 at First Paige Property Settlement Services for help with your Real Estate paperwork (Form 1 & Contracts) or email if you have questions. admin@firstpaigeform1.com
Visit WebsiteNeed a Home Loan?
Get pre-approved for a home loan within 48 hours. Click Here or more information.
- Last 24 Hours0
- Last 7 Days1
- Last 30 Days5
Views
Contact the Owner
Phone or Text: 0488 847 018
Enter Phone Code:
Enter Phone Code:
"*" indicates required fields
