255 Benbournie Road, Clare, SA 5453
Sold Price Not Disclosed (15 Jun 2015)
It's all about Lifestyle!
Situated in the sought after area of Armagh in the Clare Valley, this fully renovated 4 bedroom home is all you need for space, tranquility and comfort.
Set on 25 acres of land, there is plenty of space for peace & quiet, but close enough to schools, shopping and wineries.
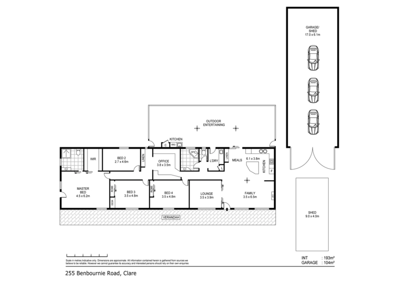
As you arrive, you are greeted by the all weather outdoor entertaining area featuring an outdoor kitchen with hot & cold running water and outdoor fire place, a fantastic space for entertaining in the winter months.
The large modern kitchen has everything you need & features solid Tasmanian Oak & Jarrah bench tops, huge pantry storage, F/S gas cooker and huge Island unit.
This adjoins the open living/dining area complete with large fan forced combustion heater.
The separate TV/Lounge has sliding glass doors for added privacy.
Moving down the hallway you will find the laundry and master bathroom, laundry with ample storage and outdoor access. The main bathroom features a large corner bath with shower above & separate wc.
Bedrooms 2 & 3 are spacious in size with built in robes and desks, perfect for children's study area.
With a dedicated office with floor to ceiling built in shelving and storage, this room is large enough for any home office.
There is ample linen storage in the hallway moving through to the master bedroom.
The master bedroom is a parents retreat featuring cedar french doors overlooking the Clare Valley with large WI robe and ensuite.
The property has a large workshop/garage and stables for the horse enthusiast.
With 20000 litres of rainwater and room for more water storage if required and a spring fed dam.
This property is too good to pass up!
Inspection by appointment only. Call Today!
Disclaimer:
Whilst every care has been taken to verify the accuracy of the details in this advertisement, For Sale By Owner (forsalebyowner.com.au Pty Ltd) cannot guarantee its correctness. Prospective buyers or tenants need to take such action as is necessary, to satisfy themselves of any pertinent matters.
Set on 25 acres of land, there is plenty of space for peace & quiet, but close enough to schools, shopping and wineries.
As you arrive, you are greeted by the all weather outdoor entertaining area featuring an outdoor kitchen with hot & cold running water and outdoor fire place, a fantastic space for entertaining in the winter months.
The large modern kitchen has everything you need & features solid Tasmanian Oak & Jarrah bench tops, huge pantry storage, F/S gas cooker and huge Island unit.
This adjoins the open living/dining area complete with large fan forced combustion heater.
The separate TV/Lounge has sliding glass doors for added privacy.
Moving down the hallway you will find the laundry and master bathroom, laundry with ample storage and outdoor access. The main bathroom features a large corner bath with shower above & separate wc.
Bedrooms 2 & 3 are spacious in size with built in robes and desks, perfect for children's study area.
With a dedicated office with floor to ceiling built in shelving and storage, this room is large enough for any home office.
There is ample linen storage in the hallway moving through to the master bedroom.
The master bedroom is a parents retreat featuring cedar french doors overlooking the Clare Valley with large WI robe and ensuite.
The property has a large workshop/garage and stables for the horse enthusiast.
With 20000 litres of rainwater and room for more water storage if required and a spring fed dam.
This property is too good to pass up!
Inspection by appointment only. Call Today!
Disclaimer:
Whilst every care has been taken to verify the accuracy of the details in this advertisement, For Sale By Owner (forsalebyowner.com.au Pty Ltd) cannot guarantee its correctness. Prospective buyers or tenants need to take such action as is necessary, to satisfy themselves of any pertinent matters.
Features
Air Conditioning, Bath, Built-ins, Dishwasher, Fireplace(s), Formal Lounge, Gas Enabled, Modern Bathroom, Modern Kitchen, Study, BBQ, Entertainment Area, Garden, Level Lawn, Rainwater Tank, Shower Facilities, Solar Hot Water, Workshop, Close to Schools, Close to Shops, Quiet Location, Views, Nature Property
Contact Karen on 0438 838 018 at First Paige Property Settlement Services for help with your Real Estate paperwork (Form 1 & Contracts) or email if you have questions. admin@firstpaigeform1.com
Visit WebsiteNeed a Home Loan?
Get pre-approved for a home loan within 48 hours. Click Here or more information.
- Last 24 Hours0
- Last 7 Days1
- Last 30 Days2
Views
Contact the Owner
Phone or Text: 0488 847 018
Enter Phone Code:
Enter Phone Code:
"*" indicates required fields
