333 Avenue Range Road, Reedy Creek, SA 5275
Sold Price Not Disclosed (09 Dec 2016)
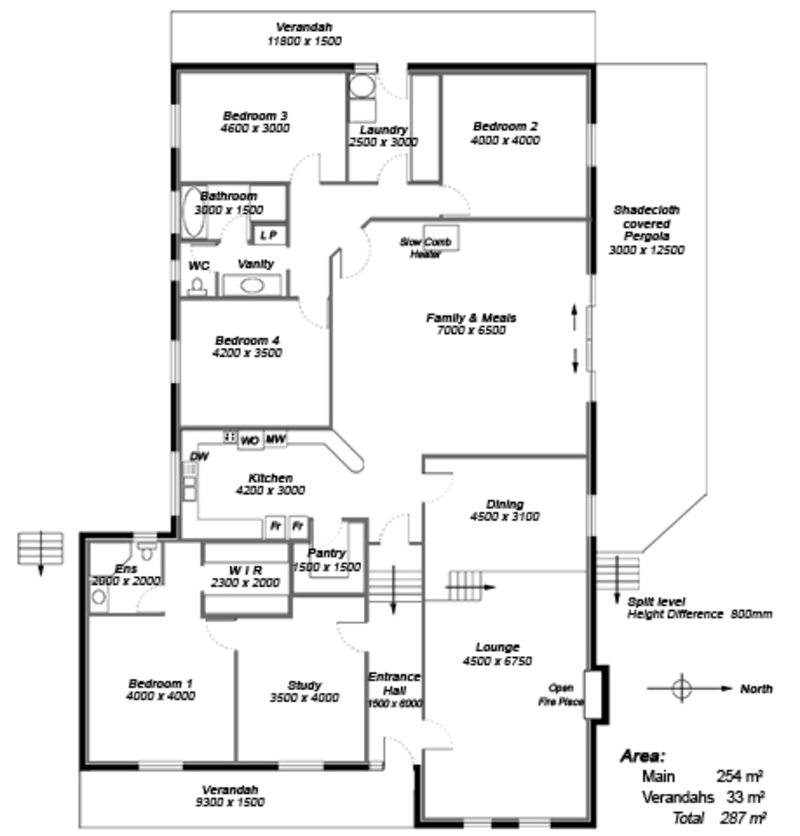
An Outstanding Home set in a Beautiful Tranquil Location
This spacious quality home has been built on a 20-acre property 23Km from Kingston.
The property itself has been split into four paddocks with the house, gardens and shrubs occupying one. Quality water from a bore is automatically supplied to all paddocks.
The House is a split-level, well-insulated Australian Colonial style home with front and rear verandas and large shade cloth covered pergola on the northern side. The major features are-
• High ceilings: 2700mm in upper rooms, 3500mm in lower rooms.
• 4 Bedrooms with large walk-in robe attached to Main Bedroom
• Large Study
• 2 Bathrooms
• Solid Jarrah Kitchen cupboards & a large walk-in Pantry
• Large family/entertainment/meals area with high-output slow combustion heater
• Dining Room & Lounge with ceiling roses, decorative cornice and an open fire-place
• Laundry has floor-to-ceiling built-in storage cupboards
• High timber skirting boards, solid doors, quality drapes and pelmets throughout the house
• Slate is used in high traffic areas; wet areas have ceramic tiles, with carpets in the remainder.
The house runs totally off 11,000 gallons of stored rainwater from three tanks.
House paddock Grounds:
• 18m x 6m x 2.7m insulated colour-bond shed with workbench, cupboards and shelving
• 3m x 3m x 1.8m colour-bond wood-shed/garden-shed.
• Paving surrounds the house with concrete paths to sheds
• Extensive lawns surround house and are bordered by many established fruit trees, deciduous and native trees and shrubs. These are all automatically watered from the bore.
Vineyard: (watered automatically)
• 2 acres planted to Cabernet Sauvignon in 1994
• 2 acres developed in 1999 with some planted to Cabernet Sauvignon; the remainder left bare.
Vines will be removed if the purchaser wishes to use the area for another purpose.
Remainder of Property:
• Approx 1.5 acres planted with Sydney Blue gums
• Small outcrop of mallee in vineyard paddock
• Residue has some trees but used for grazing
• Two areas planted with fruit trees and automatically watered.
• 9m x 6m x 2.7m zincalume implement shed
This property must be seen to be fully appreciated.
Disclaimer:
Whilst every care has been taken to verify the accuracy of the details in this advertisement, For Sale By Owner (forsalebyowner.com.au Pty Ltd) cannot guarantee its correctness. Prospective buyers or tenants need to take such action as is necessary, to satisfy themselves of any pertinent matters.
The property itself has been split into four paddocks with the house, gardens and shrubs occupying one. Quality water from a bore is automatically supplied to all paddocks.
The House is a split-level, well-insulated Australian Colonial style home with front and rear verandas and large shade cloth covered pergola on the northern side. The major features are-
• High ceilings: 2700mm in upper rooms, 3500mm in lower rooms.
• 4 Bedrooms with large walk-in robe attached to Main Bedroom
• Large Study
• 2 Bathrooms
• Solid Jarrah Kitchen cupboards & a large walk-in Pantry
• Large family/entertainment/meals area with high-output slow combustion heater
• Dining Room & Lounge with ceiling roses, decorative cornice and an open fire-place
• Laundry has floor-to-ceiling built-in storage cupboards
• High timber skirting boards, solid doors, quality drapes and pelmets throughout the house
• Slate is used in high traffic areas; wet areas have ceramic tiles, with carpets in the remainder.
The house runs totally off 11,000 gallons of stored rainwater from three tanks.
House paddock Grounds:
• 18m x 6m x 2.7m insulated colour-bond shed with workbench, cupboards and shelving
• 3m x 3m x 1.8m colour-bond wood-shed/garden-shed.
• Paving surrounds the house with concrete paths to sheds
• Extensive lawns surround house and are bordered by many established fruit trees, deciduous and native trees and shrubs. These are all automatically watered from the bore.
Vineyard: (watered automatically)
• 2 acres planted to Cabernet Sauvignon in 1994
• 2 acres developed in 1999 with some planted to Cabernet Sauvignon; the remainder left bare.
Vines will be removed if the purchaser wishes to use the area for another purpose.
Remainder of Property:
• Approx 1.5 acres planted with Sydney Blue gums
• Small outcrop of mallee in vineyard paddock
• Residue has some trees but used for grazing
• Two areas planted with fruit trees and automatically watered.
• 9m x 6m x 2.7m zincalume implement shed
This property must be seen to be fully appreciated.
Disclaimer:
Whilst every care has been taken to verify the accuracy of the details in this advertisement, For Sale By Owner (forsalebyowner.com.au Pty Ltd) cannot guarantee its correctness. Prospective buyers or tenants need to take such action as is necessary, to satisfy themselves of any pertinent matters.
Features
Balcony/Patio/Terrace, Bath, Built-ins, Dishwasher, Fireplace(s), Formal Lounge, Heating, Internal Laundry, Balcony, Entertainment Area, Garden, Garden Shed, Level Lawn, Rainwater Tank, Secure Parking, Storage Area, Workshop, Quiet Location, Views, Nature Property, Ensuite, Pet Friendly
Contact Karen on 0438 838 018 at First Paige Property Settlement Services for help with your Real Estate paperwork (Form 1 & Contracts) or email if you have questions. admin@firstpaigeform1.com
Visit WebsiteNeed a Home Loan?
Get pre-approved for a home loan within 48 hours. Click Here or more information.
- Last 24 Hours0
- Last 7 Days0
- Last 30 Days0
Views
Contact the Owner
Phone or Text: 0488 847 018
Enter Phone Code:
Enter Phone Code:
"*" indicates required fields
