6 Sturt Place, Mount Compass, SA 5210
Sold Price: 410,000 (10 Sep 2014)
Spacious well equiped Family home
Beat those Electricity Bills a whopping 5kw 21 Rec panels with Sunnyboy inverter with a feed in tariff of 53cents till 2028.
This spacious and much loved property is nestled in the fleurieu golf course estate amongst other quality homes.
It is positioned in a private cul-de-sac location and is set on a generous 906m2 allotment. .
Boasting an attractive street appeal with the combination of established and well maintained front gardens and a sandstone facade backdrop.
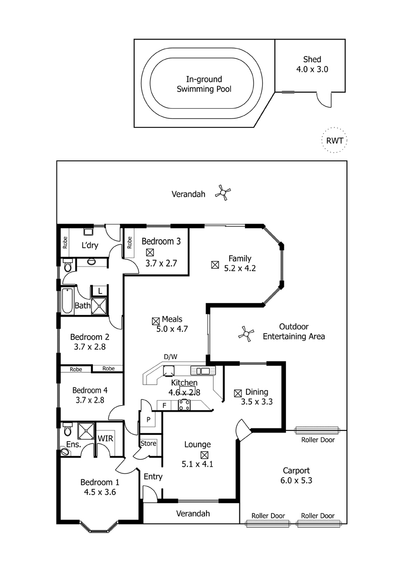
The entry gives access through to the front formal lounge and the adjacent dining room, the timber kitchen is centrally located and comes complete with double sink, water filter and walk-in pantry. The kitchen overlooks the large open plan family room and/or casual meal area that flows through to the rumpus/games room or additional living space at the rear of the home giving a great outlook to the back yard and outdoor entertaining area.
There are 4 good sized bedrooms on offer, the large main is positioned at the front of the home and has own ensuite and walk-in robe. All other bedrooms are fitted with built-in robes and have easy access to the popular 3 way design main bathroom. The laundry is at the rear and gives access to the rear yard.
Additional features include ducted reverse cycle air conditioning and quality floor coverings throughout. There is an electric hot water system, and the home if fully insulated with the added bonus of a 5kw (21 panel) solar panel system to help eliminate all those power bills.
Outside improvements include a large all weather pergola that wraps around the side and rear of the home, it comes with fitted cafe blinds and is the ideal spot to entertain all year rouind with family and/or friends. There is a double garage that offers secure internal entry and is fitted with dual automatic roller doors. The rear yard offers an in-ground swimming pool and a garden/storage shed with still loads of room for kids and or pets to play on the lawn.
Disclaimer:
Whilst every care has been taken to verify the accuracy of the details in this advertisement, For Sale By Owner (forsalebyowner.com.au Pty Ltd) cannot guarantee its correctness. Prospective buyers or tenants need to take such action as is necessary, to satisfy themselves of any pertinent matters.
This spacious and much loved property is nestled in the fleurieu golf course estate amongst other quality homes.
It is positioned in a private cul-de-sac location and is set on a generous 906m2 allotment. .
Boasting an attractive street appeal with the combination of established and well maintained front gardens and a sandstone facade backdrop.
The entry gives access through to the front formal lounge and the adjacent dining room, the timber kitchen is centrally located and comes complete with double sink, water filter and walk-in pantry. The kitchen overlooks the large open plan family room and/or casual meal area that flows through to the rumpus/games room or additional living space at the rear of the home giving a great outlook to the back yard and outdoor entertaining area.
There are 4 good sized bedrooms on offer, the large main is positioned at the front of the home and has own ensuite and walk-in robe. All other bedrooms are fitted with built-in robes and have easy access to the popular 3 way design main bathroom. The laundry is at the rear and gives access to the rear yard.
Additional features include ducted reverse cycle air conditioning and quality floor coverings throughout. There is an electric hot water system, and the home if fully insulated with the added bonus of a 5kw (21 panel) solar panel system to help eliminate all those power bills.
Outside improvements include a large all weather pergola that wraps around the side and rear of the home, it comes with fitted cafe blinds and is the ideal spot to entertain all year rouind with family and/or friends. There is a double garage that offers secure internal entry and is fitted with dual automatic roller doors. The rear yard offers an in-ground swimming pool and a garden/storage shed with still loads of room for kids and or pets to play on the lawn.
Disclaimer:
Whilst every care has been taken to verify the accuracy of the details in this advertisement, For Sale By Owner (forsalebyowner.com.au Pty Ltd) cannot guarantee its correctness. Prospective buyers or tenants need to take such action as is necessary, to satisfy themselves of any pertinent matters.
Features
Air Conditioning, Broadband, Built-ins, Dishwasher, Ensuite, Formal Lounge, Pay TV Enabled, Remote Garage, Study, Entertainment Area, Garden, Garden Shed, Level Lawn, Pet Friendly, Rainwater Tank, Secure Parking, Solar Panels, Swimming/Lap Pool, Close to Parklands, Close to Schools, Close to Shops, Close to Transport, Quiet Location
Contact Karen on 0438 838 018 at First Paige Property Settlement Services for help with your Real Estate paperwork (Form 1 & Contracts) or email if you have questions. admin@firstpaigeform1.com
Visit WebsiteNeed a Home Loan?
Get pre-approved for a home loan within 48 hours. Click Here or more information.
- Last 24 Hours0
- Last 7 Days0
- Last 30 Days0
Views
Contact the Owner
Phone or Text: 0488 847 018
Enter Phone Code when prompted.
Enter Phone Code when prompted.
"*" indicates required fields
