7 Barunga Street, Yankalilla, SA 5203
Sold Price: 412,500 (17 Feb 2014)
Location & Lifestyle
Just a few minutes' walk from Yankalilla town centre, this modern, light and airy family home enjoys a pleasant outlook over the township with views from every window.
Just 3 years old, it is well positioned at the end of a no thru road with open paddocks to the rear and an abundance of wildlife. A beautiful spot to live.
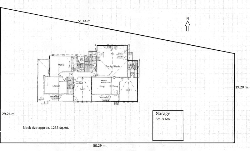
Featuring high ceilings, solar hot water, ducted evaporative a/c and gas heating the homes adaptable floor plan comprises a formal lounge and a large modern kitchen/dining/family room featuring a 5 burner gas hob/electric oven, a corner pantry, centre island and lots of cupboards, deep drawers and work space.
There are 4 large bedrooms. The master has a walk thru wardrobe with en-suite bathroom. Bedroom 2 also has an en-suite bathroom. There is a large 2 - way family bathroom with a luxury spa. The family bathroom can also be directly accessed from bedroom 3.
All the bedrooms boast their own private entrances.
There is an additional toilet located off the generous laundry
room.
To the rear there is a private decked entertainment area and the large gently sloping allotment features terracing, paving and an easy care garden. The 6mx6m shed has power connected.
There are 2 driveways with ample space for cars, caravan, boats etc.
The home also has local council approval for use as a B&B.
Offering oodles of space on this 1235 m2 approx. allotment, you will fall in love with this beautiful home the moment you arrive.
Disclaimer:
Whilst every care has been taken to verify the accuracy of the details in this advertisement, For Sale By Owner (forsalebyowner.com.au Pty Ltd) cannot guarantee its correctness. Prospective buyers or tenants need to take such action as is necessary, to satisfy themselves of any pertinent matters.
Just 3 years old, it is well positioned at the end of a no thru road with open paddocks to the rear and an abundance of wildlife. A beautiful spot to live.
Featuring high ceilings, solar hot water, ducted evaporative a/c and gas heating the homes adaptable floor plan comprises a formal lounge and a large modern kitchen/dining/family room featuring a 5 burner gas hob/electric oven, a corner pantry, centre island and lots of cupboards, deep drawers and work space.
There are 4 large bedrooms. The master has a walk thru wardrobe with en-suite bathroom. Bedroom 2 also has an en-suite bathroom. There is a large 2 - way family bathroom with a luxury spa. The family bathroom can also be directly accessed from bedroom 3.
All the bedrooms boast their own private entrances.
There is an additional toilet located off the generous laundry
room.
To the rear there is a private decked entertainment area and the large gently sloping allotment features terracing, paving and an easy care garden. The 6mx6m shed has power connected.
There are 2 driveways with ample space for cars, caravan, boats etc.
The home also has local council approval for use as a B&B.
Offering oodles of space on this 1235 m2 approx. allotment, you will fall in love with this beautiful home the moment you arrive.
Disclaimer:
Whilst every care has been taken to verify the accuracy of the details in this advertisement, For Sale By Owner (forsalebyowner.com.au Pty Ltd) cannot guarantee its correctness. Prospective buyers or tenants need to take such action as is necessary, to satisfy themselves of any pertinent matters.
Features
Bath, Formal Lounge, Heating, Modern Bathroom, Modern Kitchen, Entertainment Area, Garden, Garden Shed, Rainwater Tank, Close to Parklands, Close to Schools, Close to Shops, Quiet Location, Views, Air Conditioning, Ensuite, Internal Laundry, Dishwasher, Workshop, Solar Hot Water, Inside Spa
Contact Karen on 0438 838 018 at First Paige Property Settlement Services for help with your Real Estate paperwork (Form 1 & Contracts) or email if you have questions. admin@firstpaigeform1.com
Visit WebsiteNeed a Home Loan?
Get pre-approved for a home loan within 48 hours. Click Here or more information.
- Last 24 Hours0
- Last 7 Days1
- Last 30 Days2
Views
Contact the Owner
Phone or Text: 0488 847 018
Enter Phone Code:
Enter Phone Code:
"*" indicates required fields
