29 Mein Street, Spring Hill, QLD 4000
Price: $55,000 - $60,500
Flexible Executive Office with residential living options in prime Inner-City Location
The Phone Code for this property is: 19218. Please quote this number when phoning or texting.
Unique freestanding office space with live-in residential flexibility, ideally suited to professionals who want to work from home or firms such as legal, financial, consultancy or executive service providers. This exceptional property offers a refined environment with exceptional flexibility and a short 3min walk to the CBD. Flexible Short- or long-term leases available.
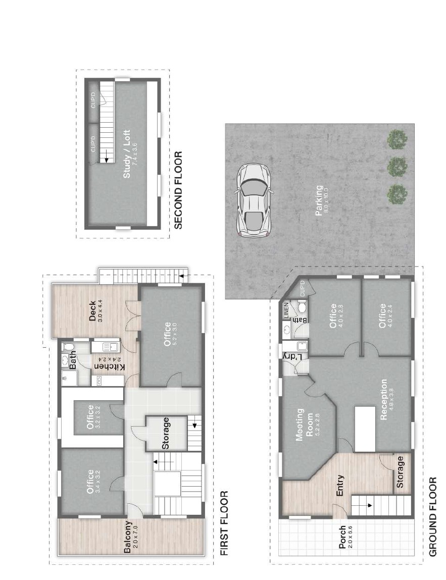
Nestled in a quiet mixed use zoning street just a short stroll from the Brisbane CBD and key public facilities, the property combines prime positioning with tranquillity. Renovated throughout, this classic Queenslander seamlessly blends timeless character with modern business functionality, creating a work & living place of distinction.
The well-considered 240sqm across 3 floors layout provides an efficient yet comfortable working & living environment and includes:
- Welcoming reception or waiting area
• Boardroom ideal for client meetings
• CEO's office with private amenities
• Utilities or server room with data capacity
• Library or additional professional office
• Main kitchen and bathroom with shower
• Front and rear first-floor balconies providing fresh air and outlook
• Secure 4-5 on-site car parks at the rear
• Security system ensuring peace of mind
Disclaimer:
Whilst every care has been taken to verify the accuracy of the details in this advertisement, For Sale By Owner Pty Ltd (forsalebyowner.com.au) cannot guarantee its correctness. Prospective buyers or tenants need to take such action as is necessary, to satisfy themselves of any pertinent matters.
Unique freestanding office space with live-in residential flexibility, ideally suited to professionals who want to work from home or firms such as legal, financial, consultancy or executive service providers. This exceptional property offers a refined environment with exceptional flexibility and a short 3min walk to the CBD. Flexible Short- or long-term leases available.
Nestled in a quiet mixed use zoning street just a short stroll from the Brisbane CBD and key public facilities, the property combines prime positioning with tranquillity. Renovated throughout, this classic Queenslander seamlessly blends timeless character with modern business functionality, creating a work & living place of distinction.
The well-considered 240sqm across 3 floors layout provides an efficient yet comfortable working & living environment and includes:
- Welcoming reception or waiting area
• Boardroom ideal for client meetings
• CEO's office with private amenities
• Utilities or server room with data capacity
• Library or additional professional office
• Main kitchen and bathroom with shower
• Front and rear first-floor balconies providing fresh air and outlook
• Secure 4-5 on-site car parks at the rear
• Security system ensuring peace of mind
Disclaimer:
Whilst every care has been taken to verify the accuracy of the details in this advertisement, For Sale By Owner Pty Ltd (forsalebyowner.com.au) cannot guarantee its correctness. Prospective buyers or tenants need to take such action as is necessary, to satisfy themselves of any pertinent matters.
- Last 24 Hours0
- Last 7 Days1
- Last 30 Days14
Views
Contact the Owner
Phone or Text: 0488 847 018
Enter Phone Code: 19218
Enter Phone Code: 19218
"*" indicates required fields