37 Blair Athol Road, Inverell, NSW 2360
Price: P.O.A.
- There are no current opens scheduled.
Open Times
Blair Athol Estate Invites You To Indulge, Entertain Or Invest In One Of Inverell's Most Iconic Addresses
Blair Athol Homestead - A Rare Opportunity with Endless Possibilities...
At Blair Athol Homestead, Inverell, you're not just buying a home - you're stepping into a lifestyle. This distinguished estate offers buyers the freedom to choose their own adventure:
• Continue the existing business at no cost - inherit a ready‑made hospitality venture with established reputation and potential income streams (at a level that suits you).
• Live like Lord or Lady of the manor - enjoy the romance of an English‑style country estate, complete with heritage architecture, sweeping grounds, and timeless elegance.
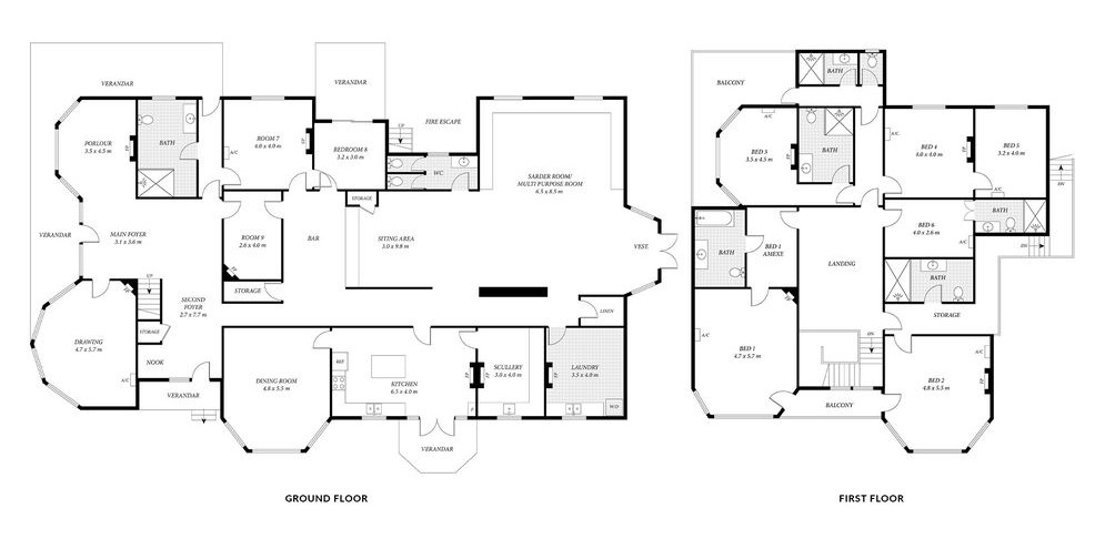
• On 54 acres, Blair Athol Homestead makes multi‑generational living effortless. With versatile accommodation (main residence, self contained cottage and cabins) and expansive living areas, it's a place where families can flourish together while enjoying space, freedom, and timeless elegance.
• Indoor pool & spa retreat - a dedicated separate building with a mineral pool and spa, sauna, kitchen, laundry, bathrooms, treatment rooms, creating the perfect space for wellness, entertaining, or continuing business.
• Beyond the grand residence, Blair Athol Homestead unfolds across 54 acres with a remarkable array of outbuildings and grounds that feels like a village - from stables, garages, carports and storage sheds to a sunken garden, tennis court and greenhouse, all framed by established gardens dating back to the 1860s, a historic cemetery, and a spring‑fed dam that together create a rare and enchanting lifestyle estate of heritage, leisure and possibility.
• The best of both worlds - the land offers small‑farm potential, with abundant water and solar power, while the thriving town of Inverell is just minutes away, ensuring convenience without compromise. Flights to Brisbane 4 days a week with Armidale & Moree 1.5 hours drive away.
• Versatility: Perfect as a luxury family home, a boutique hospitality venture, or a unique investment property. A furniture package is available by negotiation.
This is more than just a property - it's a landmark. Whether you're seeking a forever home or a property with income potential, Blair Athol Homestead offers unmatched character and opportunity on the outskirts of Inverell.
The Phone Code for this property is: 31068. Please quote this number when phoning or texting.
Disclaimer:
Whilst every care has been taken to verify the accuracy of the details in this advertisement, For Sale By Owner Pty Ltd (forsalebyowner.com.au) cannot guarantee its correctness. Prospective buyers or tenants need to take such action as is necessary, to satisfy themselves of any pertinent matters.
At Blair Athol Homestead, Inverell, you're not just buying a home - you're stepping into a lifestyle. This distinguished estate offers buyers the freedom to choose their own adventure:
• Continue the existing business at no cost - inherit a ready‑made hospitality venture with established reputation and potential income streams (at a level that suits you).
• Live like Lord or Lady of the manor - enjoy the romance of an English‑style country estate, complete with heritage architecture, sweeping grounds, and timeless elegance.
• On 54 acres, Blair Athol Homestead makes multi‑generational living effortless. With versatile accommodation (main residence, self contained cottage and cabins) and expansive living areas, it's a place where families can flourish together while enjoying space, freedom, and timeless elegance.
• Indoor pool & spa retreat - a dedicated separate building with a mineral pool and spa, sauna, kitchen, laundry, bathrooms, treatment rooms, creating the perfect space for wellness, entertaining, or continuing business.
• Beyond the grand residence, Blair Athol Homestead unfolds across 54 acres with a remarkable array of outbuildings and grounds that feels like a village - from stables, garages, carports and storage sheds to a sunken garden, tennis court and greenhouse, all framed by established gardens dating back to the 1860s, a historic cemetery, and a spring‑fed dam that together create a rare and enchanting lifestyle estate of heritage, leisure and possibility.
• The best of both worlds - the land offers small‑farm potential, with abundant water and solar power, while the thriving town of Inverell is just minutes away, ensuring convenience without compromise. Flights to Brisbane 4 days a week with Armidale & Moree 1.5 hours drive away.
• Versatility: Perfect as a luxury family home, a boutique hospitality venture, or a unique investment property. A furniture package is available by negotiation.
This is more than just a property - it's a landmark. Whether you're seeking a forever home or a property with income potential, Blair Athol Homestead offers unmatched character and opportunity on the outskirts of Inverell.
The Phone Code for this property is: 31068. Please quote this number when phoning or texting.
Disclaimer:
Whilst every care has been taken to verify the accuracy of the details in this advertisement, For Sale By Owner Pty Ltd (forsalebyowner.com.au) cannot guarantee its correctness. Prospective buyers or tenants need to take such action as is necessary, to satisfy themselves of any pertinent matters.
Need a Home Loan?
Get pre-approved for a home loan within 48 hours. Click Here or more information.
- Last 24 Hours1
- Last 7 Days18
- Last 30 Days79
Views
Contact the Owner
Phone or Text: 0488 847 018
Enter Phone Code 31068 when prompted.
Enter Phone Code 31068 when prompted.
"*" indicates required fields