11/170 Albion Street, Brunswick, VIC 3056
Sold Price: 660,000 (24 Dec 2025)
Large, Stylish Penthouse Apartment, with Stunning City View!
The Phone Code for this property is: 31829. Please quote this number when phoning or texting.
This is your chance to live in the most beautiful apartment in Brunswick, close to bustling Sydney Road and Lygon Street.
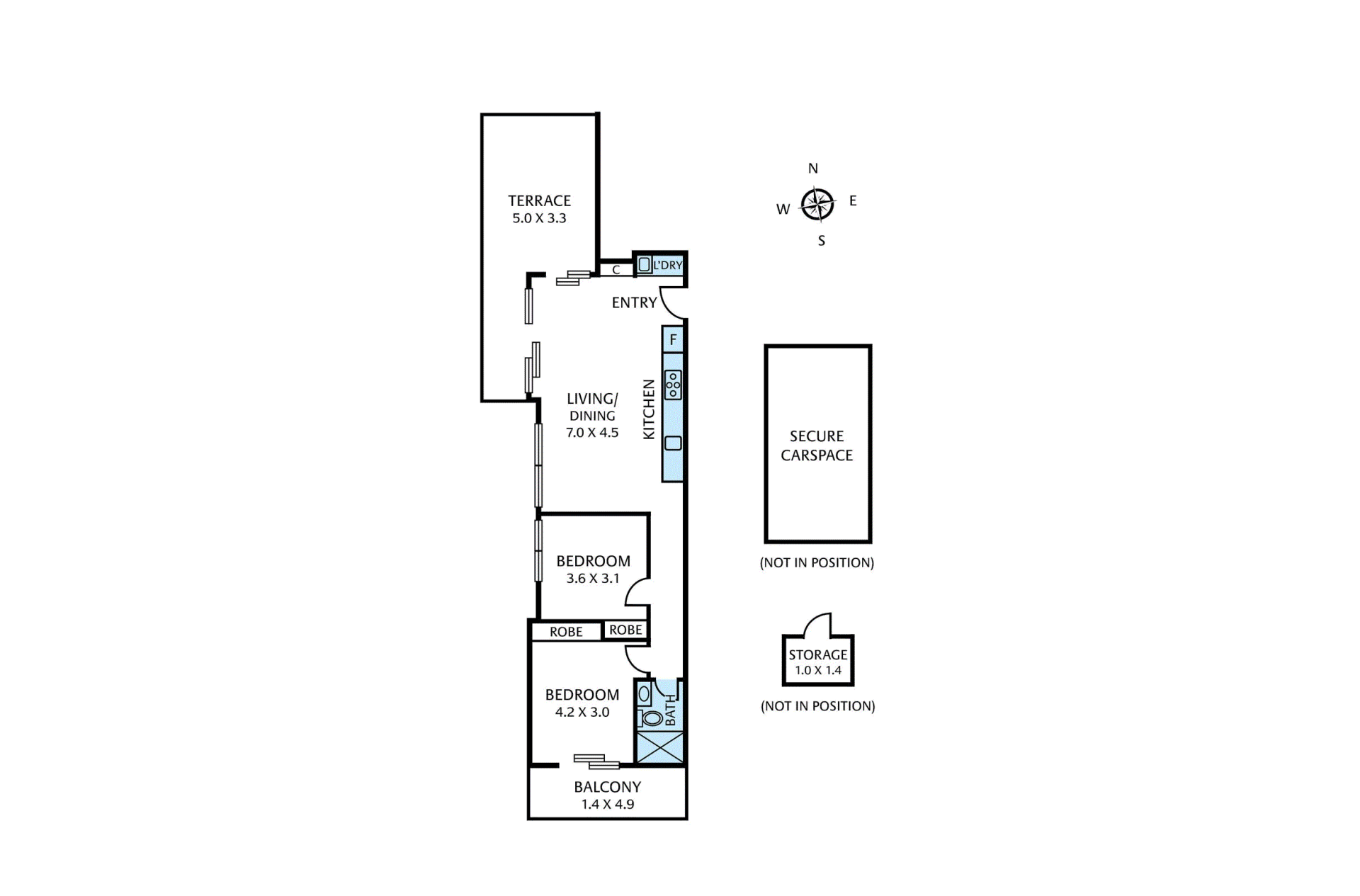
Delight your guests with a large balcony facing north and wrapping around to the west, perfect for entertaining and relaxing. A smaller balcony opens from the large master bedroom, boasting a stunning full sky, city view to the south.
Large, tiled living space contains a modern kitchen with stone benchtops and stainless steel appliances.
The large master bedroom and second bedroom are both carpeted, with built-in-robes, and recently-installed smart ceiling fans. Tiled bathroom includes a large, luxurious shower. Also included: a concealed laundry, linen closet, and split system air conditioning.
This small apartment building is just 11 apartments over three levels, with an elevator for convenience. Secure parking garage is below, with a sizeable storage locker, and room to store bicycles.
Open to expressions of interest from all.
Disclaimer:
Whilst every care has been taken to verify the accuracy of the details in this advertisement, For Sale By Owner Pty Ltd (forsalebyowner.com.au) cannot guarantee its correctness. Prospective buyers or tenants need to take such action as is necessary, to satisfy themselves of any pertinent matters.
This is your chance to live in the most beautiful apartment in Brunswick, close to bustling Sydney Road and Lygon Street.
Delight your guests with a large balcony facing north and wrapping around to the west, perfect for entertaining and relaxing. A smaller balcony opens from the large master bedroom, boasting a stunning full sky, city view to the south.
Large, tiled living space contains a modern kitchen with stone benchtops and stainless steel appliances.
The large master bedroom and second bedroom are both carpeted, with built-in-robes, and recently-installed smart ceiling fans. Tiled bathroom includes a large, luxurious shower. Also included: a concealed laundry, linen closet, and split system air conditioning.
This small apartment building is just 11 apartments over three levels, with an elevator for convenience. Secure parking garage is below, with a sizeable storage locker, and room to store bicycles.
Open to expressions of interest from all.
Disclaimer:
Whilst every care has been taken to verify the accuracy of the details in this advertisement, For Sale By Owner Pty Ltd (forsalebyowner.com.au) cannot guarantee its correctness. Prospective buyers or tenants need to take such action as is necessary, to satisfy themselves of any pertinent matters.
Due Diligence Checklist
Before you buy a home or vacant residential land, you should be aware of a range of issues that may affect that property and impose restrictions or obligations on you, if you buy it. Click Here to read more.
Statement of information
Need a Home Loan?
Get pre-approved for a home loan within 48 hours. Click Here or more information.
- Last 24 Hours0
- Last 7 Days6
- Last 30 Days37
Views
Contact the Owner
Phone or Text: 0488 847 018
Enter Phone Code 31829 when prompted.
Enter Phone Code 31829 when prompted.
"*" indicates required fields