37/1-5 Collaroy St, Collaroy, NSW 2097
Sold Price Not Disclosed (04 Nov 2025)
Top-Floor Beachside Apartment with Ocean Views & Alfresco Living
The Phone Code for this property is: 62931. Please quote this number when phoning or texting.
Perfectly positioned just footsteps from the beach, this immaculately presented sub-penthouse apartment offers an exceptional opportunity to secure a luxurious lifestyle in one of Sydney's most desirable coastal suburbs. Occupying a prized top-floor position in a modern security complex, the residence boasts ocean views, expansive outdoor entertaining areas, and stylish interiors that embrace the relaxed elegance of Northern Beaches living.
Property Highlights
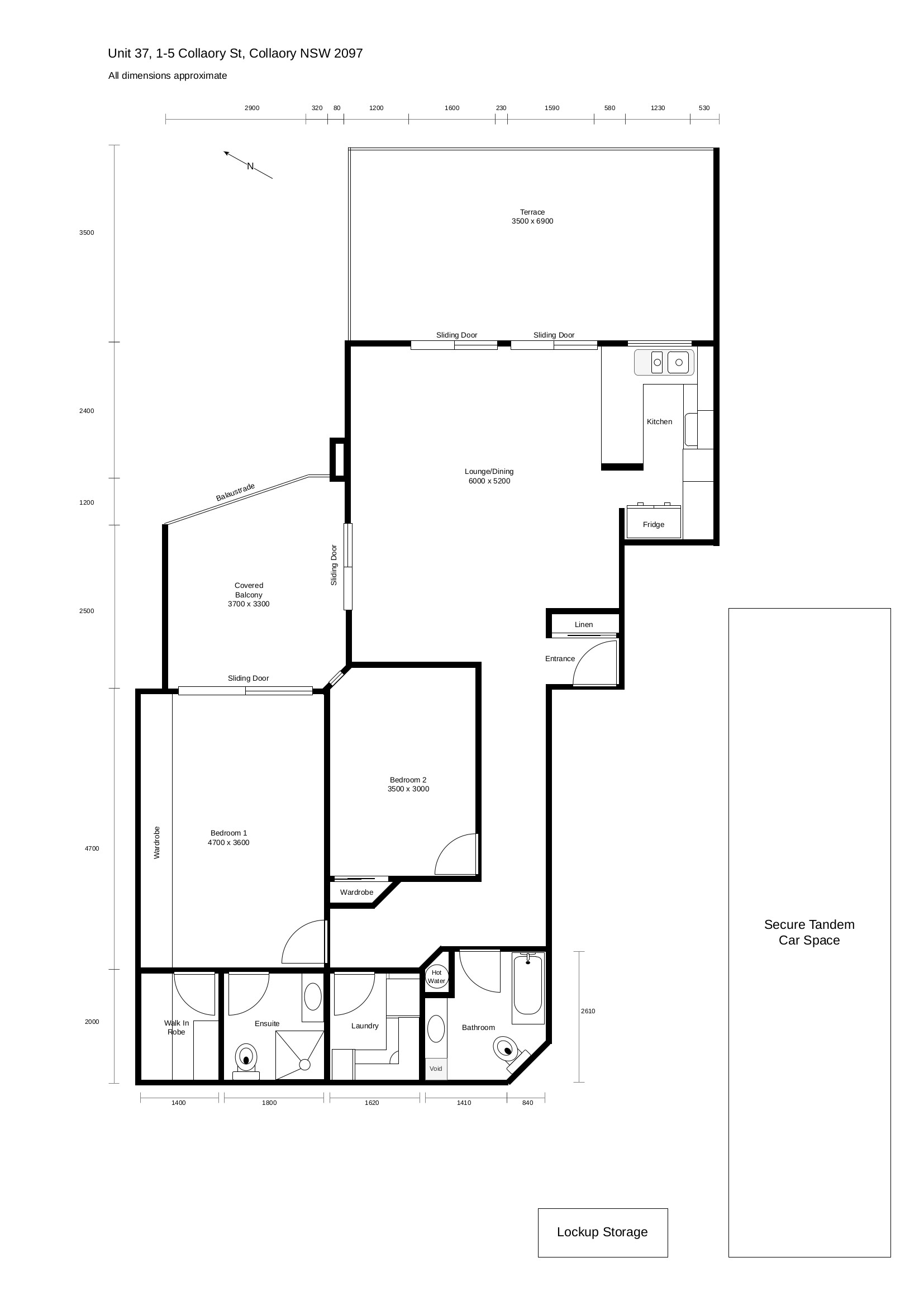
Spacious 2-bedroom, 2-bathroom apartment with 2 secure car spaces,
Approx. 159 m² on title including 2 generous balconies
Northerly Aspect with Sun-drenched interiors with a fresh neutral palette, air conditioning, and ceiling fans
Expansive alfresco entertaining spaces including a large terrace and ocean-view balcony
Open-plan living and dining flowing seamlessly to outdoor areas
Gourmet kitchen with stainless steel appliances, NEFF oven, dishwasher, and generous fridge space
Master suite with custom joinery and private ensuite
Queen-sized second bedroom with built-in wardrobe and ocean glimpses
Internal laundry with abundant storage
Tandem security parking and exclusive-use storage room
Lift access and secure building
Location & Lifestyle
Just metres from Collaroy Beach, cafes, restaurants, cinema, and B-Line city buses
Enjoy morning swims, coastal walks, and vibrant local dining all at your doorstep
Zoned for Collaroy Plateau Public School and Narrabeen Sports High School
Close to Pittwater House Schools (Private K-12) and several early learning centres
Nearby medical centres, fitness studios, and everyday conveniences
A true lifestyle address in one of Sydney's most desirable beachside suburbs
Whether you're downsizing, investing, or seeking a luxurious coastal home, this apartment delivers the perfect blend of comfort, style, and convenience. A rare opportunity to live the Northern Beaches dream, inspect today and experience the lifestyle for yourself.
For More Information or to Arrange an Inspection, please contact us.
Disclaimer:
Whilst every care has been taken to verify the accuracy of the details in this advertisement, For Sale By Owner (forsalebyowner.com.au Pty Ltd) cannot guarantee its correctness. Prospective buyers or tenants need to take such action as is necessary, to satisfy themselves of any pertinent matters.
Perfectly positioned just footsteps from the beach, this immaculately presented sub-penthouse apartment offers an exceptional opportunity to secure a luxurious lifestyle in one of Sydney's most desirable coastal suburbs. Occupying a prized top-floor position in a modern security complex, the residence boasts ocean views, expansive outdoor entertaining areas, and stylish interiors that embrace the relaxed elegance of Northern Beaches living.
Property Highlights
Spacious 2-bedroom, 2-bathroom apartment with 2 secure car spaces,
Approx. 159 m² on title including 2 generous balconies
Northerly Aspect with Sun-drenched interiors with a fresh neutral palette, air conditioning, and ceiling fans
Expansive alfresco entertaining spaces including a large terrace and ocean-view balcony
Open-plan living and dining flowing seamlessly to outdoor areas
Gourmet kitchen with stainless steel appliances, NEFF oven, dishwasher, and generous fridge space
Master suite with custom joinery and private ensuite
Queen-sized second bedroom with built-in wardrobe and ocean glimpses
Internal laundry with abundant storage
Tandem security parking and exclusive-use storage room
Lift access and secure building
Location & Lifestyle
Just metres from Collaroy Beach, cafes, restaurants, cinema, and B-Line city buses
Enjoy morning swims, coastal walks, and vibrant local dining all at your doorstep
Zoned for Collaroy Plateau Public School and Narrabeen Sports High School
Close to Pittwater House Schools (Private K-12) and several early learning centres
Nearby medical centres, fitness studios, and everyday conveniences
A true lifestyle address in one of Sydney's most desirable beachside suburbs
Whether you're downsizing, investing, or seeking a luxurious coastal home, this apartment delivers the perfect blend of comfort, style, and convenience. A rare opportunity to live the Northern Beaches dream, inspect today and experience the lifestyle for yourself.
For More Information or to Arrange an Inspection, please contact us.
Disclaimer:
Whilst every care has been taken to verify the accuracy of the details in this advertisement, For Sale By Owner (forsalebyowner.com.au Pty Ltd) cannot guarantee its correctness. Prospective buyers or tenants need to take such action as is necessary, to satisfy themselves of any pertinent matters.
Features
Balcony/Patio/Terrace, Bath, Lift, Pet Friendly, Storage Area, Intercom, Close to Parklands, Close to Schools, Close to Shops, Close to Transport, Near Waterfront, Quiet Location, Views, Beach/Coastal Property, Non Smoking, Air Conditioning, Built-ins, Ensuite, Internal Laundry, Polished Timber Floors, Broadband, Dishwasher, Balcony, Secure Parking
Need a Home Loan?
Get pre-approved for a home loan within 48 hours. Click Here or more information.
- Last 24 Hours0
- Last 7 Days0
- Last 30 Days2
Views
Contact the Owner
Phone or Text: 0488 847 018
Enter Phone Code: 62931
Enter Phone Code: 62931
"*" indicates required fields