88 Troughton Rd, Sunnybank, QLD 4109
Price: Contact Developer
Sunny Corner - Brand New Retail Hub in Sunnybank
The Phone Code for this property is: 83654. Please quote this number when phoning or texting.
Sunny Corner - Brand New Retail & Medical Hub | Only Few Tenancies Remaining
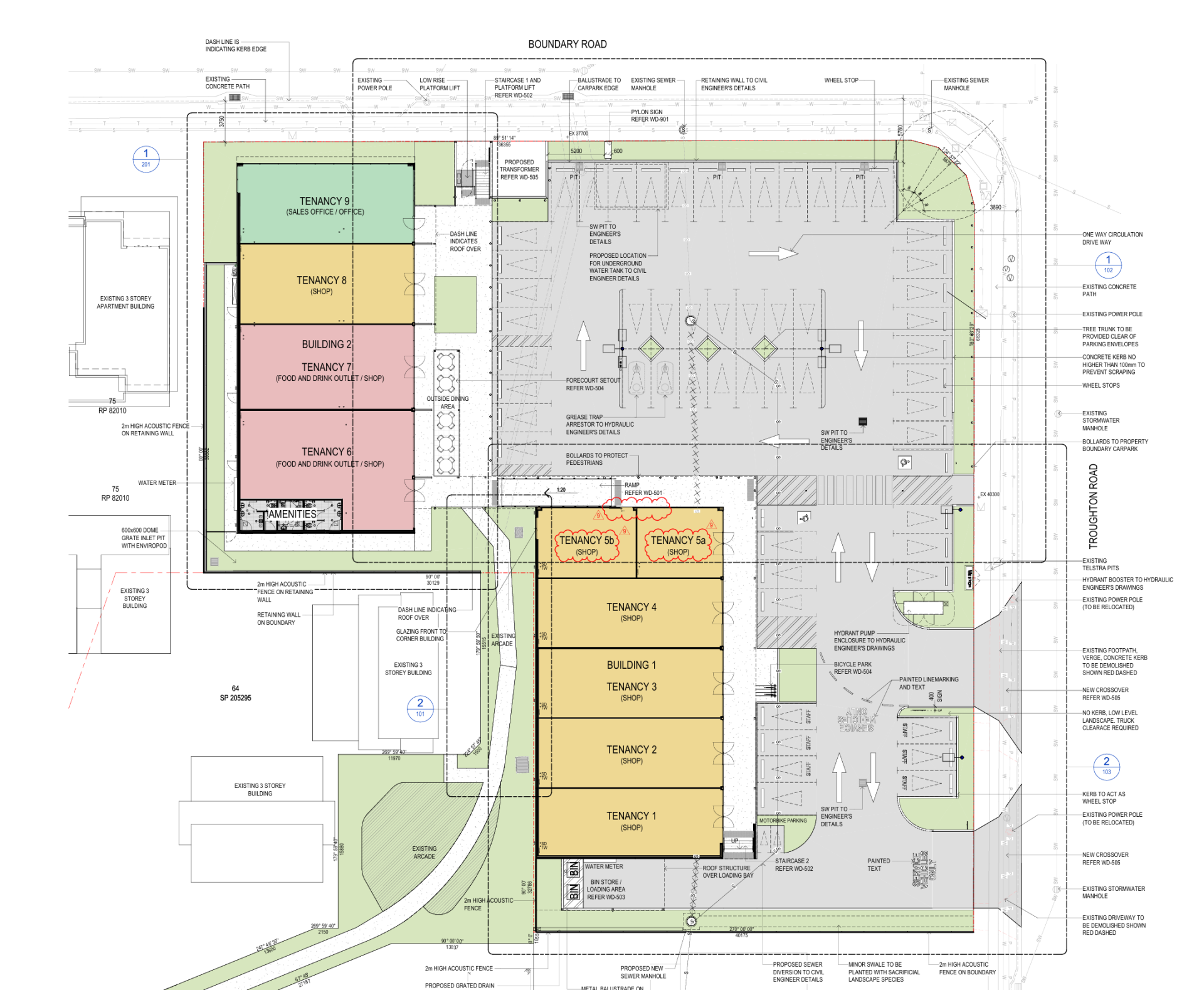
Address: 88 Troughton Road, Sunnybank QLD
Position your business in Sunnybank's newest purpose-built retail and medical destination, now well advanced in construction with both buildings roofed and completion targeted for June 2026.
Sunny Corner is a premium corner development anchored by a strong medical and professional tenant mix, designed to service the surrounding high-density residential catchment and established healthcare precinct.
With leasing well progressed, only three prime tenancies remain available.
Confirmed Tenant Mix (Already Leased)
• General Practice Clinic
• Physiotherapy Clinic
• Medical Specialists
• Real Estate Agency
• Hair & Beauty
This established mix creates consistent daily foot traffic and strong synergy for complementary operators.
Available Tenancies
Sizes from 51.5m² to 150m²
(Remaining spaces are suitable for food & beverage, allied health, beauty, service retail or specialty operators.)
Key Highlights
• High-Exposure Corner Site
Excellent visibility to Boundary Road & Troughton Road with strong daily traffic volumes.
• Medical-Led Retail Environment
Anchored by GP clinics and allied health providers, generating reliable daytime and after-hours trade.
• Outdoor Dining Opportunities
Select tenancies include dedicated outdoor dining areas.
• Ample Customer Parking
Over 64 on-site car parks with convenient entry and circulation.
Location Advantages
• 2 minutes to Sunnybank Plaza & Market Square
• Less than 5 minutes to Westfield Garden City
• Easy access to Pacific & Gateway Motorways
• Close to bus and train stations
• Surrounded by schools, hospitals, Griffith University and high-density residential developments
Rare opportunity to secure space in a brand-new, medical-anchored retail hub in the heart of Sunnybank.
Enquire now - limited tenancies remaining.
.
Disclaimer:
Whilst every care has been taken to verify the accuracy of the details in this advertisement, For Sale By Owner (forsalebyowner.com.au Pty Ltd) cannot guarantee its correctness. Prospective buyers or tenants need to take such action as is necessary, to satisfy themselves of any pertinent matters.
Sunny Corner - Brand New Retail & Medical Hub | Only Few Tenancies Remaining
Address: 88 Troughton Road, Sunnybank QLD
Position your business in Sunnybank's newest purpose-built retail and medical destination, now well advanced in construction with both buildings roofed and completion targeted for June 2026.
Sunny Corner is a premium corner development anchored by a strong medical and professional tenant mix, designed to service the surrounding high-density residential catchment and established healthcare precinct.
With leasing well progressed, only three prime tenancies remain available.
Confirmed Tenant Mix (Already Leased)
• General Practice Clinic
• Physiotherapy Clinic
• Medical Specialists
• Real Estate Agency
• Hair & Beauty
This established mix creates consistent daily foot traffic and strong synergy for complementary operators.
Available Tenancies
Sizes from 51.5m² to 150m²
(Remaining spaces are suitable for food & beverage, allied health, beauty, service retail or specialty operators.)
Key Highlights
• High-Exposure Corner Site
Excellent visibility to Boundary Road & Troughton Road with strong daily traffic volumes.
• Medical-Led Retail Environment
Anchored by GP clinics and allied health providers, generating reliable daytime and after-hours trade.
• Outdoor Dining Opportunities
Select tenancies include dedicated outdoor dining areas.
• Ample Customer Parking
Over 64 on-site car parks with convenient entry and circulation.
Location Advantages
• 2 minutes to Sunnybank Plaza & Market Square
• Less than 5 minutes to Westfield Garden City
• Easy access to Pacific & Gateway Motorways
• Close to bus and train stations
• Surrounded by schools, hospitals, Griffith University and high-density residential developments
Rare opportunity to secure space in a brand-new, medical-anchored retail hub in the heart of Sunnybank.
Enquire now - limited tenancies remaining.
.
Disclaimer:
Whilst every care has been taken to verify the accuracy of the details in this advertisement, For Sale By Owner (forsalebyowner.com.au Pty Ltd) cannot guarantee its correctness. Prospective buyers or tenants need to take such action as is necessary, to satisfy themselves of any pertinent matters.
- Last 24 Hours1
- Last 7 Days4
- Last 30 Days12
Views
Contact the Owner
Phone or Text: 0488 847 018
Enter Phone Code: 83654
Enter Phone Code: 83654
"*" indicates required fields