28 Quandong Street, Currajong, QLD 4812
Sold Price Not Disclosed (31 Aug 2025)
Newly renovated Duplex in prime Townsville location - Live in one, rent the other or maximise yield
The Phone Code for this property is: 91660. Please quote this number when phoning or texting.
Whether you're looking to live in one and rent the other, dive straight into a high-performing investment, or explore future strata title potential, this freshly updated duplex offers flexibility, stability, and upside - all on a level 607sqm block in one of Townsville's most convenient locations.
With two spacious 2-bedroom residences, each with separate front and rear access, split system air-conditioning in every living and bedroom space, private fenced rear yards, exclusive-use under-house areas (ideal for secure parking, entertaining, storage or workshop use), this is a rare find for those chasing both lifestyle and income.
What you'll love:
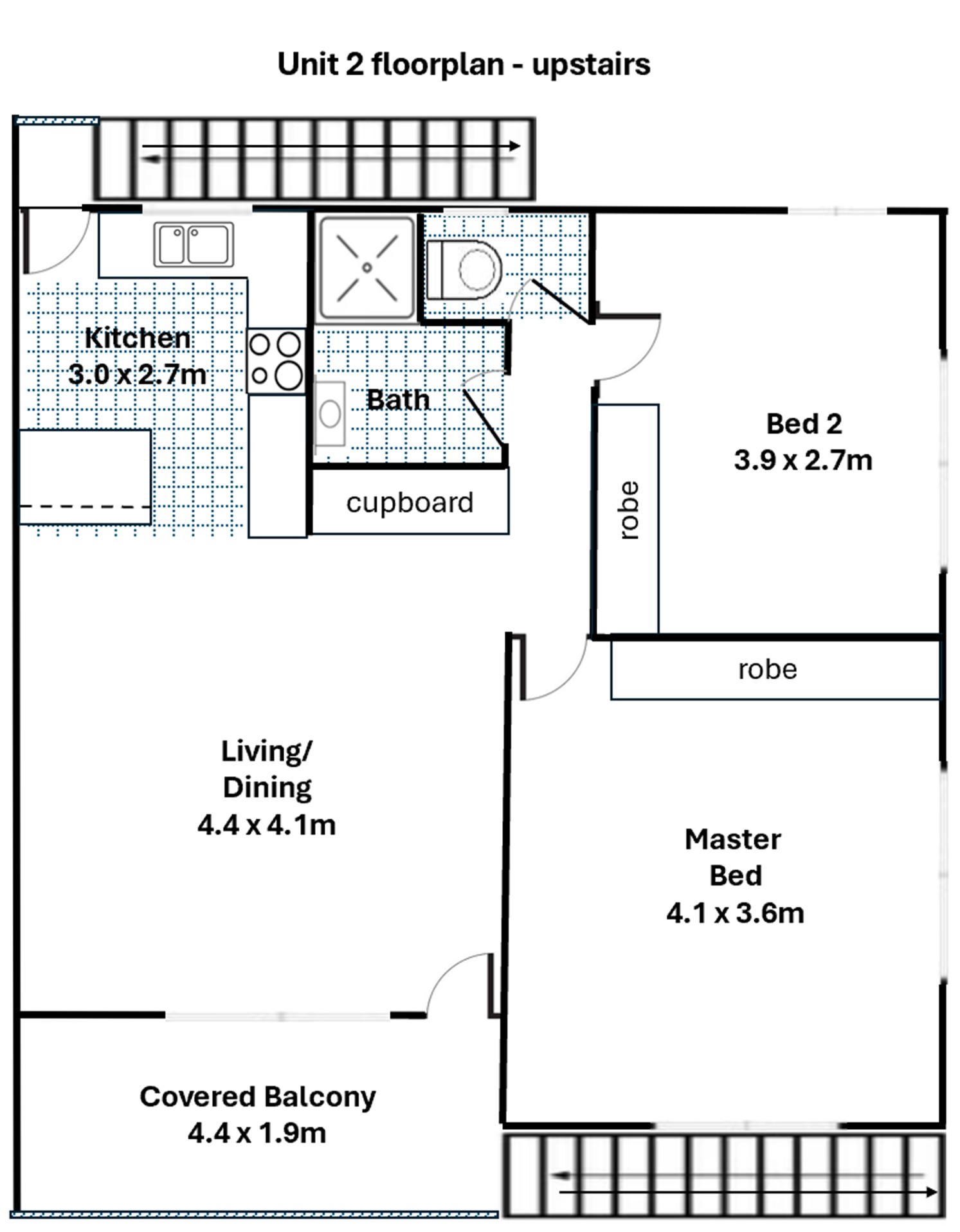
• Unit 2 has been fully renovated - freshly polished timber floors, full internal repaint, new insect screens, curtains, bathroom mirrors, cupboard handles, kitchen stove
• Unit 1 is fully maintained, with a new stove and hot water service
• New roof (2021) with warranty, full external repaint, and new front picket fence - nothing left to do
• 2 x 2-bedroom units, each with open plan living/dining, a modern central kitchen, and separate toilet to bathroom
• Fully lockable under-house area (approx. 70sqm each): laundry, space for undercover secure parking, entertaining, potential workshop
• Private, pet- and child-friendly rear yards - fully fenced for peace of mind
• Split system air-conditioning in every living area and bedroom
• Separate electricity meters and NBN ready
Live in, rent out, or maximise yield
• Unit 2 is vacant and fully renovated, rent-ready at $420-460 per week
• Unit 1 is tenanted by long-term valued resident of 5.5 years, leased until February 2026 at $360pw, with scope to increase rent by over 10% after that date
• Combined potential income: $780-$920 per week
• No body corporate fees - full freehold ownership
• Extreme shortage of rental housing, fast moving market and strong tenant demand in Townsville
• Council rates (2025): $6996.40
Unbeatable location for tenants and live-in owners
• Easy walking distance to Currajong State School, Warrina shopping precinct and cinemas, Mooney Street shops, and local medical facilities
• Only 85 metres to Mooney St bus stop - with direct routes to the CBD, Stockland, and Willows
• 10-15 minute drive to hospital, airport, major shopping centres, the scenic Strand, and beaches
Whether you're a seasoned investor looking to add a strong-performing asset to your portfolio, or a first-home buyer ready to reduce your mortgage by renting the second dwelling - this is one of the rare few that ticks every box.
Disclaimer:
Whilst every care has been taken to verify the accuracy of the details in this advertisement, For Sale By Owner (forsalebyowner.com.au Pty Ltd) cannot guarantee its correctness. Prospective buyers or tenants need to take such action as is necessary, to satisfy themselves of any pertinent matters.
Whether you're looking to live in one and rent the other, dive straight into a high-performing investment, or explore future strata title potential, this freshly updated duplex offers flexibility, stability, and upside - all on a level 607sqm block in one of Townsville's most convenient locations.
With two spacious 2-bedroom residences, each with separate front and rear access, split system air-conditioning in every living and bedroom space, private fenced rear yards, exclusive-use under-house areas (ideal for secure parking, entertaining, storage or workshop use), this is a rare find for those chasing both lifestyle and income.
What you'll love:
• Unit 2 has been fully renovated - freshly polished timber floors, full internal repaint, new insect screens, curtains, bathroom mirrors, cupboard handles, kitchen stove
• Unit 1 is fully maintained, with a new stove and hot water service
• New roof (2021) with warranty, full external repaint, and new front picket fence - nothing left to do
• 2 x 2-bedroom units, each with open plan living/dining, a modern central kitchen, and separate toilet to bathroom
• Fully lockable under-house area (approx. 70sqm each): laundry, space for undercover secure parking, entertaining, potential workshop
• Private, pet- and child-friendly rear yards - fully fenced for peace of mind
• Split system air-conditioning in every living area and bedroom
• Separate electricity meters and NBN ready
Live in, rent out, or maximise yield
• Unit 2 is vacant and fully renovated, rent-ready at $420-460 per week
• Unit 1 is tenanted by long-term valued resident of 5.5 years, leased until February 2026 at $360pw, with scope to increase rent by over 10% after that date
• Combined potential income: $780-$920 per week
• No body corporate fees - full freehold ownership
• Extreme shortage of rental housing, fast moving market and strong tenant demand in Townsville
• Council rates (2025): $6996.40
Unbeatable location for tenants and live-in owners
• Easy walking distance to Currajong State School, Warrina shopping precinct and cinemas, Mooney Street shops, and local medical facilities
• Only 85 metres to Mooney St bus stop - with direct routes to the CBD, Stockland, and Willows
• 10-15 minute drive to hospital, airport, major shopping centres, the scenic Strand, and beaches
Whether you're a seasoned investor looking to add a strong-performing asset to your portfolio, or a first-home buyer ready to reduce your mortgage by renting the second dwelling - this is one of the rare few that ticks every box.
Disclaimer:
Whilst every care has been taken to verify the accuracy of the details in this advertisement, For Sale By Owner (forsalebyowner.com.au Pty Ltd) cannot guarantee its correctness. Prospective buyers or tenants need to take such action as is necessary, to satisfy themselves of any pertinent matters.
Features
Balcony/Patio/Terrace, Formal Lounge, Renovated, Garden Shed, Storage Area, Security Windows, Close to Schools, Close to Shops, Close to Transport, Air Conditioning, Built-ins, Polished Timber Floors, Workshop
Need a Home Loan?
Get pre-approved for a home loan within 48 hours. Click Here or more information.
- Last 24 Hours0
- Last 7 Days1
- Last 30 Days9
Views
Contact the Owner
Phone or Text: 0488 847 018
Enter Phone Code: 91660
Enter Phone Code: 91660
"*" indicates required fields