309/9 Waterview Drive, Lane Cove, NSW 2066
Price: $1,055,000
- There are no current opens scheduled.
Open Times
Peaceful Waterside Living with Stunning Burns Bay Views
Enjoy the tranquillity and charm of this light-filled two-bedroom, two-bathroom apartment, perfectly positioned adjacent to Linley Point with captivating easterly views over Burns Bay. Set in a quiet and leafy locale, this stylish residence offers a serene lifestyle just moments from everything you need.
Feel instantly at home in the spacious open-plan living and dining area, where large windows and a private balcony showcase breathtaking water views-also enjoyed from both generously sized bedrooms. Designed for relaxed living and effortless entertaining, this apartment combines peace, privacy, and style.
Located just five minutes from both Lane Cove Village and Hunters Hill shopping precincts, you'll have a wide variety of restaurants, cafes, and boutique stores at your fingertips. Commuting is a breeze with nearby bus, ferry, and train options, and the Sydney CBD is less than 20 minutes away by car.
Additional features include:
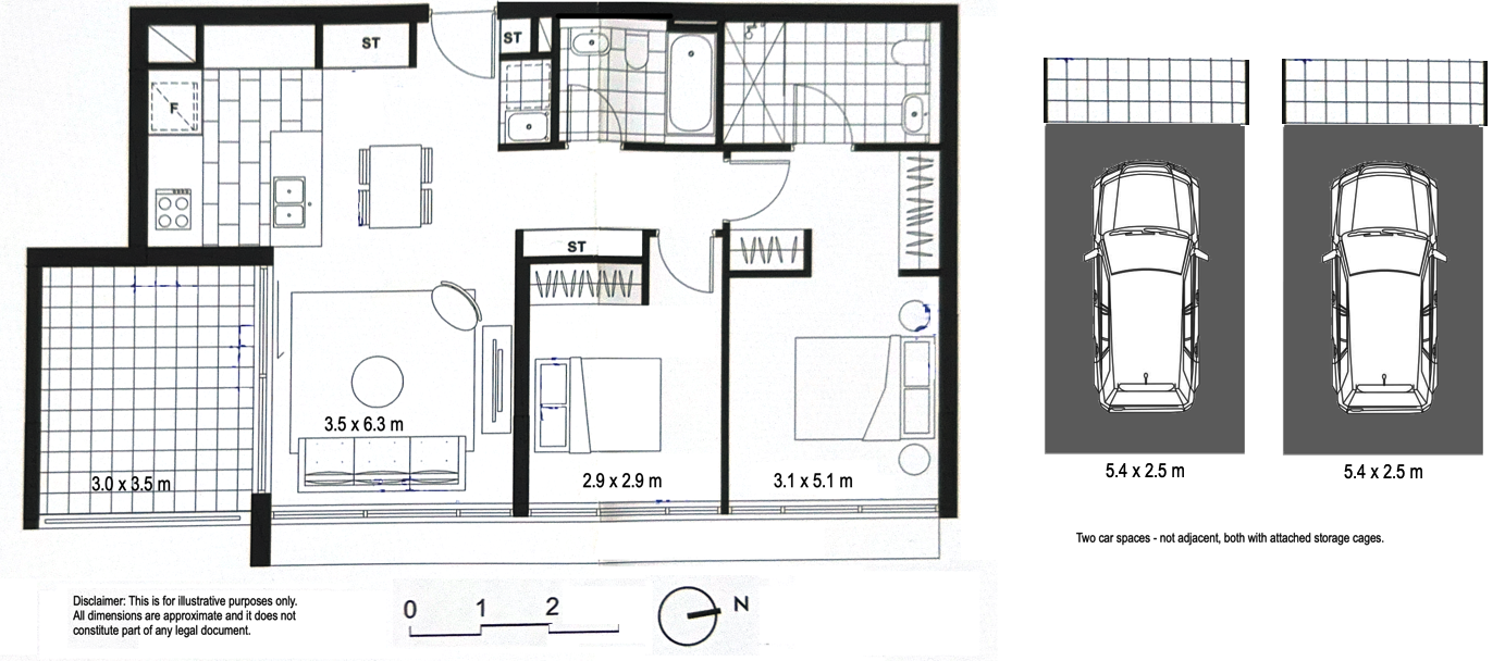
Two secure car spaces with storage cages
Lift access and modern amenities
Proximity to scenic walking trails, Lane Cove National Park, and Burns Bay foreshore
Adjacent to popular Hughes Park with its playground and BBQ facilities
Close to the Centro convenience store and a Montessori long-day childcare centre
Easy access to quality public and private schools
This is a rare opportunity to secure peaceful waterside living with unbeatable convenience. Inspection is a must!
Strata fees: $1560
Rates: $401
The Phone Code for this property is: 10049. Please quote this number when phoning or texting.
Disclaimer:
Whilst every care has been taken to verify the accuracy of the details in this advertisement, For Sale By Owner (forsalebyowner.com.au Pty Ltd) cannot guarantee its correctness. Prospective buyers or tenants need to take such action as is necessary, to satisfy themselves of any pertinent matters.
Feel instantly at home in the spacious open-plan living and dining area, where large windows and a private balcony showcase breathtaking water views-also enjoyed from both generously sized bedrooms. Designed for relaxed living and effortless entertaining, this apartment combines peace, privacy, and style.
Located just five minutes from both Lane Cove Village and Hunters Hill shopping precincts, you'll have a wide variety of restaurants, cafes, and boutique stores at your fingertips. Commuting is a breeze with nearby bus, ferry, and train options, and the Sydney CBD is less than 20 minutes away by car.
Additional features include:
Two secure car spaces with storage cages
Lift access and modern amenities
Proximity to scenic walking trails, Lane Cove National Park, and Burns Bay foreshore
Adjacent to popular Hughes Park with its playground and BBQ facilities
Close to the Centro convenience store and a Montessori long-day childcare centre
Easy access to quality public and private schools
This is a rare opportunity to secure peaceful waterside living with unbeatable convenience. Inspection is a must!
Strata fees: $1560
Rates: $401
The Phone Code for this property is: 10049. Please quote this number when phoning or texting.
Disclaimer:
Whilst every care has been taken to verify the accuracy of the details in this advertisement, For Sale By Owner (forsalebyowner.com.au Pty Ltd) cannot guarantee its correctness. Prospective buyers or tenants need to take such action as is necessary, to satisfy themselves of any pertinent matters.
Features
Bath, Lift, Modern Bathroom, Modern Kitchen, Storage Area, Intercom, Swipe Card, Close to Parklands, Close to Shops, Close to Transport, Near Waterfront, Quiet Location, Views, Non Smoking, Air Conditioning, Built-ins, Ensuite, Polished Timber Floors, Broadband, Dishwasher, Balcony, Secure Parking, Living Area, BBQ, Pet Friendly, Close to Schools, Gas Enabled, Pay TV Enabled
For all your conveyancing needs, contact Jessica on (02) 6519 4933 at Smart Coast Conveyancing or email if you have questions. jessica@smartcoast.com.au
Visit WebsiteNeed a Home Loan?
Get pre-approved for a home loan within 48 hours. Click Here or more information.
- Last 24 Hours1
- Last 7 Days16
- Last 30 Days46
Views
Contact the Owner
Phone or Text: 0488 847 018
Enter Phone Code 10049 when prompted.
Enter Phone Code 10049 when prompted.
"*" indicates required fields
