Wilsons Creek, NSW 2482
Price: $3,600,000 o.n.o
- There are no current opens scheduled.
Open Times
WOW FACTOR, this is a very special place.
The Phone Code for this property is: 76555. Please quote this number when phoning or texting.
17 acres of paradise. Located in the hills behind Mullumbimby. Amazing views to the ocean and the Lighthouse of Byron Bay. The property exist of old established bush, sloping hills and open spaces. Not suitable for livestock/animals as block is on a slope and does not provide enough food. It is a lifestyle property. The title has 3 zonings, one is an RU2 zoning and therefore has an building opportunity for a second dwelling (STCA). The elevation is about 275m above sea level. This special place has amazing old trees (up to 750 years) on the property.
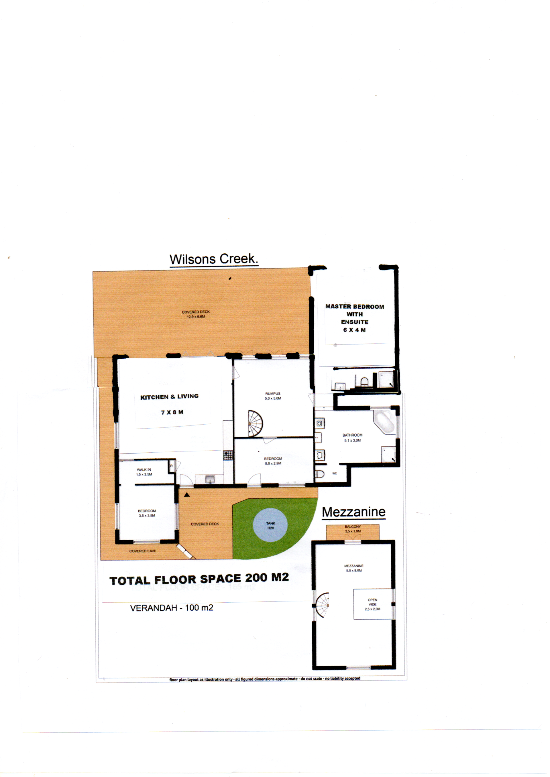
On offer is a three bedroom house with mezzanine, plunge pool, 4 bay garage, storage shed and a shade house. The property has an approved DA for further development. 100'000l of water tanks and solar/heat pump is the source for the hot water system. Power comes from the grid. Internet is NBN Broadband. The access road is bitumen.
The gardens are established and has fruit trees like lemon, lime, kefir lime, finger lime, oranges, apple, dates and more.
Distances:
- Mullumbimby CBD is max. 10 min.
- Beach at Brunswick Heads 25 min.
- Byron Bay 30 min.
- Airport Ballina 39 min.
- Airport Gold Coast 50 min.
Property was first established in 1994. If you after peace, serenity and privacy then this property could suit you. It definitely has an WOW factor in more than one way. If you are a serious buyer then please do not hesitate and enquire about the place. Get in touch and make an appointment for a private viewing. The pictures shown do not represent the actual beauty of the property. It needs to be seen in order to appreciate what is on offer.
Disclaimer:
Whilst every care has been taken to verify the accuracy of the details in this advertisement, For Sale By Owner (forsalebyowner.com.au Pty Ltd) cannot guarantee its correctness. Prospective buyers or tenants need to take such action as is necessary, to satisfy themselves of any pertinent matters.
17 acres of paradise. Located in the hills behind Mullumbimby. Amazing views to the ocean and the Lighthouse of Byron Bay. The property exist of old established bush, sloping hills and open spaces. Not suitable for livestock/animals as block is on a slope and does not provide enough food. It is a lifestyle property. The title has 3 zonings, one is an RU2 zoning and therefore has an building opportunity for a second dwelling (STCA). The elevation is about 275m above sea level. This special place has amazing old trees (up to 750 years) on the property.
On offer is a three bedroom house with mezzanine, plunge pool, 4 bay garage, storage shed and a shade house. The property has an approved DA for further development. 100'000l of water tanks and solar/heat pump is the source for the hot water system. Power comes from the grid. Internet is NBN Broadband. The access road is bitumen.
The gardens are established and has fruit trees like lemon, lime, kefir lime, finger lime, oranges, apple, dates and more.
Distances:
- Mullumbimby CBD is max. 10 min.
- Beach at Brunswick Heads 25 min.
- Byron Bay 30 min.
- Airport Ballina 39 min.
- Airport Gold Coast 50 min.
Property was first established in 1994. If you after peace, serenity and privacy then this property could suit you. It definitely has an WOW factor in more than one way. If you are a serious buyer then please do not hesitate and enquire about the place. Get in touch and make an appointment for a private viewing. The pictures shown do not represent the actual beauty of the property. It needs to be seen in order to appreciate what is on offer.
Disclaimer:
Whilst every care has been taken to verify the accuracy of the details in this advertisement, For Sale By Owner (forsalebyowner.com.au Pty Ltd) cannot guarantee its correctness. Prospective buyers or tenants need to take such action as is necessary, to satisfy themselves of any pertinent matters.
For all your conveyancing needs, contact Jessica on (02) 6519 4933 at Smart Coast Conveyancing or email if you have questions. jessica@smartcoast.com.au
Visit Website- Last 24 Hours1
- Last 7 Days3
- Last 30 Days23
Views
Contact the Owner
Phone or Text: 0488 847 018
Enter Phone Code 76555 when prompted.
Enter Phone Code 76555 when prompted.
