15 Sneaths Road, Boatswain Point, SA 5275
Sold Price: 585,000 (02 May 2025)
Rare Beach House Opportunity near Robe
The Phone Code for this property is: 94879. Please quote this number when phoning or texting.
This Quaker Barn style beach house offers an idyllic coastal lifestyle or holiday house in a much sought after location in Boatswains Point, just 20km north of Robe.
This delightful two storey house is situated on a quiet country road overlooking farmland to the East with direct beach access through a walking track to the West. A short walk through the sand dunes leads you to a beautiful beach and a short drive around the corner allows you to launch your boat from the beach.
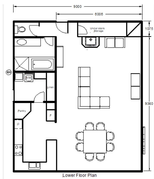
The lower level comprises a generous, open plan living and dining room complete with large fan assisted wood combustion heater to create delightful ambiance in the winter months.
The spacious, custom-made kitchen has ample cupboards, and a large walk-in pantry and is complete with induction cook top and electric oven. The laundry comprises of floor to ceiling linen cupboards, washing machine and dryer.
Completing the lower level is a large, modern bathroom with shower and bath and a separate water closet.
The upper level comprises of a large living area and two generous bedrooms (with the possibility of a third bedroom if required) a second water closet and picturesque views from front and rear covered balconies. The rear balcony with dimensions of 9 x 3m is fully carpeted with new marine carpet.
The carport and rear verandah are paved giving plenty of room for outdoor living.
This house is situated on a generous 1107 sqm block with its own fresh water bore and three rainwater tanks with
capacity of app 30,000L. There is also a 9x6m shed, concreted with power, and a smaller garden shed, currently used for wood storage.
This meticulously crafted house has attention to detail both inside and out and is set in a popular fishing and holidaying destination. Be quick as this rare lifestyle opportunity won't last long!
This property will be sold fully furnished, nothing to do but walk in and enjoy. Everything in the house is included, even the ride-on mower, 3 kayaks, bbq, outdoor picnic setting and much more. Purchaser has first priority to buy adjoining vacant land with separate title.
Open inspection by appointment only.
Disclaimer:
Whilst every care has been taken to verify the accuracy of the details in this advertisement, For Sale By Owner (forsalebyowner.com.au Pty Ltd) cannot guarantee its correctness. Prospective buyers or tenants need to take such action as is necessary, to satisfy themselves of any pertinent matters.
This Quaker Barn style beach house offers an idyllic coastal lifestyle or holiday house in a much sought after location in Boatswains Point, just 20km north of Robe.
This delightful two storey house is situated on a quiet country road overlooking farmland to the East with direct beach access through a walking track to the West. A short walk through the sand dunes leads you to a beautiful beach and a short drive around the corner allows you to launch your boat from the beach.
The lower level comprises a generous, open plan living and dining room complete with large fan assisted wood combustion heater to create delightful ambiance in the winter months.
The spacious, custom-made kitchen has ample cupboards, and a large walk-in pantry and is complete with induction cook top and electric oven. The laundry comprises of floor to ceiling linen cupboards, washing machine and dryer.
Completing the lower level is a large, modern bathroom with shower and bath and a separate water closet.
The upper level comprises of a large living area and two generous bedrooms (with the possibility of a third bedroom if required) a second water closet and picturesque views from front and rear covered balconies. The rear balcony with dimensions of 9 x 3m is fully carpeted with new marine carpet.
The carport and rear verandah are paved giving plenty of room for outdoor living.
This house is situated on a generous 1107 sqm block with its own fresh water bore and three rainwater tanks with
capacity of app 30,000L. There is also a 9x6m shed, concreted with power, and a smaller garden shed, currently used for wood storage.
This meticulously crafted house has attention to detail both inside and out and is set in a popular fishing and holidaying destination. Be quick as this rare lifestyle opportunity won't last long!
This property will be sold fully furnished, nothing to do but walk in and enjoy. Everything in the house is included, even the ride-on mower, 3 kayaks, bbq, outdoor picnic setting and much more. Purchaser has first priority to buy adjoining vacant land with separate title.
Open inspection by appointment only.
Disclaimer:
Whilst every care has been taken to verify the accuracy of the details in this advertisement, For Sale By Owner (forsalebyowner.com.au Pty Ltd) cannot guarantee its correctness. Prospective buyers or tenants need to take such action as is necessary, to satisfy themselves of any pertinent matters.
Features
Balcony/Patio/Terrace, Bath, Fireplace(s), Furnished, Modern Bathroom, Modern Kitchen, Garden Shed, Rainwater Tank, Beach/Coastal Property, Internal Laundry, Balcony, Living Area, Rumpus Room, Deck
Contact Karen on 0438 838 018 at First Paige Property Settlement Services for help with your Real Estate paperwork (Form 1 & Contracts) or email if you have questions. admin@firstpaigeform1.com
Visit WebsiteNeed a Home Loan?
Get pre-approved for a home loan within 48 hours. Click Here or more information.
- Last 24 Hours0
- Last 7 Days2
- Last 30 Days10
Views
Contact the Owner
Phone or Text: 0488 847 018
Enter Phone Code: 94879
Enter Phone Code: 94879
"*" indicates required fields
