51 Applebee Street, St Peters, NSW 2044
Sold Price: 1,490,000 (23 Sep 2024)
One-of-a-kind freestanding home with backyard oasis.
A unique freestanding cottage house with an established, lush garden. This residence is ready to move in or rent out. With ample off-street parking and wide side access to the rear courtyard, it's an adaptable home - family-friendly, work-from-home, or more. In a key position just footsteps to bustling King Street, Sydney Park, Simpson Park, Camdenville Oval and public transport options (train, bus, metro) all within a short walk.
This house offers the perfect balance of inner west lifestyle, convenience and ease.
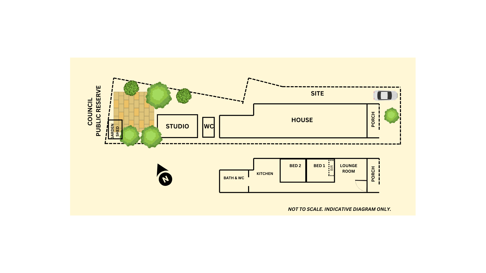
Features
* fully freestanding house
* two light-filled bedrooms- one with BIR
* established garden with fruit trees and large paved courtyard
* garden studio
* original timber floors
* Freshly painted throughout
* ceiling fans
* Valuable off-street parking
* front-to-rear access one side
* back boundary with council owned public reserve
* nestled in a small tightly-held pocket of St Peters.
* Catchment to sought-after St Peters Public School and Alexandria Park School
* less than 400m to 3 major local parks (Sydney Park, Simpson Park, Camdenville Oval)
* 4 min drive to Marrickville Metro shopping centre
Concept plans for sustainable, 2 storey, re-development (STCA) available.
Council Rates: approx.$400/quarter
Water Rates: approx. $250/quarter
Strata: n/a
**Please feel free to contact me if you would like to book a private inspection.
The Phone Code for this property is: 12852. Please quote this number when phoning or texting.
Disclaimer:
Whilst every care has been taken to verify the accuracy of the details in this advertisement, For Sale By Owner (forsalebyowner.com.au Pty Ltd) cannot guarantee its correctness. Prospective buyers or tenants need to take such action as is necessary, to satisfy themselves of any pertinent matters.
This house offers the perfect balance of inner west lifestyle, convenience and ease.
Features
* fully freestanding house
* two light-filled bedrooms- one with BIR
* established garden with fruit trees and large paved courtyard
* garden studio
* original timber floors
* Freshly painted throughout
* ceiling fans
* Valuable off-street parking
* front-to-rear access one side
* back boundary with council owned public reserve
* nestled in a small tightly-held pocket of St Peters.
* Catchment to sought-after St Peters Public School and Alexandria Park School
* less than 400m to 3 major local parks (Sydney Park, Simpson Park, Camdenville Oval)
* 4 min drive to Marrickville Metro shopping centre
Concept plans for sustainable, 2 storey, re-development (STCA) available.
Council Rates: approx.$400/quarter
Water Rates: approx. $250/quarter
Strata: n/a
**Please feel free to contact me if you would like to book a private inspection.
The Phone Code for this property is: 12852. Please quote this number when phoning or texting.
Disclaimer:
Whilst every care has been taken to verify the accuracy of the details in this advertisement, For Sale By Owner (forsalebyowner.com.au Pty Ltd) cannot guarantee its correctness. Prospective buyers or tenants need to take such action as is necessary, to satisfy themselves of any pertinent matters.
Features
Bath, Garden, Garden Shed, Close to Parklands, Close to Schools, Close to Shops, Close to Transport, Built-ins, Gas Enabled, Fully Fenced
Need a Home Loan?
Get pre-approved for a home loan within 48 hours. Click Here or more information.
- Last 24 Hours0
- Last 7 Days2
- Last 30 Days4
Views
Contact the Owner
Phone or Text: 0488 847 018
Enter Phone Code: 12852
Enter Phone Code: 12852
"*" indicates required fields