444 Rose Street, Lavington, NSW 2641
Sold Price Not Disclosed (22 Jul 2024)
Stylish and bright home with a view in Lavington
The Phone Code for this property is: 77355. Please quote this number when phoning or texting.
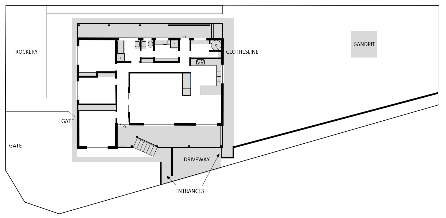
Situated on a prominent corner block in a low traffic street, this stylish family home captures lovely views and offers open, bright living spaces and garden areas with good security for family living.
• Sun soaked open plan lounge, dining and kitchen area with polished timber floors. A brand new Panasonic 3.5kw reverse cycle system keeps this area comfortable all year round.
• The living area opens to an extra wide front balcony ideal for entertaining, with room for a barbeque and good size outdoor table setting.
• Modern white kitchen features 900mm SMEG cooker, rangehood and microwave, plus dishwasher and excellent storage.
• Three generously sized bedrooms with new carpets and built-in wardrobes. The main bedroom faces the street while the other two face a rockery courtyard area.
• There is a separate small room that can serve as a study.
• One bathroom with bath and shower connects to a toilet as well as the laundry area featuring a second shower. This space also incorporates ample built-ins.
• Downstairs is reached via a spiral staircase and features a large rumpus room with bar area, connecting to the double garage. The garage has a brand new roller door.
• A secluded garden area features secure gates, a new foldable clothesline, a nice outlook over neighboring properties and distant hills, some established trees and potential to build an outdoor entertainment area.
Disclaimer:
Whilst every care has been taken to verify the accuracy of the details in this advertisement, For Sale By Owner (forsalebyowner.com.au Pty Ltd) cannot guarantee its correctness. Prospective buyers or tenants need to take such action as is necessary, to satisfy themselves of any pertinent matters.
Situated on a prominent corner block in a low traffic street, this stylish family home captures lovely views and offers open, bright living spaces and garden areas with good security for family living.
• Sun soaked open plan lounge, dining and kitchen area with polished timber floors. A brand new Panasonic 3.5kw reverse cycle system keeps this area comfortable all year round.
• The living area opens to an extra wide front balcony ideal for entertaining, with room for a barbeque and good size outdoor table setting.
• Modern white kitchen features 900mm SMEG cooker, rangehood and microwave, plus dishwasher and excellent storage.
• Three generously sized bedrooms with new carpets and built-in wardrobes. The main bedroom faces the street while the other two face a rockery courtyard area.
• There is a separate small room that can serve as a study.
• One bathroom with bath and shower connects to a toilet as well as the laundry area featuring a second shower. This space also incorporates ample built-ins.
• Downstairs is reached via a spiral staircase and features a large rumpus room with bar area, connecting to the double garage. The garage has a brand new roller door.
• A secluded garden area features secure gates, a new foldable clothesline, a nice outlook over neighboring properties and distant hills, some established trees and potential to build an outdoor entertainment area.
Disclaimer:
Whilst every care has been taken to verify the accuracy of the details in this advertisement, For Sale By Owner (forsalebyowner.com.au Pty Ltd) cannot guarantee its correctness. Prospective buyers or tenants need to take such action as is necessary, to satisfy themselves of any pertinent matters.
Features
Balcony/Patio/Terrace, Basement, Bath, Modern Kitchen, Garden, Storage Area, Intercom, Close to Parklands, Close to Schools, Close to Shops, Quiet Location, Views, Air Conditioning, Built-ins, Internal Laundry, Polished Timber Floors, Study, Dishwasher, Balcony, Courtyard, Rumpus Room, Fully Fenced
Need a Home Loan?
Get pre-approved for a home loan within 48 hours. Click Here or more information.
- Last 24 Hours1
- Last 7 Days1
- Last 30 Days7
Views
Contact the Owner
Phone or Text: 0488 847 018
Enter Phone Code: 77355
Enter Phone Code: 77355
"*" indicates required fields