129 Florence Wilmont Drive, Nambucca Heads, NSW 2448

House 5 4 5
Sold Price Not Disclosed (19 Sep 2024)
Lifestyle living- Coastal/Country
The Phone Code for this property is: 16271. Please quote this number when phoning or texting.

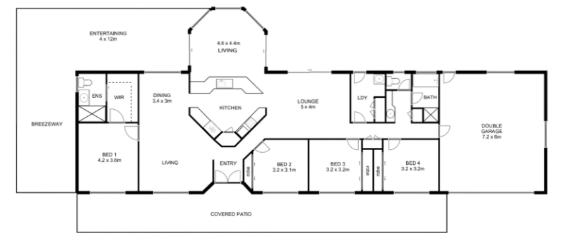
This well presented North facing five-bedroom home, is located in the highly sought after Kingsworth Estate, Nambucca Heads NSW. The peaceful surrounds, (6003 sqm - approx. 1.5 acres) include an open front yard with circular driveway and landscaped gardens. A level and sloping treelined backyard descends to the lower boundary. Extensive birdlife and wallabies help create the delights of nature in this special location. Large garages and storage areas provide ample storage space for all the toys much loved for country and coastal living.
The self-contained extension includes a deck to enjoy the views to the east and south, including partial views to Nambucca River.
Only a few minutes to Nambucca Heads and Macksville Centres. Lifestyle choice or investment - Inspect now.

Inspection by appointment only.

Detailed information regarding features:

Main Home (Level)
. Tiled and carpeted formal and informal living areas.
. Timber and tiled kitchen is centrally positioned and offers electric appliances including dishwasher and dual water filter system.
. Main bedroom has ensuite and walk in robe.
. 3 additional bedrooms with built in robes and ceiling fans.
. Three-way main bathroom.
. Double garage with internal access.
. Crim-safe screens on all windows and doors.

*An enclosed Crim-safe screened entertainment/ BBQ area and breezeway separate the main home and extension.

Two Storey Extension (Stairs)
. Tiled living area.
. Large bedroom with ensuite and walk-in robe.
. Kitchenette containing sink with dual water filter system, custom cabinetry, stone bench tops with induction cooktops, refrigerator and ample storage.
. Large double garage with internal access and extra bathroom.
. Timber Deck off living area has filtered views to the east and south, including partial views to the Nambucca River. A concrete slab is also provided underneath with access from garage.
. Small garage/ storage area.
. Solar Hot Water System.

Disclaimer:

Whilst every care has been taken to verify the accuracy of the details in this advertisement, For Sale By Owner (forsalebyowner.com.au Pty Ltd) cannot guarantee its correctness. Prospective buyers or tenants need to take such action as is necessary, to satisfy themselves of any pertinent matters.
Features

Balcony/Patio/Terrace, Bath, Formal Lounge, Heating, Modern Bathroom, Modern Kitchen, Separate Dining Room, Entertainment Area, Garden, Garden Shed, Level Lawn, Shower Facilities, Storage Area, Unlevel Lawn, Security Lights, Security Windows, Close to Schools, Close to Shops, Close to Transport, Near Waterfront, Quiet Location, Views, Beach/Coastal Property, Nature Property, Prestige Property, Retirement Property, Non Smoking, Air Conditioning, Built-ins, Ensuite, Internal Laundry, Remote Garage, Study, Dishwasher, Balcony, Secure Parking, Solar Panels, Solar Hot Water, Living Area, Deck

    Need a Home Loan?

    Get pre-approved for a home loan within 48 hours. Click Here or more information.

    Views
  • Last 24 Hours0
  • Last 7 Days5
  • Last 30 Days14
Contact the Owner
Phone or Text: 0488 847 018
Enter Phone Code: 16271

"*" indicates required fields