14/89 Bundilla Boulevard, Mountain Creek, QLD 4557
Sold Price Not Disclosed (02 Apr 2024)
Great 2 Bedroom Townhouse Right on the Mooloola River with Views Down the River
The Phone Code for this property is: 17151. Please quote this number when phoning or texting.
Enjoy a lovely quiet relax or a bbq on your verandah overlooking the Mooloola River in the Peninsula Court complex far from the road noise.
Or do some fishing right out front any time.
Head off on a nice kayak paddle in calm water, straight off the sand in front of your townhouse.
Close to the best beaches Sunshine Coast has to offer, schools, shops, Minyama/Warana, USC, easy access off motorway.
Great option for first home buyers or a savy investor
- Excellent tenants in place until 20 May 2024
Be quick! Don't let this bargain slip past you.
HIGHLIGHTS
Inground Swimming pool in complex - you don't have to look after it just enjoy it!
Only 18 units in this well maintained sought after complex way back from the road.
New Ceiling fans.
New curtains.
Enjoy an undercover lock up garage space with stairs right to your townhouse.
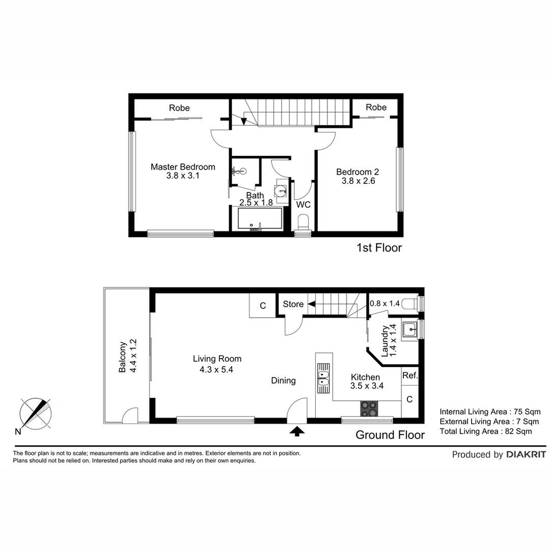
DOWNSTAIRS
- Open plan
- Lounge with double glass sliding doors out onto verandah overlooking river
- dining
- large kitchen with heaps of cupboards, large benches, tall corner pantry and double sink.
- separate laundry
- second toilet
- heaps of storage under stairs that lead upstairs
- large outside clothesline
UPSTAIRS
- 2 good size bedrooms - main overlooking water never to be built out
- both bedrooms with built-in robes
- 2 way bathroom - already renovated - with a full bath
- separate toilet
This unit has a great relaxed feel with the water view as soon as you walk in.
Get in quick, don't miss out.
Disclaimer:
Whilst every care has been taken to verify the accuracy of the details in this advertisement, For Sale By Owner (forsalebyowner.com.au Pty Ltd) cannot guarantee its correctness. Prospective buyers or tenants need to take such action as is necessary, to satisfy themselves of any pertinent matters.
Enjoy a lovely quiet relax or a bbq on your verandah overlooking the Mooloola River in the Peninsula Court complex far from the road noise.
Or do some fishing right out front any time.
Head off on a nice kayak paddle in calm water, straight off the sand in front of your townhouse.
Close to the best beaches Sunshine Coast has to offer, schools, shops, Minyama/Warana, USC, easy access off motorway.
Great option for first home buyers or a savy investor
- Excellent tenants in place until 20 May 2024
Be quick! Don't let this bargain slip past you.
HIGHLIGHTS
Inground Swimming pool in complex - you don't have to look after it just enjoy it!
Only 18 units in this well maintained sought after complex way back from the road.
New Ceiling fans.
New curtains.
Enjoy an undercover lock up garage space with stairs right to your townhouse.
DOWNSTAIRS
- Open plan
- Lounge with double glass sliding doors out onto verandah overlooking river
- dining
- large kitchen with heaps of cupboards, large benches, tall corner pantry and double sink.
- separate laundry
- second toilet
- heaps of storage under stairs that lead upstairs
- large outside clothesline
UPSTAIRS
- 2 good size bedrooms - main overlooking water never to be built out
- both bedrooms with built-in robes
- 2 way bathroom - already renovated - with a full bath
- separate toilet
This unit has a great relaxed feel with the water view as soon as you walk in.
Get in quick, don't miss out.
Disclaimer:
Whilst every care has been taken to verify the accuracy of the details in this advertisement, For Sale By Owner (forsalebyowner.com.au Pty Ltd) cannot guarantee its correctness. Prospective buyers or tenants need to take such action as is necessary, to satisfy themselves of any pertinent matters.
Need a Home Loan?
Get pre-approved for a home loan within 48 hours. Click Here or more information.
- Last 24 Hours0
- Last 7 Days1
- Last 30 Days10
Views
Contact the Owner
Phone or Text: 0488 847 018
Enter Phone Code: 17151
Enter Phone Code: 17151
"*" indicates required fields