6/55 Elizabeth Street, Woodside, SA 5244
Solar Panels, Low Maintenance, Private Secure Location, Just Move In And Start Living! Relax & Enjoy The Views
Stunning single level home is ready and waiting for you to just move in! Or as a rental there is potential of a return of up to $315 per week.
This three bedroom home is pristinely presented and has everything you could need and more. Perfect for someone looking to downsize, invest or for that very first place of your own.
Within close proximity of Adelaide Hills well know wineries Bird in Hand, Barristers Block and many more.
Situated within easy access to freeway, and walking distance to Woodside Main Street, everything is on your doorstep, including supermarket, swimming pool, 2 hotels, library, 2 doctors Surgery’s , local shops and bakery.
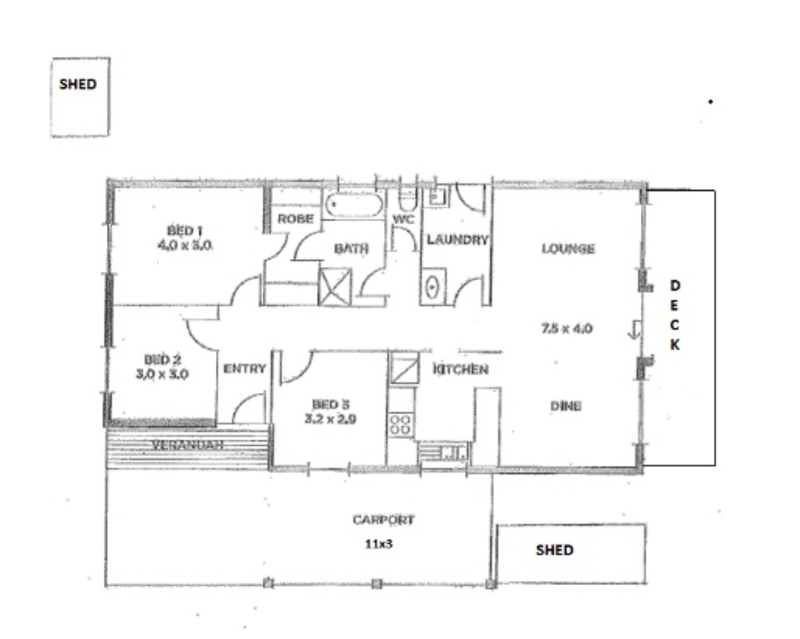
Inside:
• The kitchen has plenty of cupboard space, a Pura Tap, dishwasher and electric cooker.
• The open plan living / dining area is light and bright with a combustion heater, ceiling fan, R/C • A/C, and has a sliding door to the outside deck.
• Master bedroom with a walk-thru-robe, ceiling fan and access to the 2-way bathroom.
• Two further bedrooms, one with ceiling fan and built-in-robe.
• Bathroom with large bath, separate shower and vanity. Separate toilet.
Outside:
• Deck with zip track blinds, giving privacy and wonderful views of the rolling hills, enjoy this view with a nice glass of wine.
• Two garden sheds.
• Fully enclosed double length carport for 2 cars with remote roller door, 2 extra car spaces.
• Insulated roller shutters to the front of the property.
• 3.2 kw solar system
• New quantum heat pump hot water service.
Disclaimer:
Whilst every care has been taken to verify the accuracy of the details in this advertisement, For Sale By Owner (forsalebyowner.com.au Pty Ltd) cannot guarantee its correctness. Prospective buyers or tenants need to take such action as is necessary, to satisfy themselves of any pertinent matters.
Features
Balcony/Patio/Terrace, Bath, Fireplace(s), Heating, Modern Bathroom, Modern Kitchen, Entertainment Area, Garden, Garden Shed, Close to Schools, Close to Shops, Close to Transport, Quiet Location, Views, Nature Property, Air Conditioning, Built-ins, Internal Laundry, Pay TV Enabled, Dishwasher, Solar Panels, Pet Friendly, Remote Garage, Secure Parking
Contact Karen on 0438 838 018 at First Paige Property Settlement Services for help with your Real Estate paperwork (Form 1 & Contracts) or email if you have questions. admin@firstpaigeform1.com
Visit WebsiteNeed a Home Loan?
Get pre-approved for a home loan within 48 hours. Click Here or more information.
- Last 24 Hours0
- Last 7 Days0
- Last 30 Days2
Views
Contact the Owner
Enter Phone Code:
"*" indicates required fields
