69 Post Office Road, Sunnydale, SA 5354
Sold Price: 375,000 (15 Apr 2014)
Sold
Land Size:31.19ha (77.07 acres) (approx)
Luxury Chalet With Magnificent Murray River Views
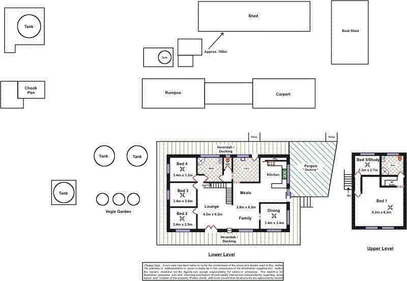
31.19ha (77 acres). Luxury home suitable for permanent residence or holiday home within walking distance to the river. Magnificent multi level five/six bedroom, two bathroom Chalet style home with Jarrah finished kitchen, cathedral ceilings and much much more. All weather wrap around verandah/decking , great shedding and Murray river cliff views.
Located on the bottom of the popular Big Bend section of the Murray on the Adelaide side of the river, this property is ideal as a relaxing holiday get away or as is used currently as a permanent beautiful residence. The front of the block rises gently from front to back featuring Murray hop bush with the balance being flat land with mallee's and native scrub. Local wildlife includes kangaroos, wombats, echidnas, Goannas and an abundance of birdlife including wedge tailed eagles, pelicans, parrots and cockatoos that are drawn to the river surrounding areas. Tracks skirt the boundary fences, with a well cut drive leading to the home. Perfect for horse or motorbike riding activities.
Property includes a transferrable 500 kilolitre p.a. river water licence to draw water from the Murray for domestic use which is carried via a 2" line to the storage tanks and is pressurised to the garden and the home. River water storage is a total of 54,000L and rain water storage is a total of 67,500L which is pressurised to the home also, the home can be switched between river water or rain water at any time.
Within walking distance to the river and with vehicle access to the boat ramp and camping grounds nearby, the property is in a private location, a 30 minute drive to Mannum or Swan Reach with the Punyelroo and Walker Flat general stores only 10 minutes away.
The home itself offers over 22 squares of luxury living. A pine log chalet style country looking home with all modern living luxuries. The pine log style home provides open plan living including upper level master suite. Double front timber doors provide the entrance to the lounge area, which has a stunning cathedral ceiling rising to 20ft in height, with recycled Jarrah timber flooring, central slow combustion heater and Daikin 4hp Inverter split system reverse cycle air conditioning unit. A separate formal dining room has the gorgeous views on offer and is currently utilised as a home office.
The gorgeous Jarrah finished kitchen, with its huge concealed walk in pantry and a five burner 900mm gas cooktop with double fan forced electric oven, is perfect for cooking up those country dinners. The matching range hood, splashback, Miele dishwasher, double stainless steel sink with built in water filter and large fridge/freezer alcove all combine to create a beautiful area that has a country touch with modern living appointments. Along with the casual meals/living area, the kitchen has slate floors.
Located on the upper level is the large main bedroom with its own 2hp reverse cycle split system air conditioning unit. Walk in robe that leads into the ensuite bathroom with luxury double shower and floor to ceiling tiling. Also on the top level is a smaller bedroom with ceiling fan. The other bedrooms, with polished floorboards and ceiling fans, are located on the lower level along with the main two-way luxury bathroom with corner spa bath and floor to ceiling tiling. The home has quality window treatments throughout and internal and external insulation and other fine fixtures and features including Jarrah finished cupboards in the bathrooms.
Adjoining the 360 balcony is a timber decked pergola/entertaining area which overlooks the surrounds with views of the river, lagoon and red cliffs which captures some of the most sensational sunsets in the region.
There is a detached rumpus room which is fully lined and carpeted with a Daikin 2hp inverter reverse cycle air conditioner this room measures approx. 24ft x 20ft. Perfect as a sleep out or pool room.
Located on the top of the rise there is a 60ft x 20ft powered Colorbond garage which has a full concrete floor, fluorescent lighting and four sliding doors. There is also 30ft x 20ft powered Colorbond garage with vehicle access at each end with full concrete foor, making it perfect for boat storage, vans or tractors. This substantial area has industrial style external lighting and a full security system if the property is not used as a permanent residence.
For the growing family, the local school bus from the Swan Reach Area School drops off and picks up just up the road making schooling for the kids that much more convenient and accessible providing R-12 education.
For those seeking a relaxing alternative lifestyle or a beautiful holiday home please call today to arrange an inspection.
Disclaimer:
Whilst every care has been taken to verify the accuracy of the details in this advertisement, For Sale By Owner (forsalebyowner.com.au Pty Ltd) cannot guarantee its correctness. Prospective buyers or tenants need to take such action as is necessary, to satisfy themselves of any pertinent matters.
Luxury Chalet With Magnificent Murray River Views
31.19ha (77 acres). Luxury home suitable for permanent residence or holiday home within walking distance to the river. Magnificent multi level five/six bedroom, two bathroom Chalet style home with Jarrah finished kitchen, cathedral ceilings and much much more. All weather wrap around verandah/decking , great shedding and Murray river cliff views.
Located on the bottom of the popular Big Bend section of the Murray on the Adelaide side of the river, this property is ideal as a relaxing holiday get away or as is used currently as a permanent beautiful residence. The front of the block rises gently from front to back featuring Murray hop bush with the balance being flat land with mallee's and native scrub. Local wildlife includes kangaroos, wombats, echidnas, Goannas and an abundance of birdlife including wedge tailed eagles, pelicans, parrots and cockatoos that are drawn to the river surrounding areas. Tracks skirt the boundary fences, with a well cut drive leading to the home. Perfect for horse or motorbike riding activities.
Property includes a transferrable 500 kilolitre p.a. river water licence to draw water from the Murray for domestic use which is carried via a 2" line to the storage tanks and is pressurised to the garden and the home. River water storage is a total of 54,000L and rain water storage is a total of 67,500L which is pressurised to the home also, the home can be switched between river water or rain water at any time.
Within walking distance to the river and with vehicle access to the boat ramp and camping grounds nearby, the property is in a private location, a 30 minute drive to Mannum or Swan Reach with the Punyelroo and Walker Flat general stores only 10 minutes away.
The home itself offers over 22 squares of luxury living. A pine log chalet style country looking home with all modern living luxuries. The pine log style home provides open plan living including upper level master suite. Double front timber doors provide the entrance to the lounge area, which has a stunning cathedral ceiling rising to 20ft in height, with recycled Jarrah timber flooring, central slow combustion heater and Daikin 4hp Inverter split system reverse cycle air conditioning unit. A separate formal dining room has the gorgeous views on offer and is currently utilised as a home office.
The gorgeous Jarrah finished kitchen, with its huge concealed walk in pantry and a five burner 900mm gas cooktop with double fan forced electric oven, is perfect for cooking up those country dinners. The matching range hood, splashback, Miele dishwasher, double stainless steel sink with built in water filter and large fridge/freezer alcove all combine to create a beautiful area that has a country touch with modern living appointments. Along with the casual meals/living area, the kitchen has slate floors.
Located on the upper level is the large main bedroom with its own 2hp reverse cycle split system air conditioning unit. Walk in robe that leads into the ensuite bathroom with luxury double shower and floor to ceiling tiling. Also on the top level is a smaller bedroom with ceiling fan. The other bedrooms, with polished floorboards and ceiling fans, are located on the lower level along with the main two-way luxury bathroom with corner spa bath and floor to ceiling tiling. The home has quality window treatments throughout and internal and external insulation and other fine fixtures and features including Jarrah finished cupboards in the bathrooms.
Adjoining the 360 balcony is a timber decked pergola/entertaining area which overlooks the surrounds with views of the river, lagoon and red cliffs which captures some of the most sensational sunsets in the region.
There is a detached rumpus room which is fully lined and carpeted with a Daikin 2hp inverter reverse cycle air conditioner this room measures approx. 24ft x 20ft. Perfect as a sleep out or pool room.
Located on the top of the rise there is a 60ft x 20ft powered Colorbond garage which has a full concrete floor, fluorescent lighting and four sliding doors. There is also 30ft x 20ft powered Colorbond garage with vehicle access at each end with full concrete foor, making it perfect for boat storage, vans or tractors. This substantial area has industrial style external lighting and a full security system if the property is not used as a permanent residence.
For the growing family, the local school bus from the Swan Reach Area School drops off and picks up just up the road making schooling for the kids that much more convenient and accessible providing R-12 education.
For those seeking a relaxing alternative lifestyle or a beautiful holiday home please call today to arrange an inspection.
Disclaimer:
Whilst every care has been taken to verify the accuracy of the details in this advertisement, For Sale By Owner (forsalebyowner.com.au Pty Ltd) cannot guarantee its correctness. Prospective buyers or tenants need to take such action as is necessary, to satisfy themselves of any pertinent matters.
Features
Balcony/Patio/Terrace, Bath, Formal Lounge, Heating, Modern Bathroom, Modern Kitchen, Separate Dining Room, Entertainment Area, Garden, Garden Shed, Pet Friendly, Rainwater Tank, Storage Area, Alarm System, Security Lights, Near Waterfront, Quiet Location, Views, Nature Property, Ski Property, Air Conditioning, Ensuite, Gas Enabled, Internal Laundry, Pay TV Enabled, Polished Timber Floors, Study, Broadband, Dishwasher, Balcony, Workshop, Secure Parking, Inside Spa
Need a Home Loan?
Get pre-approved for a home loan within 48 hours. Click Here or more information.
- Last 24 Hours0
- Last 7 Days0
- Last 30 Days0
Views
Contact the Owner
Phone or Text: 0488 847 018
Enter Phone Code when prompted.
Enter Phone Code when prompted.
"*" indicates required fields