124 Preservation Drive, Preservation Bay, TAS 7316
Sold Price Not Disclosed (04 Jul 2014)
Beach Front Lifestyle
Beach front lifestyle in this large entertainer will delight discerning buyers with its amazing range of living areas and balconies which take in the magnificent views overlooking one of the safest beaches on the coast and rural farmland to the rear.
This north-facing home is situated in beautiful Preservation Bay just 1 km from the small coastal village of Penguin and 15 minutes' drive west to the city of Burnie or 25 minutes east to Devonport for easy commuting on dual lane highways.
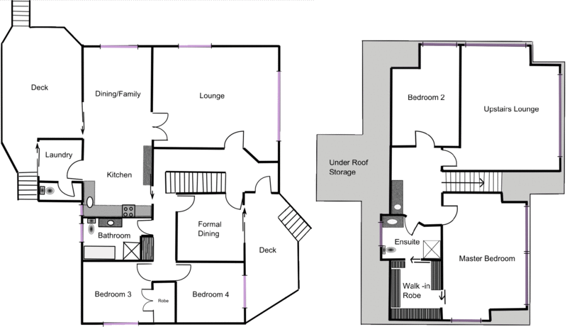
The large kitchen/ dining /living room features dishwasher, an ILVE gas stove top and hood, large 900 mm ILVE electric oven and includes room for side by side fridge and freezer. This room opens onto a beautiful deck that captures both scenic water and rural views.
The house is carpeted with quality NZ pure wool carpets and tiles in the entry foyer, bathrooms and laundry. The kitchen/living area has cork tiles which are comfortable and warm under foot. The down stairs lounge has a new gas thermostat controlled fire and features large north and west facing windows with sea views. The formal, separate dining room opens on to the north facing deck overlooking the water. A second large lounge room upstairs captures all day sun and provides panoramic views overlooking the beach and farmland.
The upstairs master bedroom is huge and features large windows overlooking the beach and automated blinds that enable you to appreciate the view without even getting out of bed! A walk-in robe and large bathroom/ensuite provide a luxury resort lifestyle every day. The down stairs bathroom is recently renovated in stylish white and grey tiles, with separate freestanding bath.
There are 4 bedrooms, with the fourth bedroom incorporating a corner study area, that will meet the needs of growing families in such a magnificent location that promotes an active, outdoor lifestyle for everyone in the family.
This location provides opportunities to watch whales migrating, dolphins frolicking in the waves and the small colony of Little Penguins nesting in the bay and sometimes in the front garden! The beach is patrolled regularly by the Penguin Surf Club which is situated on the eastern point of the bay.
Disclaimer:
Whilst every care has been taken to verify the accuracy of the details in this advertisement, For Sale By Owner (forsalebyowner.com.au Pty Ltd) cannot guarantee its correctness. Prospective buyers or tenants need to take such action as is necessary, to satisfy themselves of any pertinent matters.
This north-facing home is situated in beautiful Preservation Bay just 1 km from the small coastal village of Penguin and 15 minutes' drive west to the city of Burnie or 25 minutes east to Devonport for easy commuting on dual lane highways.
The large kitchen/ dining /living room features dishwasher, an ILVE gas stove top and hood, large 900 mm ILVE electric oven and includes room for side by side fridge and freezer. This room opens onto a beautiful deck that captures both scenic water and rural views.
The house is carpeted with quality NZ pure wool carpets and tiles in the entry foyer, bathrooms and laundry. The kitchen/living area has cork tiles which are comfortable and warm under foot. The down stairs lounge has a new gas thermostat controlled fire and features large north and west facing windows with sea views. The formal, separate dining room opens on to the north facing deck overlooking the water. A second large lounge room upstairs captures all day sun and provides panoramic views overlooking the beach and farmland.
The upstairs master bedroom is huge and features large windows overlooking the beach and automated blinds that enable you to appreciate the view without even getting out of bed! A walk-in robe and large bathroom/ensuite provide a luxury resort lifestyle every day. The down stairs bathroom is recently renovated in stylish white and grey tiles, with separate freestanding bath.
There are 4 bedrooms, with the fourth bedroom incorporating a corner study area, that will meet the needs of growing families in such a magnificent location that promotes an active, outdoor lifestyle for everyone in the family.
This location provides opportunities to watch whales migrating, dolphins frolicking in the waves and the small colony of Little Penguins nesting in the bay and sometimes in the front garden! The beach is patrolled regularly by the Penguin Surf Club which is situated on the eastern point of the bay.
Disclaimer:
Whilst every care has been taken to verify the accuracy of the details in this advertisement, For Sale By Owner (forsalebyowner.com.au Pty Ltd) cannot guarantee its correctness. Prospective buyers or tenants need to take such action as is necessary, to satisfy themselves of any pertinent matters.
Features
Bath, Broadband, Built-ins, Dishwasher, Ensuite, Formal Lounge, Gas Enabled, Heating, Internal Laundry, Modern Bathroom, Modern Kitchen, Remote Garage, Renovated Bathroom, Separate Dining Room, Balcony, Entertainment Area, Garden, Garden Shed, Level Lawn, Pet Friendly, Secure Parking, Storage Area, Near Waterfront, Quiet Location, Views, Absolute Waterfront, Beach/Coastal Property, Prestige Property
Need a Home Loan?
Get pre-approved for a home loan within 48 hours. Click Here or more information.
- Last 24 Hours0
- Last 7 Days0
- Last 30 Days3
Views
Contact the Owner
Phone or Text: 0488 847 018
Enter Phone Code:
Enter Phone Code:
"*" indicates required fields