35 Poole Ave, Woodville South, SA 5011
Luxury And Privacy All Into One
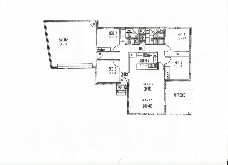
Well the inside will not stop to impress as well.When you open the big front door you will be welcomed by the wide corridor which is complemented with a feature wall.
The kitchen is located in the middle of the home and is nothing short of spectacular.The huge blue pearl granite bench complements perfectly with the white high gloss kitchen cabinets soft close doors and draws. The appliances are hand picked to suit the style and to be easy to use.The double oven is very handy for those big get- togethers and the dishwasher will help with the clean-up.
There are four bedrooms.The main bedroom has a huge build-in robe with glass doors,a fully tiled ensuite with stone top vanity and frameless shower screen.Two other bedrooms have build-ins with glass doors and are generous in size.
The main bathroom is fully tiled as well,has a stone top vanity and frameless shower screen.Imagine relaxing after a long day on the huge stone bath just to yourself.
The last thing to mention is the outdoor entertainment area. It has a beautiful deck,downlights,ceiling fan and a natural gas outlet for the bbq. Easy to entertain family and friends in this area which is very private and fully fenced and easy access to the kitchen through the huge sliding doors that open 1.8m.
With a lot of quality features lets just mention a few;r/c air con,downlights,security alarm,floating solid timber flooring,2.4m doors,feature walls,remote control panel lift garage door,ect........Inspection a must.
Disclaimer:
Whilst every care has been taken to verify the accuracy of the details in this advertisement, For Sale By Owner (forsalebyowner.com.au Pty Ltd) cannot guarantee its correctness. Prospective buyers or tenants need to take such action as is necessary, to satisfy themselves of any pertinent matters.
Features
Bath, Heating, Modern Bathroom, Modern Kitchen, Entertainment Area, Garden, Level Lawn, Rainwater Tank, Alarm System, Security Lights, Security Windows, Close to Parklands, Close to Schools, Close to Shops, Close to Transport, Quiet Location, Air Conditioning, Built-ins, Ensuite, Gas Enabled, Internal Laundry, Polished Timber Floors, Remote Garage, Dishwasher, Courtyard, Secure Parking
Contact Karen on 0438 838 018 at First Paige Property Settlement Services for help with your Real Estate paperwork (Form 1 & Contracts) or email if you have questions. admin@firstpaigeform1.com
Visit WebsiteNeed a Home Loan?
Get pre-approved for a home loan within 48 hours. Click Here or more information.
- Last 24 Hours0
- Last 7 Days0
- Last 30 Days1
Views
Contact the Owner
Enter Phone Code:
"*" indicates required fields
