13A Tennant Street, Torrens Park, SA 5062
FAMILY HOME of EXCEPTIONAL VALUE
INTEREST RATES LOW AND STABLE - INSPECT NOW!
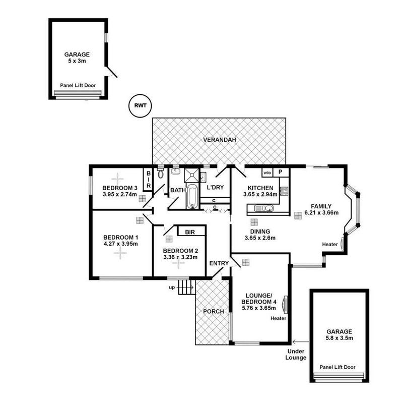
Double brick family home on a good sized 730 m2 block WITH VIEWS TO CITY AND SEA
Close to the city, with public transport close by
Family room extension in an open plan layout incorporating kitchen and dining areas.
Bathroom and laundry renovated, neutral carpets throughout and painted in neutral tones. Move in and start living.
Ducted cooling, gas heating. Two driveways with lockup garage under house and large shed/workshop at the top of the second drive. Lots of on-site parking
Terraced rear garden with new lawn, two water tanks and a watering system.
Shopping Centres at Mitcham, Unley & Pasadena just minutes away.
Schools and Colleges such as Scotch, Mercedes, Walford, Concordia, Unley High, Clapham Primary also just minutes away.
Quiet position at the top of a CUL-DE-SAC. Very private and safe for children.
Disclaimer:
Whilst every care has been taken to verify the accuracy of the details in this advertisement, For Sale By Owner (forsalebyowner.com.au Pty Ltd) cannot guarantee its correctness. Prospective buyers or tenants need to take such action as is necessary, to satisfy themselves of any pertinent matters.
Features
Bath, Fireplace(s), Formal Lounge, Heating, Modern Bathroom, Modern Kitchen, Renovated Bathroom, Entertainment Area, Garden, Garden Shed, Level Lawn, Pet Friendly, Rainwater Tank, Shower Facilities, Storage Area, Close to Parklands, Close to Schools, Close to Shops, Close to Transport, Quiet Location, Views, Air Conditioning, Built-ins, Gas Enabled, Broadband, Dishwasher, Balcony, Workshop, Secure Parking, Security Lights, Renovated Kitchen
Contact Karen on 0438 838 018 at First Paige Property Settlement Services for help with your Real Estate paperwork (Form 1 & Contracts) or email if you have questions. admin@firstpaigeform1.com
Visit WebsiteNeed a Home Loan?
Get pre-approved for a home loan within 48 hours. Click Here or more information.
- Last 24 Hours0
- Last 7 Days0
- Last 30 Days7
Views
Contact the Owner
Enter Phone Code:
"*" indicates required fields
